国外设计案例系列-Casa F-鹿特丹 荷兰
亿弘装饰设计总监王宁
2020-06-30
本系列为大家带来国外设计大师们的作品,会不间断更新,大家可以关注一下哦~~
----------------------------------------------
架构师:佩纳架构
地点:鹿特丹,荷兰
架构师负责:加布里埃尔·r·佩纳
面积:193.0平方米
照片:Maarten Laupman
承包商:STV,鹿特丹
顾问的安装:霍夫曼、BV、Bergambacht
家具:Deba meubelen Belsele,比利时

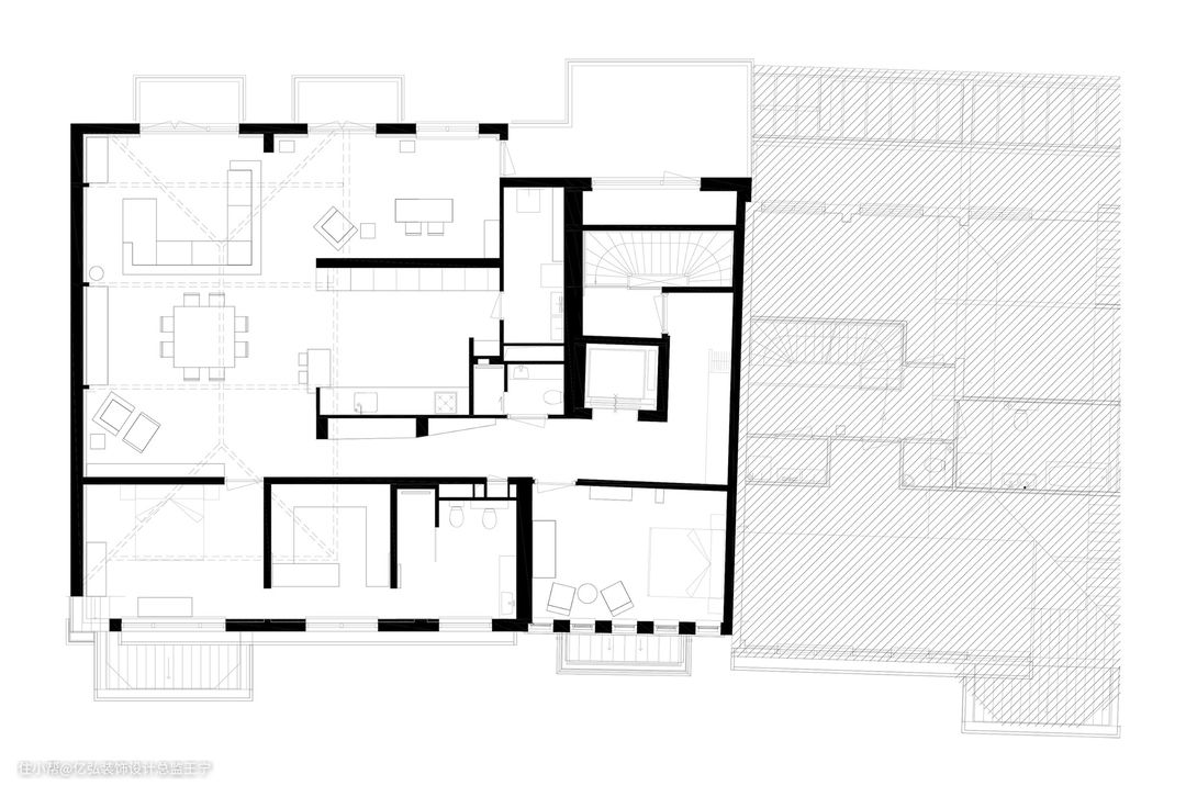
将一个博物馆转换成房子。 2010年前在Hoflaan Kralings博物馆变成了豪华公寓。建筑由三个公寓常见的入口和电梯到楼上。项目Casa F涉及到公寓二楼,包含193平方米和25平方米的户外空间。

这间公寓中呈现的是一个“梗概”条件必须完全重新设计。 天花板和梁结构特点继续担任重要组件的设计。 天花板的最大高度为6米。

楼梯和电梯给访问走廊通往客厅,主卧,客房,客人卫生间和客人沐浴。宽敞的客厅和主卧室躺下横梁和高天花板。 主卧室也包含一个宽敞的步入式衣帽间和附加浴室淋浴,厕所和浴盆。

客厅是打开一个全新的厨房与相邻的杂物间。 在后面添加了一个大面积的客厅作为“游戏室。 “折叠门在客厅给两个小阳台,和游戏室提供一个大阳台。 所有的衣橱浴室,厨房,卧室,和走廊设计的建筑师也负责装修,家具和照明。

装饰包括黑色和木头。 这种组合出现在许多形式。 例如,黑色经典躺椅建立与橡木地板上的关系。 广场周围的木质餐桌,八个黑色椅子排列。 两个黑钢凳子补充厨房里的柚木和黑色花岗岩台面。 所有的书架是用胡桃木做的。 卧室的衣柜,包括步入式衣帽间、是橡木做的。 橡木地板上得到双重粉饰治疗,让它看起来较轻。










