厨房设计——所有你有可能会用到的尺寸明细
半叁设计
2020-07-13
厨房设计尺寸明细——订制柜类
1,台面高度
水槽台面与操作台台面高度大约为人身高-90公分(依据个人习惯上下调整范围为5公分)
炉灶台面高度大约为人身高-95公分(依据个人习惯上下调整范围为5公分)
吧台台面高度大约为105公分左右,吧椅高度约为75公分左右

2,抽屉高度
以不含踢脚线65公分柜体高度为例:
3抽屉从上到下约为,18公分餐具盒,23.5公分储物抽屉,23.5公分储物抽屉
2抽屉从上到下约为,32.5公分抽屉放碗、盘,32.5公分抽屉放炒锅、平底锅
烤盘抽屉高度约为15公分以内

3,其它相关尺寸
水槽柜宽度约为水槽外径+15公分以上
吊柜与台面距离约为65-75公分(依据烟机安装高度调整)
台面深度不超过65公分,吊柜深度不超过35公分
厨房设计尺寸明细——厨具电器类
1,炉灶与烟机之间高度间隔65公分-75公分(依据烟机安装高度调整)
2,炉灶与左右两遍墙体、柜体间隔30公分以上
3,普通微波炉空间需求微波炉宽度+15公分,微波炉高度+10公分;普通烤箱空间需求烤箱宽度+15公分,烤箱高度+15公分
4,嵌入式波炉空间需求宽60公分,高45公分(以电器安装说明为准);嵌入式烤箱空间需求宽60公分,高60公分(以电器安装说明为准)

5,冰箱空间需求冰箱宽度+10公分,冰箱高度+10公分。如冰箱靠墙摆放,空间需求冰箱宽度+15公分,冰箱高度+10公分
厨房设计尺寸明细——顶、墙、地饰面类
厨房地面瓷砖,如无地漏瓷砖可选任意规格;如有地漏且地面预留坡度,瓷砖需选择30公分边长正方型或40公分边长正方型。厨房墙面瓷砖可选任意规格。
厨房顶面集成吊顶可选30公分边长正方型规格或40公分边长正方型规格或30公分*60公分长方形规格。
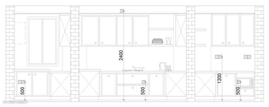
厨房设计尺寸明细——开关、插座类
开关预留高度为1.35米同屋内其它空间开关高度。
插座高度0.5米:净水器、垃圾处理器、台下微波炉、台下烤箱、台下蒸箱、洗碗机(插座预留在横向相邻柜体内)、集成灶(插座预留在横向相邻柜体内)等

插座高度1.2米:常用小家电(电饭煲、榨汁机等)、台面式微波炉、台面式烤箱、台面式洗碗机等
插座高度2.4米:吸油烟机、凉霸、换气扇等