什么样的施工图纸,才能指导设计落地?
上海木桐设计(西安)
2020-07-28
在室内设计中,施工图纸是非常重要的一环。从设计构思到效果落地,材质为载体,工艺来链接。整个施工过程的灵魂,就是全套施工图纸。
何以作为施工图纸的标准?木桐设计对此的定义是:完全能够精确施工和把控预算。
诚然,施工离不开设计师的现场交底、节点验收,项目经理的规范化管理,团队leader的定期巡检。这全部过程的衔接与落实,都离不开施工图纸。
与设计调研、定策同样花费时间的,就是深化阶段的施工制图。对材料、工艺的熟知,对细节的到位把握,对预算的合理划分,最终将都呈现于一套施工图。设计不仅是天马行空,落在图上的每一处,才是设计师数十年的经验沉淀,与每一个新家的蓝图。

整套图纸的组成部分:封面,图纸目录,设计说明,图纸内容。图纸内容包含:施工图纸(平面图、立面图、节点图),辅助图纸(效果图)。

施工图纸
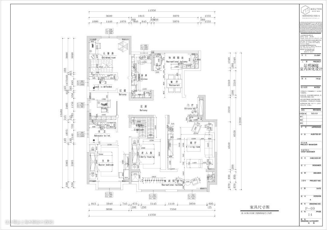
一、平面图
(一)原始结构图
原始结构图100%还原现场的精确尺寸,对于设计、施工、预算都有重要意义,在此演示现场需要精确重要尺寸的地方并表现在设计图纸上。
1、室内、外地面标高,以及入户门的开启方式;
2、非承重墙体与承重墙体的标注;
3、墙体定位尺寸,楼层的净高度,厨卫与其他空间落差高度;
4、原始梁体的尺寸,距地面的高度;
5、原始窗户以及门洞的高度和宽度尺寸;
6、原始机电孔位尺寸和位置(如强弱电箱、开关插座、暖气、空调孔洞、天燃气表和管道、给排水孔位、烟道、气道等详细位置以及具体尺寸)。

除以上信息,精装房的量尺需要另外标注:
1、原始墙面材质,地面材质及规格;
2、原始顶面布置及尺寸,灯具位置;
3、已安装家具尺寸。
老房翻新、二手房的量尺:
需进行两次量取尺寸,第一次为房屋现状的详细尺寸,第二次是在拆除完之后进行复尺,确定隐蔽的下水孔位尺寸,以及拆除墙体后的空间尺寸。
由于老房子初建时间不同,结构也有所不同,还需考虑以下现状(需要在设计说明中注明):
1、房屋是否有电梯,后期上材料时是否有特殊要求(尺寸限制等);
2、原始墙体的基础材料,是红砖墙体还是混凝土墙体;
3、原始房屋线路的老化程度,考虑到用电负荷;
4、原始上下水管的材质以及布置情况。
(二)墙体拆改图
强调一个空间格局变化的重点,需要注明承重墙与非承重墙:
1、标清楚墙体拆除的尺寸与定位;
2、新建墙体的材质和尺寸的注明;
3、承重墙体不允许改动。


(三)平面布局图
平面布局图中包含的信息比较多,需要注明:
1、各空间的区域划分;
2、各个活动家具的尺寸,以及家具在空间的位置定位尺寸;
3、室内门的样式及开启方向;
4、如有楼梯,标明楼梯位置,楼梯的上下方向示意以及楼梯踏步数量。

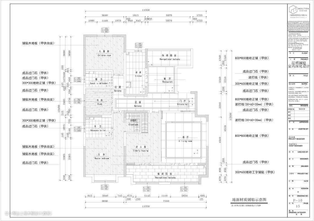
(四)地面材质铺贴图
可以指导现场地面铺设,以及地面的高差,此图纸包含:
1、各空间的地面材质及规格;
2、标注地面铺贴的方向;
3、如果有拼花或者拨打线,注明大小尺寸;
4、各空间的相对高度的注明;
5、有需要起坡的位置,做出坡度标记;
6、不同材料之间的分界材料(过门石、压条等)。

(五)天花布置图
与水电图纸,空调设备,新风系统等相互协调一体:
1、确定中央空调与新风系统的安装位置;
2、吊顶高度及造型、尺寸;
3、顶面灯具的位置定位,注明灯具类型;
4、顶面材质标注。

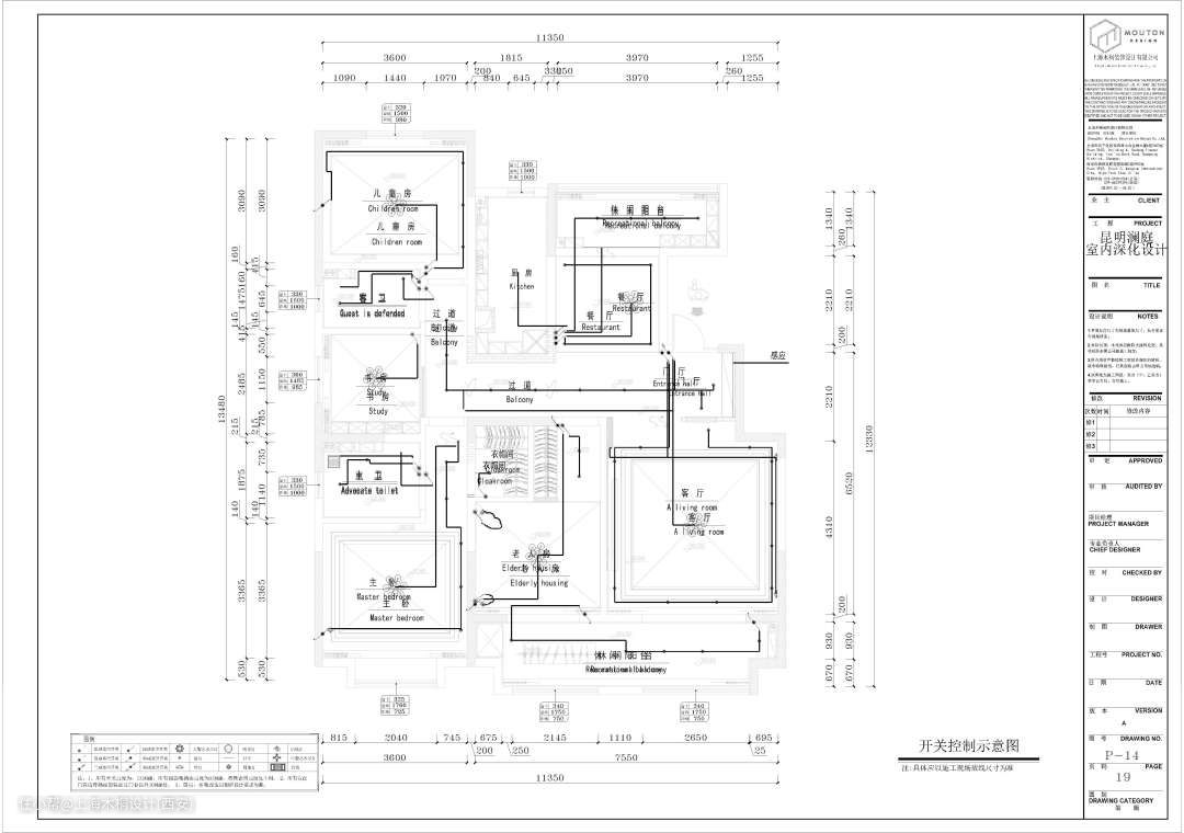
(六)电路布置图
包含插座布置示意图、开关控制示意图、灯具尺寸图:
1、插座的布置定位尺寸;
2、插座的种类(如强电类、弱电类);
3、开关的位置、种类(如双控、单控);
4、灯具的型号参考。



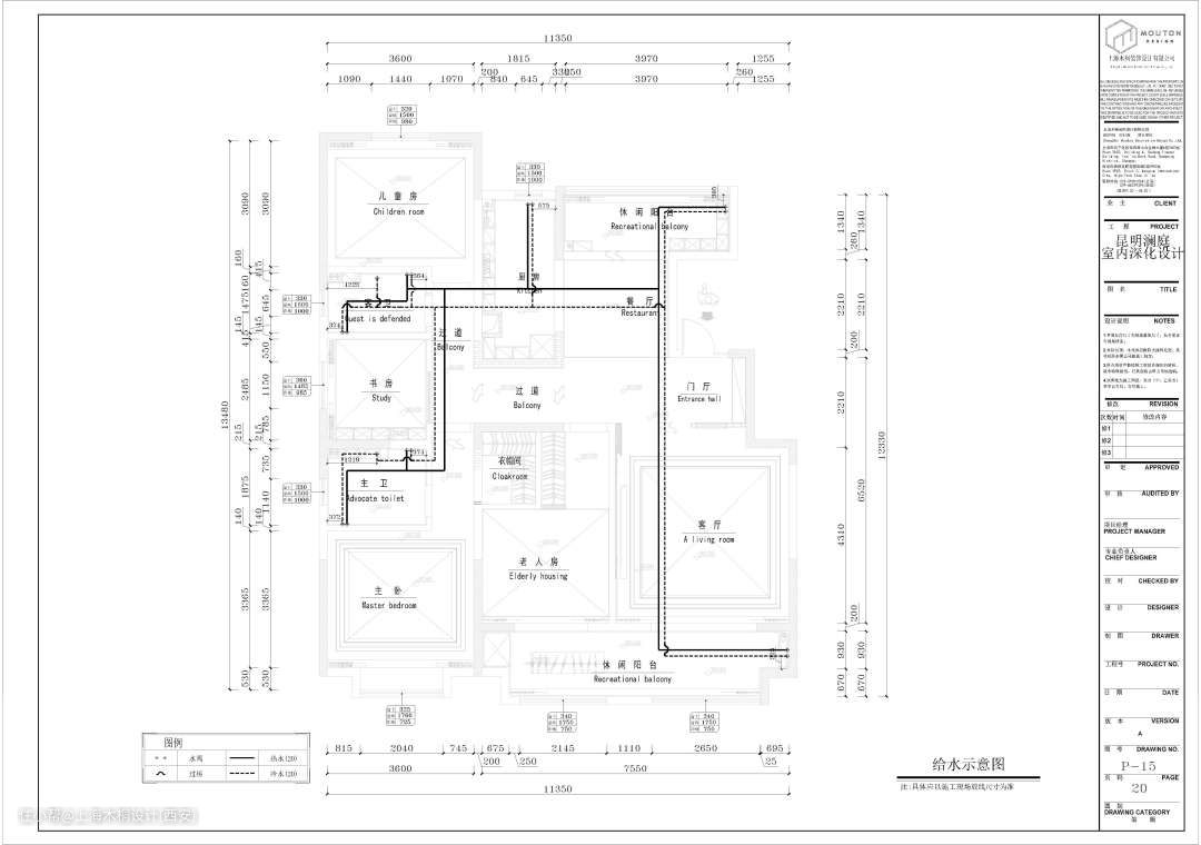
(七)给水示意图
明确水路走向,并注明:
1、水路的位置定位;
2、区分冷热水管;
3、水阀的具体位置;
4、水路的管径尺寸。

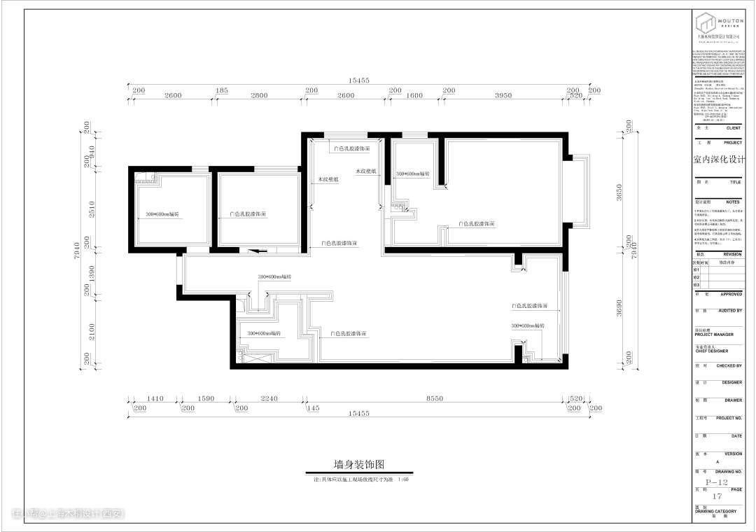
(八)墙身装饰图
指导现场墙面的铺贴、涂刷:
1、各空间墙面的材质、尺寸;
2、墙面色号,门洞阳角及侧面涂刷具体位置;
3、门套尺寸,单包套或双包套;
4、壁纸、乳胶漆、瓷砖以及护墙板等的收口材质说明。

(九)立面索引图

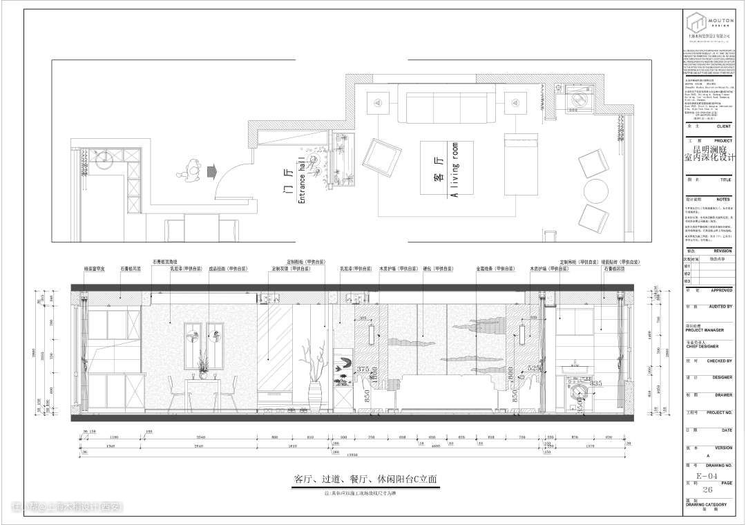
二、立面图
立面图结合平面,完整表现立体空间的工艺和尺寸。
1、墙面材质,及铺贴示意;
2、墙面开关、插座点位,固定配饰、灯具的位置、尺寸;
3、墙面造型(如壁龛、石膏线)的尺寸定位;
4、家具对应的空间高低尺寸;
5、吊顶高度和剖面样式。



三、节点图
有一些特殊的工艺,需另画节点图,说明详细施工工艺。


辅助图纸
辅助图纸中的效果图,可以更加直观表现出空间的整体设计效果,对各空间及家具材质、色彩、光线等作出最接近真实的预演。
