爆改143㎡四居室,竟有52㎡收纳柜,差在这30个细节里!
云南俊雅装饰
2020-09-10
疫情之后,发现旧改的需求特别多,这不,上周我就去了某小区,买的是这个小区的二手房,屋主一家人住在这个小区不同的楼栋,生活中也好相互照应。
143平米的建面,公摊比较小,全房做了将近52平投影面积的柜子,厨房改餐厅,书房改厨房,主卧变套间......在空间使用上还是非常值得借鉴的。

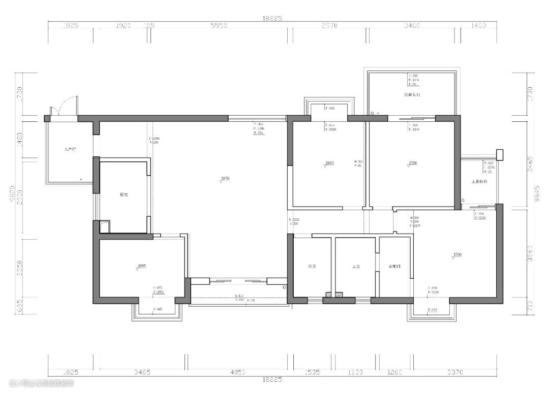
△ 改造前




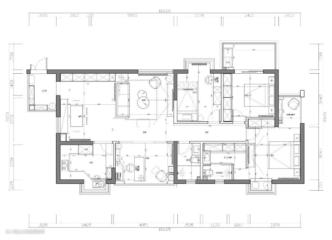
△平面设计图
整体结构改造特别大,总结出来以下几点:
1、全房做了将近52平投影收纳柜,实用至上。大家可以数一数他们家哪些地方都做了柜子?
2、原始客餐厅界限混乱,将原始厨房改造为餐厅,将原始书房改造为厨房,为此花了非常多的心思。
3、客餐厅全开放式、书房半开放式,整个空间立马显得开阔通透。书房选择双开梭门,这里是我超喜欢的位置,采光视野都超级赞!
4、主卧设计成套间,改变原始卫生间布局,进入衣帽间多了一个转角,增加了隐私性。

1、入户处有个门厅,这一处自然而然就成为了进出换鞋的专用位置,四周都有门窗,为了采光就没有设计高柜,实用性更高。
2、因为楼层偏低,在四楼,为了保证隐私和安全,全房的门窗大换血(除了部分还能继续使用之外,注意看图片,白色为没有更换,黑色为已更换)。


3、餐厅的原始位置原来是厨房,为了改造这里可是煞费苦心,跟物业交涉,跟燃气公司协调、改下水......虽然过程很复杂,但好在最终效果都达到了理想化,就连楼上的邻居看过这个改造方案,都纷纷效仿。

4、餐厅选择了卡座设计,节省空间,还增加了收纳功能。整体简约黑白灰色调,特别要跟大家说下,这个地砖选的特别有质感,花色也耐看,还不显脏。

5、靠墙位置还设计了一整面墙的收纳柜,白色柜门,简约黑色拉手,全部拉开看,场面相当震撼,今后入住了,就算有再多杂物都不怕。

6、客餐厅空间非常大,为了有个划清区域,特地选择了黑色金属隔断,“隔而不断”还增加了一丝时尚感。错落有致的线条感,简洁耐看。

7、沙发选择了米色布艺沙发,家具这块完全按照设计师的要求来买的,虽然完全超出了预算,但整体确实比较百搭。

8、整个客餐厅区域选择涂刷浅灰色乳胶漆,耐脏系数更上一层楼。

9、为了家里老人小孩的居住舒适性,还配备了暖气片,位置正好在窗户底下,一点都不显得突兀。建议大家在前期定位时,一定要规划好。

10、为了不让整个空间显得过于单调,特地选择了橙蓝撞色,卷帘的颜色也跟地毯的深蓝相呼应。
11、由于屋主要经常出差,在家里居住的次数不多,就没有选择中央空调或是风管机,而且选择柜机,不仅节约了预算,也符合家里人的使用频次和习惯。

12、客餐厅及书房打通,整个视觉效果得以延伸,感官上就觉得这绝对不止140平,接下来别眨眼,接着往下看。

13、厨房选择了白色玻璃门,左手边摆放了冰箱,右手边做了一面收纳柜。水龙头选择了抽拉式,这样在清洁水槽死角的适合很方便。

14、利用原始飘窗,设计出了异形橱柜,杜绝空间浪费,同时还延长了操作台面,视野上也很舒爽。

15、橱柜设计了5个抽屉,使用上也比较方便。棕咖色也比较耐脏,黑色把手隐于无形,简洁耐看。

16、橱柜吊柜选择了无拉手设计,后期就算有油烟也非常好打理。
17、厨房的所有插座都是带有小开关的,这样就不用频繁拔插电源了,也更保护电器一些。

18、书房的视野极好,可以当多功能房使用,铺的是木地板,装了暖气片,就算家里后期来了客人,直接打个地铺就能睡。

19、书柜设计开放格,底部预留位置专门放置暖气片,美观又实用。

20、书柜也是定制的,不过没有设计成整面收纳柜+书柜,而是选择了异形书桌,这样不会显得整体比较压抑。


21、儿童房面积不大,虽然家里只有一个小孩,但还是选择了双层床,方便屋主的外甥过来留宿。雾霾蓝乳胶漆,也比较符合小男生的喜好。

22、飘窗设计成了卡座+收纳抽屉结合体,实用性更高。

23、衣柜+书柜的组合设计,家里的收纳空间足够孩子长大,且独立书桌,也能让孩子有个自己的独立的学习空间。孩子大了,该有自己的“小秘密”了。


24、这个房间是专门为老人准备的,虽然使用的频率不高,但是还是设计了满墙的收纳柜,且配备了暖气片,舒适性更高。


25、全房唯一的阳台就在这个位置,面积比较大,预估有5平左右。且采光也非常好,三面都是门窗。日常洗衣服晾衣服就安排在这个位置,比较方便。

26、大家一定好奇这个柜子是干嘛用的?原本这个柜子是为了作为电视柜使用的,后期屋主觉得高了,决定还是搬到阳台这边,当个小矮柜使用也不错。


27、将原始卫生间、衣帽间、小阳台进行重组,主卧拥有了一个绝佳的采光和超实用的套件。不仅拥有独立衣帽间、小阳台收纳柜,飘窗收纳柜等,还借用老人房面积,“偷”出了一面收纳柜。


28、改变了原始衣帽间的动线,设计出了转折路线,隐私性更高。且为了避免镜子对着床,改变了全身镜的摆放位置。

29、同样的干湿分区设计,浴室柜底部还预留出位置,方便打理。一整面墙的衣柜,换完衣服,洗漱好,就可以直接出门了,简直完美~


30、公共卫生间选择干湿分区,将黑白灰贯彻到底。具备强大收纳功能的镜柜必须安排上,一切以实用为主。

大家可以感受到的,所有的设计都是为了方便生活,提升居住效率而打造,这才是实用的装修,希望给大家做个参考。