43平的小户型loft,娱乐区和收纳都有,谁看了不羡慕?
秦皇岛蓝琪装饰
2020-09-18
今天要分享的是要建筑面积43平米的小户型loft案例,房子位于台湾,在设计师巧手改造之下,划分出了休闲区、娱乐区和工作区,客餐厅也显得格外的宽敞,还充分利用墙面空间,做了许多的收纳,让人羡慕不已。

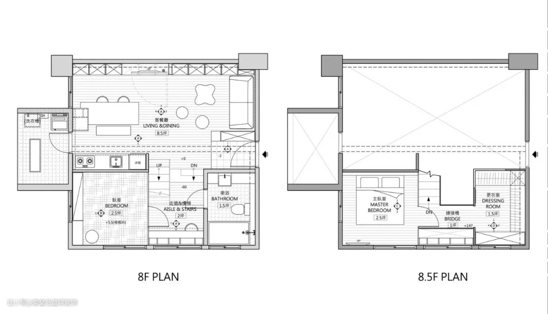
平面布置图

入户的玄关空间,本来没有玄关走廊的户型,设计师利用鞋柜来分隔客厅和玄关,换鞋凳加吊柜的设计能拥有更多的储物空间。

走过玄关就是连在一起的客餐厅空间,客厅的沙发没有对着电视摆放,整面电视背景墙都被利用起来做了收纳,再也不担心东西没地方放了。

绿色的柜门和木色的格子,电视背景墙的设计和餐桌椅也是相互呼应的,整体感非常强。阳台和餐厅之间用黑框玻璃门作为隔断,让光线能更好的流通起来。

在餐桌的侧方做了厨房,空间比较小,还把冰箱也嵌入其中,开放式的厨房空间就需要注意油烟问题,平时避免爆炒、油炸。

通往二楼的楼梯下方是一个舒服空间,整体都是原木风的设计,书桌和开放式的柜子结合,满足不同的收纳需求。

在二楼卧室的下方也是一间卧室空间,地面铺上了绿色的垫子,全屋都可以作为孩子的娱乐区,等孩子大了也可以改成儿童房。

二楼的主卧室也是以绿色为主,搭配木质的床头靠背显得更加的清新和自然,木门加上玻璃作为隔断,光线非常棒。

二楼是有两个空间,两者之间的走道旁也做了不少的开放式架子,可以摆放一些装饰品和书籍,非常实用。

对于小户型来说,还能拥有这样一个独立的衣帽间,也是非常让人羡慕的,一楼、二楼两间卧室,收纳充足颜值又高,这套43平的小户型loft很适合一家三口人居住。

59平单身女孩公寓 超暖的韩式乡村风情
卫生间用浴帘做干湿分离,再也不担心满地的水了
卧室面积太小,把床和衣柜结合起来,非常省空间
实用的高低床设计,让小户型儿童房,扩容好几倍
卫生间收纳很关键,用上这几个地方,没做的都后悔了
小户型听我一句劝!装冰箱别只盯着厨房,这些地方也挺香