案例赏析丨北欧风家装,便捷的人性设计,展现对人的周全关心
名匠装饰整家全屋定制
2020-10-20
一份宁静的北欧风情,绝非是蛊惑人心的虚华设计!



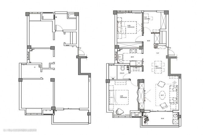
进门即是随心世界,各种小创意设计,回到家就要无拘无束。

向左望去,映入眼帘的便是餐厅。

简单的木质餐桌椅,采用黑色和原木色,搭配造型简约的吊灯,营造轻松氛围。

开放式设计,就是讲究便捷,简洁实用正式北欧风特点。

厨房整体也是白色调,突出简洁。

地面条纹多六边砖点缀,注重功能同时,墨绿色让空间不会显得枯燥,为简单的厨房带来生机希望。

再往前走便是空间主要布局客厅,若隐若现的磨砂玻璃隔断,搭上浅色系窗帘,让光亮照射进整个空间,显得无比宽阔。

室内的顶、墙、地三个面,完全不用纹样和图案装饰,只用线条、色块来区分点缀。

整体以白色为主调,以鲜艳的纯色来点缀,突出空间布局。用简单的装饰画,打造一个时尚的沙发背景墙。


几盆清新的绿植,为客厅营造出温馨的氛围。

电视悬挂上墙,没有搭配传统矮脚电视柜,两边设置嵌入式柜体,将空间收纳与美观做到极致,蓝色点缀更是突出该区域功能。

餐厅与客厅区域色调虽然一致,但是空间又做到完美划分。

在往前走便是阳台,地面同样采用厨房一致的墨绿色六边砖拼接而成。

阳台设计一个洗手台加柜体,方便不少。

洗手台外移设计,正是北欧风的便捷人性设计表现。

柜下灯带,厨房、阳台、卫生间,涉水严重区域,全部用该种瓷砖就是要讲究防水防滑。

回过头来,步入玄关往右侧走去便是书房。木质座椅搭上木色百叶窗帘,古韵读书氛围显而易见。

隐藏式书柜设计,可见物减少,让空间更加宽敞舒适。顶部辅以灯带,又为柜内空间提供照明。

墙面一幅深色艺术画,又可以提供想象和平复心情。

北欧风任何一个空间,总有一个视觉中心,而这个中心的主导者就是色彩。

灰白色的墙面和地面原木色构成主色调,加以纯色点缀。

床头背景墙以布艺软包装饰,无任何纹饰,配以蓝色调,作为视觉中心。布局分割明显,左右又呈对称之式。

大落地窗和浅色窗帘的搭配精致又清新,浅色调又不占背景墙蓝色的主导地位。

以长脚纯色凳代替床头柜,搭上金属质感的床头吊灯,增添一丝艺术气息。

角落里的落地衣杆,提供便利同时,提升房屋的格调。

次卧有点不同于主卧,虽然主色调还是原木色和灰白色,但是视觉中心为原木色点缀的床。

窗帘同样用浅色,不占主导地位,值得一提的是该窗台中间隔断的创意设计。

床头采用一幅纯色装饰画,打破空间视觉疲劳感。

木制梳妆台代替床头柜,带来便利,提升格调。
往期精彩🔥