1.5×2.4米卫生间如何设计?看设计师的6种布局方式,爱了
家居设计师COCO
2020-10-21
1.5×2.5米卫生间,在常规的认识中,应该没有那么多布局方式,其实在设计师眼中,它可以有很多的方案,利用不同的布局来扩大空间。
但是一个卫生间的布局多样化,有一定的前提条件,这取决于你的浴室“门在位置”以及卫生间“排水结构”,如果条件满足,不管你是想要淋浴、浴缸,还是两者都要,都可以做一个完美的优化布局。
这一期为大家介绍的就是目前6种流行的布局方法,希望可以帮助到你。
门的位置决定的卫生间的布局方式
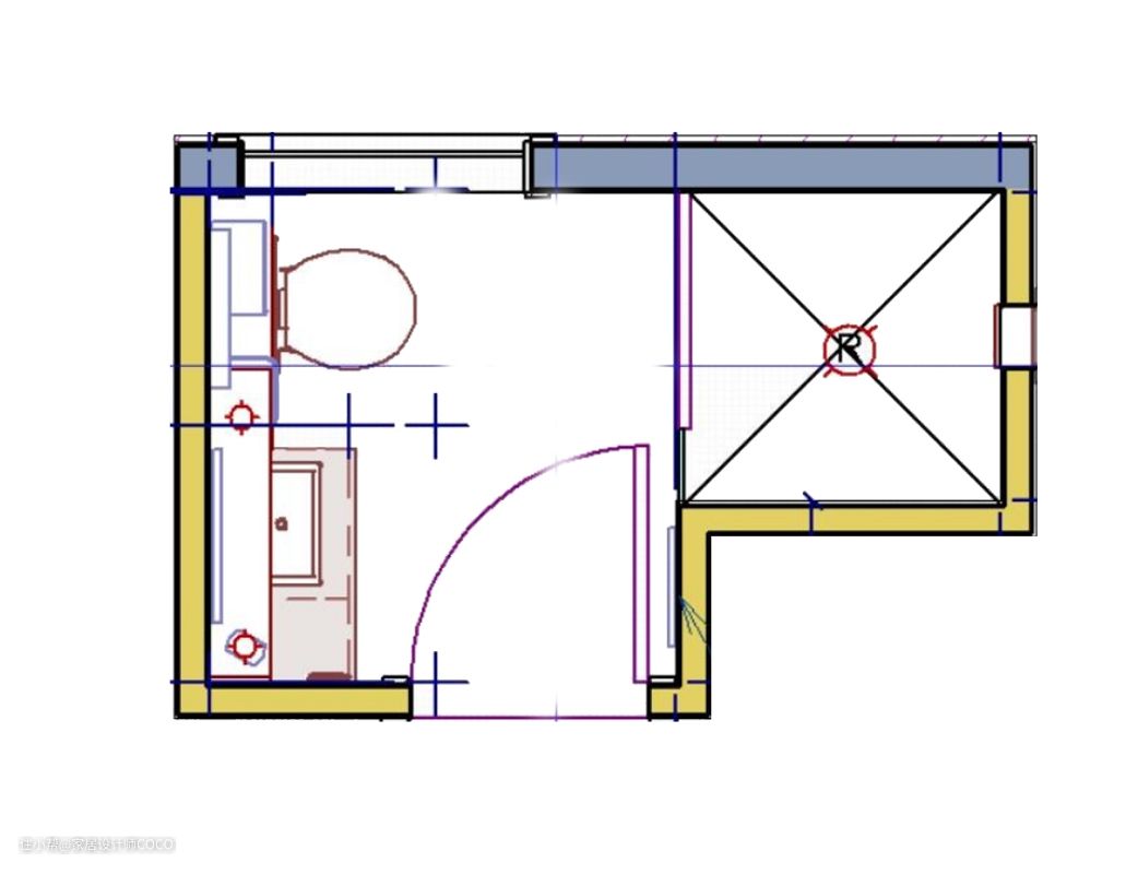
(1)当门的位置,位于短边的一侧
当门的位置位于短边的一侧,1500mm位置的时候,最舒服的布局就是是洗手盆-卫生间-淋浴,因为洗脸盆允许更多的空间让门开合。
如果洗脸盆和马桶被调换了,你就得绕着门走,或者当你进去的时候,你可能会碰到正在上厕所的人。
淋浴区可以是浴缸或淋浴,这完全取决你的爱好,这种基本的布局方式,是保持了马桶的的位置以不发生移动,因为避免马桶移动是可以减少预算和避免马桶堵塞的有效方法,这种简单的布局对于那些行动不便或需要快速上厕所的人来说,这可能会带来一些好处。


如果卫生间的马桶区在一侧,洗手盆在中间的话,开门可能会影响马桶区的使用,但是又不想移动马桶,那么这个时候选择推拉门将是最好的办法。


扩展小知识:
如果你把卫生间门换成轨道推拉门,那么一定不要选择便宜的产品,因为推拉门对隔音和隔绝气味、潮气的能力是很差的。
“推拉门看起来是个好主意,但实际上如果你处理不当,就是一个很失败的设计”
如果你不需要浴缸,淋浴房可以提供更多的灵活性,因为它可以占用更少的空间,以获得更多的存储空间,如果不是一个主浴室,设计成一个宽敞的淋浴房将会更实用
门的位置位于中间
这是我最喜欢的1.5×2.4米卫生间的布局方式,门在长边的中间位置,最理想的布置是让水槽直接对着入口处,这样,如果门开着,客人或者你和你的家人看到的是一个漂亮的洗手台,而不是一个马马桶。
如果你非常喜欢浴缸,这种布局方式可以完美的把浴缸容纳在其中。
这个布局提供一个独立的角落淋浴区和浴缸区,它虽然功能比较多,但也并不是最理想的干湿分离方法,它会让空间略显拥挤。
同时他无法满足两人同时使用卫生间。

这种布局有一个比较独特的设计,可以实现两人同时使用卫生间的条件,类似于日本的卫生间设计理念,他们觉得马桶应该是和洗漱的地方是分开的。
马桶做了轻微的移动和改变,让马桶区和洗漱区完全的独立,各自拥有自己的空间,这样在早上的时间,如果俩人同时起床,可以提高卫生间的使用效率。


门的位置在长边的一侧
这种布局也是一种比较常见的方式,也是一种比较理想的方式,可以完美的提供干湿分离的空间。
这个布局的唯一棘手之处是放在卫生纸架的设计,如果你想把它挂在墙上,你必须把它伸到后面,或者把它装到墙面的对面,因为他没有一个台面供你放卫生纸,如果想做一个延伸的基座水槽,那么你必须把它放在身后,或者安装一个独立的支架。

这种布局有个不错的创意方案,可以在水槽和马桶后面增加一块厚度,折一做台面,可以做壁龛,还可以做壁挂式的马桶,这些设计都可以额外的增加存储空间。

“排水结构”影响卫生间的布局
卫生间排水有同层排水和隔层排水两种,如果你的卫生间属于同层的下沉式卫生间,那么恭喜你,你可能有了更多的布局方式,因为你可以按照自己心仪的卫生间来改变下水的位置。

可以根据自己的喜好,设计一个大大的淋浴区或者大大的马桶区,在这里我觉得大多数人应该是喜欢做一个大大的淋浴区。


尽管这样的布局会让马桶区看起来比较拥挤,但是豪华的淋浴房有谁不爱呢。
总结
1.5×2.4的卫生间虽然不大,但是却有很多不同的设计布局,门的位置和排水结构是影响他们的直接因素,如果你的墙体是非承重,再如果你的排水是同层排水,那么你就可以按照自己的喜好来设计自己的喜欢的布局,达到最满意的效果,如果你的卫生间是隔层排水,那么我建议最好不要动马桶的位置,因为那样会让你的马桶堵的怀疑人生。
希望我的分享能够对你有所帮助,感谢阅读,如果你有不同的意见欢迎评论区评论。
想要了解更多,欢迎关注我@家居设计师COCO