她家这面粉色墙,也太美了吧
装小蜜装修监理
2020-10-24

关注我们,获取知乎点赞十万加的装修干货
-
今天是第 026期#家装故事#
装修得好是故事,装修不好就是事故
-
-



屋主:MR_Fang06
户型:3室
建筑面积:130㎡
花费:40w
坐标:安徽-合肥

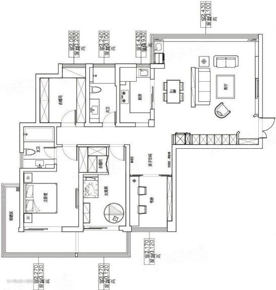
户型图
改造的第一版平面图,实际装修和平面图有些出入,因为拆改的时候,有些地方拆不了,比如厨房门洞的位置只能在侧面。


从室内看向玄关
入户是指纹锁,耶鲁y70可以联动天地钩,但是屋主感觉经常识别不出指纹。进来后利用入户三角区域做了个缓冲。

从玄关看向室内


从玄关进来,就是客餐厅一体的空间,没有明显的空间划分,但用一个柜台作为隔断,让两个空间隔而不断、各司其职。客餐厅保留大大的落地窗,早晨阳光很好的时候,把窗帘拉开,就是现实中的阳光满屋。

全屋公共区域是无主灯设计,利用射灯、筒灯照明,色温3500k烘托出家的温馨感,高显色指数也让家居的质感立马提升起来。

沙发和抱枕选择设计简约的,让空间的线条尽量简单干脆。下班很累的时候,直接瘫在地毯上也很舒服。

电视背景墙和顶天立地柜结合,有娃的家庭在设计时,收纳就是最大的诉求。东西多却又“空无一物”的秘密,就在收纳柜。朋友说屋主家,简直是收纳狂魔,把各个空间都利用到了极致,连过道边都是收纳柜。

餐厅考虑到家里平时客人少,而且空间有限,屋主没有选择大圆桌,而是方形餐桌。餐桌桌面有大理石质感,北欧风格的餐盘和摆件,算是家里最北欧的角落。

餐椅一边是长凳,一边搭配的木椅,混搭也别有一番风味。

过道收纳柜的尽头,留出一部分空间,内嵌入冰箱,白色西门子冰箱,视觉上和高柜、周边柜子融为一体,极度舒适。


厨房不算大,基本按照原来的结构做的小L格局。不过麻雀虽小,也是五脏俱全,各种小家电都安排上了,小空间也能料理出幸福的烟火气。厨房墙面贴了屋主最爱的拉槽小白砖,全屋美缝都是屋主自己做的,不过也是美缝的时候,屋主才知道这原来是在填自己挖的坑。
关于美缝,屋主和朋友说,她家美缝都是自己做的时,朋友都震惊了。屋主买的美缝是马贝141,一人填五桶,历时一个月,印象深刻,不过这辈子应该不会再做美缝了。为了省料,有些地方没填实,干的时候受重力影响,下去了一点点,不过住久了也习惯了。屋主这里提醒大家,淡化缝能不用浅色就别用浅色,马贝141是磨砂材质,容易留灰,浅色留灰看上去就会发黄,地面也慎选白色的砖。


书房和亲子空间是一体,亲子空间的墙,掏空做拱形门洞,金属门套,让整个空间具有曲线的流动美感。

拱形门洞视角
推开玻璃门,就是书房,主要的工作区。

书房窗帘选的是立川百叶,网红单品,简约干净,光影一下子高级了,周末看日落十分治愈。立川百叶耐脏性能很好,百叶窗清洁起来也很方便,定期拆下来,喷枪冲一冲就搞定。
书桌是定制的, 桌面上方墙面做了宜家洞洞板,把很多照片等小玩意统统放上去,又美观,又实用,放上去的时候你会有居家的感动,原来生活的痕迹可以这么美。简摩椅子,极简的美貌,不过坐起来不太舒服,座高不能调整。


主卧背景墙,选择了粉色,与空间中的其他蓝色调搭配,十分和谐,也有种沉静的高级感。
粉色乳胶漆选用的是都芳小桶漆,专门刷深色墙,不加水,色号是1-3603T,屋主后来加深了一些。

床是合肥本地定制,床头皮艺靠垫,舒适柔软。床垫是金可儿,软硬度适中,包裹性较好。地板是LD木纹砖,人字拼贴,费用上,最后算上整体铺贴费,不比木地板便宜。

一个创意造型的床头柜,虽然置物能力和收纳有限,但胜在造型独特。
主卧装修唯一的遗憾,就是水路主管道走在了室内吊顶里,在卧室里有时候能听到水流声,这是屋主在权衡了费用后,做出的选择。


家有小公主,儿童房绝对不能马虎。屋主的想法是要有童趣,亲自规划了亲子空间,收纳是宜家的全套收纳,黄色桌子是买磁力片送的,爬行垫特意选了安全耐磨材质。还有攀爬设置计划,后续会慢慢完善。

儿童房空间不大,12平左右,但是陪伴孩子成长的时间更为重要。


衣帽间是独立出来的,夹在两个卫生间的夹角位置,二字型布局。

储藏能力非常强大,不仅放衣服,家庭换季的被褥、平时不用的小杂物都可以放在里面,门一拉全部衣物都隐形了。还有个小窗景书桌,发呆、放空自我的好角落。

主卫:

主卫布局是主流的I型干湿分离,比较紧凑。卫生间的墙砖、地砖都是LD家的。浴室柜是提前量好尺寸定制的,北美橡木材质,整体上很清新、自然,本来还想再做壁龛,但发现柜子的收纳已经够用。
便区的大鲸智能马桶和移门之间预留了18公分,大鲸智能马桶功能比较强大,自动翻盖冲水,还送了喷枪,可以把卫生间死角的清洁搞定,省心又省力!马桶移位60公分,屋主家至今没堵过。这里提醒大家,移位会增加堵塞风险,选择的时候要慎重。

比较遗憾的是墙上几个插座预留前期考虑不够充分,所以现在墙面有东一块白西一块白,让深灰墙砖看起来稍微点乱。
次卫:

次卫的风格,现代气息比较浓郁,浴室柜的颜色为金色搭配深蓝色,线条简单流畅,洗漱区墙面搭配粉色挂画来冲击视觉,屋主很喜欢。
洗漱台台面有挡水设计,使用时也很好清洁。面盆龙头kvk5071是网红抽拉水龙头,早上洗头方便,不用把脖子伸得老长。而且出水细腻、温柔,不会有很大的水花声,不用担心吵到家人,很人性化的一点。
家里的风格原本希望是北欧简约风,现在装完了感觉又有点现代,不过整体自己觉得很舒服,这就够了。
每个人心中都有自己的理想家,我也不例外。尤其在有了2岁多的小公主之后,更希望把家重新布置装修得美美的,所以我们家算老房重装,光半包带增项就花了11万多。这里要提醒大家,签合同的时候钱不要一次性付清,一定要确保没有后期增项。
虽然也各种做功课、看攻略,能省的钱是一定要省,但品质也要同时抓,装修过程中才知个中苦和累,磨到最后也变得越来越佛系,不过这些辛苦在最后的成果面前也都值得。
-

-
装修群里,群友的每一个问题,其他群友可能正在经历;群友面谈的工长,其他群友可能刚被坑完……
装修不是一个人能完成的事情,需要大家分享才能做得更好。
投稿、合作请加微信:yuanqilu2020(添加请注明来意)
-
你可能还想看
装小蜜用户总结超全装修避坑指南
经典好家共享案例
14个厨房设计小妙招
关于风格&户型改造,你可能还想知道这些

ins北欧风 丨 现代简约 丨 现代原木风
复古风 丨 极简主义 丨 北欧 丨 日式简约
小户型攻略 丨 精装修复式 丨 开放式厨房
你可能还想知道这些装修干货
瓷砖铺贴 丨 瓷砖薄贴法 丨 集成吊顶
马桶移位 丨 防水 丨 排水坡度
地漏 丨 淋浴房 丨 卫生间装修重点

房子和主人一样好看哦
装修怕被坑?
请装小蜜家装监理,为装修保驾护航