260㎡轻奢艺术大宅,优雅精致的新贵气质!
俊雅设计小小
2020-10-25
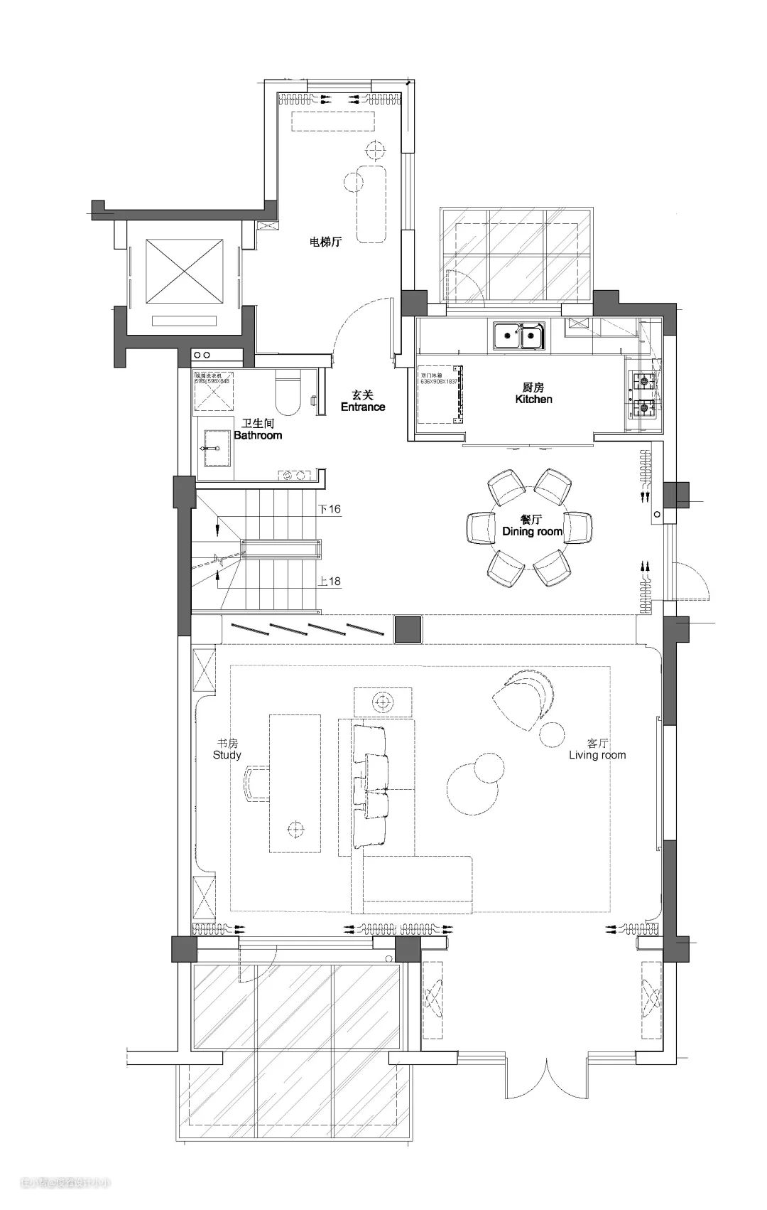
01/一层
首层采用了开放式布局,客餐厅纵向延展,两两互通,整体空间更加阔朗大气,同时让家人间交流更便捷,营造和谐的居家氛围。

油蓝色的皮质座椅背面点缀时尚的纹理,黑白主调的餐桌上,每一簇鲜花都对生活的热爱。灯具彷如珠宝般散发出华丽的光芒,精巧别致的餐具更显皇家风范,每一寸空间都与艺术相辅相成



客厅用浅色大理石铺垫轻奢优雅的格调,丝质绸缎的抱枕,优雅的蓝色单椅,水波纹徜徉在地毯上,头顶是泛着金色光芒的菱形吊灯,为素雅的空间增添几分贵族气息。阳光穿过薄纱倾注暖意,绿植正在散发清新的气味,生活如此美好。




书房并置于客厅内,打造开放式家居动线。以沙发为界,将阅读休闲融入家庭生活。书房延续优雅轻奢的主旋律,一幅抽象派挂画增加了空间的层次感与艺术性。


雕塑家亨利·摩尔有言:对我来说,雕塑蕴含着生命和动力,有机的造型尤具感性,能传达感情和暖意。往露台的次玄关,通过蓝紫色的艺术雕塑与香槟金金属置物台混搭,以及富有张力的大理石和富含生机的绿植,丰满了空间的视觉而不失和谐,传递生命的暖意与活力。

打开落地窗,映入眼帘的便是充盈诗意的露台。阳光洒在木地板上形成斑驳阴影,木质的自然温润,沙发的柔和细腻,植物的明艳清新,为你带来一个慵懒舒适的午后。

02/二层
在艺术中探寻梦境
Dream of Upstart
主卧整体色调以香槟色、米白色为主,优雅的蓝色平衡两者又强调着自身的个性,它们共同营造轻松安逸的环境。天花板的香槟色曲线不动声色地划分了功能区,金色格栅打破空间的沉闷,金属肌理透露出高贵的质感。


主卧的独特之处在于沙发区的设置,植入阅读、品酒、聊天等生活场景,让卧室功能不再单一。梳妆台与墙体一体化,满足收纳之余节省了空间,圆形的灯具简约雅致,质感金属和透光石材碰撞出美妙的乐章。




石材的硬朗质感让卫浴空间更利落干净。低饱和度的金色的质感静静流淌,既不喧嚣也不低沉,一帧黑白装饰画宕开一笔,艺术的气息蔓延在家中的每个角落。

女孩房运用了低饱和度的暖色系,拼色与几何融合,一抹亮眼的红表现出盈盈活力,圆形挂饰折射出渐变的迷人色彩,呈现了一个梦幻、活泼、时尚的空间。


Bold chair红色单椅是来自瑞士设计团队Big-Game的大胆设计,以线条造型,极简舒适,为生活空间带来独特的艺术气息。造型精巧的台灯、浪漫的少女雕塑、绒面与纯棉的质感床品,细节之处体现对少女梦想的呵护。



男孩房则运用了宇宙、星球、飞船等元素,地毯是浩瀚无垠的宇宙,太空船在肆意飞行,彰显了酷炫的男孩个性。

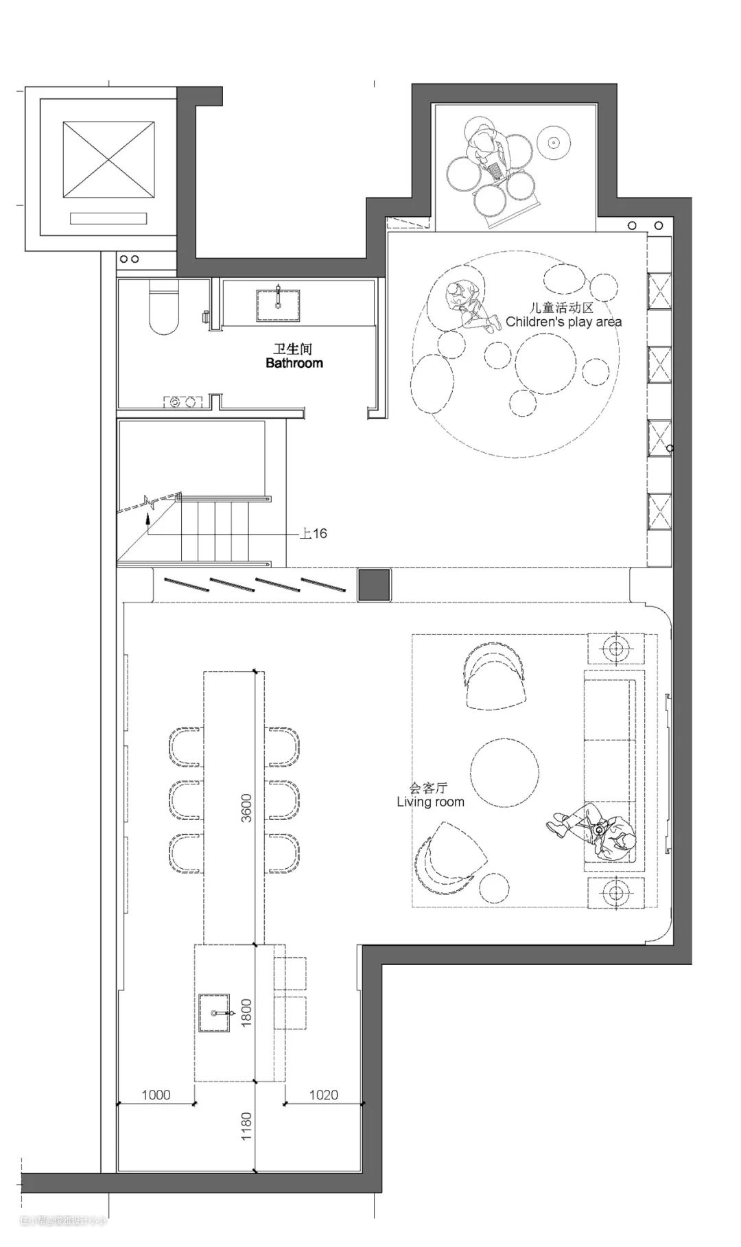
03/夹层
发现生活的乐趣
Life Joy of Upstart
生活的乐趣在于你对生活的态度。夹层集合了会客厅、插画工作室、花房、儿童绘画区、架子鼓练习区,将你的兴趣爱好尽数满足。设计师拥有对生活的洞察力和设计的专业度,二者结合,打造出一个能够承载人们精神需求的场所。

米尔曼说:“冰冷的大理石使神恢复了生命。”会客厅背景墙运用硬朗的大理石,利落的线条穿插其中引导区域划分,空间风格内敛沉稳而富含韵律。高级感十足的灰色沙发与黄铜色相得益彰,别有巧思的挂画演绎着繁花的生命力,简约的茶几与沉思的雕塑营造尊贵的氛围。



另一侧的插画工作室与花房积极相拥。利用采光井的照明条件,花房的视野通透明亮,显得大气阔绰。花房的存在为繁忙的都市人提供亲近自然的机会,繁花入眼,绿植怡人,让人心生欢喜。

而工作室的工作桌宽长且与中央岛台相连,大理石的桌面搭配黑白简约家具,于静谧的一方角落,为主人提供尽情享受绘画的乐趣。

儿童休闲区的通体式展柜兼备收纳和展示的功能,错落式设计营造出灵活的律动感。石头肌理的软垫与山丘状的地毯相互呼应,同时又与编织布艺软垫形成视觉上的反差,对比碰撞出感官上奇特的趣味。

音乐区位于阳光一角,架子鼓预演着活力与奔放。透过与音乐对话,令人获得精神的满足。

设计师除了对材质、色彩的严格把控,更是把生活兴趣纳入考虑,打造了数个场景以满足人们的生活与精神需求。艺术不止是“高处不胜寒”的虚无,更是融入到生活中的烟火气,美学与生活互为共生,墅居生活亦然。

首层平面图

二层平面图
