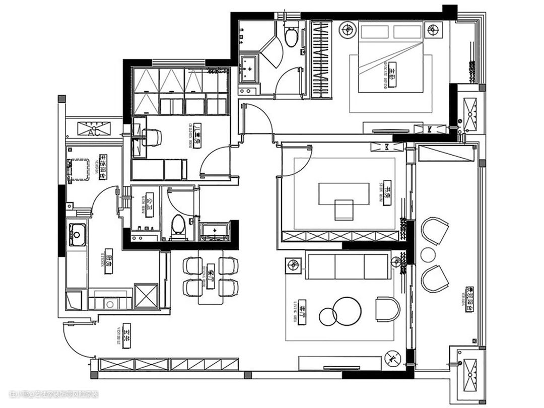
132㎡现代轻奢,简约+灰色调,享品质生活
艺述家装饰零风险家装
2020-10-28
本案是一个132㎡的3室2厅装修案例,这套案例的屋主是一个三口之家,希望改造后的家充满现代感与轻奢感,同时不失温馨与格调。由于夫妻俩的工作比较繁忙,经常需要在家办公,所以对于书房的设计有着独特的需求。关于儿童房,更多的是希望打造一个适合儿童居住的健康环保且有童趣的卧室。设计师与业主沟通之后,确定风格为现代轻奢,以简约风格为基础,通过一些软装元素来凸显质感。同时也完善了生活中不可或缺的功能与细节。在色彩选择上,选用了带有高级感的浅灰色,演绎一种“低调的奢华”,令空间质感更为饱满。

户型:3室2厅
风格:现代轻奢
面积:132㎡

灰色的基调,简约时尚不落俗,利用绿色元素增添亮点,既恰到好处又增加色彩层次感。

朝南的阳台可以接收充足的光线,当阳光洒满室内,原本有着些许冷意的浅灰基调看上去柔和不少,更添温馨。

客餐厅的灯具皆选择环形灯饰,既错落有致,又整齐排列。大地毯将客厅范围划分出来,很自然地隔开了客厅与餐厅区域。简练的线条,搭配清爽的家具,格调一下子从细节处展现出来。

书房是一片宁静的氛围,能够让人放松下来。整面的收纳柜除了可以放置书籍外,还能展示业主的收藏品。金属几何书桌,看上去既奢华又简约,颇有格调。


卧室同样保持了白色+灰色调的简约搭配,以线条诠释设计感,不做过多的装饰,简单又美观。

儿童房采用的是书柜与床一体设计,既能保证风格的统一性,还能提高空间的利用率。