这些厨房空间的布局技巧,你真的了解吗?
至简名设一陈玉香
2020-11-04
厨房是充满爱意的地方,一套好用的橱柜能让我们做饭的心情更加美妙,做出来的食物都更加美味。既然厨房这么重要,怎么才能设计好厨房,协调好厨房中各个部分的位置和动线关系呢?

01.橱柜常见布局有哪些?说到橱柜的布局,无外乎网上常谈的那五种方式:一字型、二字型、L型、U型、岛型。原始布局开发商已经定好,至于哪种最好,并没有绝对的说法(操作台面越宽越好)。只要满足厨房操作动线就可以了。基于烹饪习惯及顺序,理想的操作顺序一定是这样:在冰箱处拿菜、洗菜区洗菜、备菜区切菜、烹饪区炒菜、顺手搁菜。即:‘洗、切、炒、搁’。下面我用一张图给大家展示各种厨房布局的优缺点。

02.橱柜布局改造方案有哪些要点?家装设计师是厨房好不好用的源头,虽然橱柜布局有橱柜公司设计师负责,但是橱柜公司设计师是根据我们的布局规划来完善橱柜的细节设计的。所以厨房好不好用重点在于我们,我们在初期沟通的时候就要进行合理的户型优化设计,下面,我将会给到你几个厨房布局规划的要点,以供你明确设计思路用。
1、下水管位置决定台盆的位置
为避免厨房下水堵塞,厨房的台盆会靠近下水管,厨房下水管绝大部分是75㎜孔径的,部分厨房50㎜孔径。在遇到50㎜孔径的下水管时,尽量不要改动厨房的台盆位置,以免食物残渣堵塞下水管。

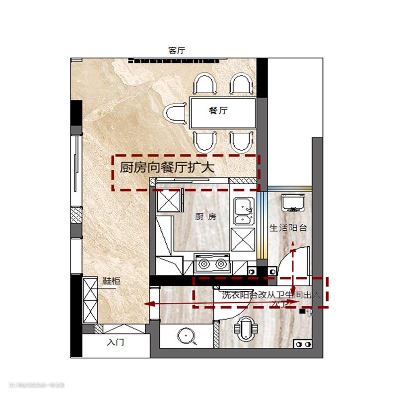
厨房下水管一般靠近窗户处,这样洗菜备菜的光线好。如遇厨房下水管背光,又改造了厨房的,台盆下水可利用靠近窗户的一根。如下图户型中,厨房和生活阳台比较紧凑,业主想要一个光线比较好的大厨房,且不想将冰箱放置到客餐厅,故只能将厨房扩大到生活阳台,厨房废弃原厨房下水,利用原生活阳台下水管下水。


2、烟道位置决定灶台的位置
烟机位置离烟道过远是大大影响排烟效果的。如果烟机的排烟管道过长或者有过多拐角,会导致烟机吸力不足、烟道排烟不畅,甚至烟机运行时还会产生大量噪音。距离可参考:200㎜≤最理想范围≤1000㎜。如果出于房型问题,超过1000㎜的,那么需要购买排烟效果更好的烟机。

所以,如遇改造方案比较大的,我们要记住原则烟机应靠近烟管这个原则。在预留烟机安装位置和烟道之间寻找最佳路径,确保排烟管走向尽量缩短,转弯半径尽量大。如下图案例中,原始厨房面积过小,只有3.66平,除了占用原生活阳台扩大之外,如考虑在别的地方改造,则应尽量设计烟机离烟道距离最近。总之,在寻求可替代方案的时候,原则是要利用原有烟道(商品房油烟不允许排),并越近越好。

从上原始结构可以看出,如将生活阳台变为厨房一部分,因为右侧卫生间窗户直通厨房,卫生间的湿气、臭气都将会经过厨房,同时卫生间的私密性得不到保障。很多业主比较忌讳这两点的时候,我们就要寻求别的方案。所以,经过沟通,最终业主选择了将原来入户花园改成厨房,厨房和生活阳台都有扩大,使生活更加便利顺心。
3、房型决定冰箱位置,冰箱位置决定户型改造方案
在我们面临的厨房问题中,如果有遇到烦恼,大部分是冰箱带来的烦恼,最常见的就是厨房放不下冰箱,或者放了冰箱不是很方便(比如说半遮住入口)。首先我们很有必要来了解一下厨房最大件:冰箱。只有了解了冰箱的尺寸及相关知识点,才能更好的预留、布置空间。
a、常见冰箱都有什么尺寸?常见小单门尺寸560㎜宽×550㎜厚×1750㎜高(部分尺寸见下图)。
常见双门及多门尺寸宽度在700㎜~1000㎜之间、厚度在650㎜~700㎜之间、高在1740㎜~1800㎜之间(部分尺寸见下图)

b、普通冰箱做嵌入式设计时需要注意什么呢?因为普通冰箱大都是外挂的散热方式,在后方和两侧散热,如果做嵌入式冰箱,考虑到散热及活动空间,建议冰箱左右及上方各预留100㎜的空间。如单门冰箱宽度预留在700㎜左右,双门考虑使用大双门的比较多,常会预留900㎜-1000㎜宽度,冰箱高度大约都在1800㎜以内,故嵌入式冰箱高度可预留1900㎜高度即可。如果厚度想跟橱柜等柜体持平,那么我们柜体要做到约700㎜厚度(双门)。
c、普通冰箱预留位置需要这么宽,有没有预留宽度更少更贴合的冰箱?答案是有的,市面上有一种冰箱柜体嵌入机,并不需要像普通冰箱一样左右各需预留约100㎜的距离,此种嵌入机采用底部散热的方式,左右两边可只要预留20㎜的距离,相比传统冰箱,左右可节省160㎜的空间,并且精致美观。
d、真正的嵌入式冰箱长什么样?以上介绍的冰箱皆是假嵌入式,目前有一种真正嵌入式的冰箱,冰箱面板可定制橱柜面板,关上柜门找不到冰箱系列。他们长如下这样。


e、嵌入式冰箱是怎么散热的?真正的嵌入式冰箱因为两侧都有柜板,所以其散热方式与普通冰箱不同。普通冰箱散热在两侧与箱后,通常采用外置散热器的方式,将散热器贴合到冰箱的后部,这种散热方式不需要风道的引导,背部一定要留散热空间。而嵌入式冰箱的散热集中在地脚、顶板。在安装时,需要预留一定的顶部或底部散热空间。

f、嵌入式冰箱是怎么做到冰箱柜门与橱柜或者其他定制柜体同色同材质的?不少朋友比较好奇,冰箱柜门是怎么定制成橱柜柜门的,难道出厂的冰箱没有柜门吗?其实很简单,大家看下图就明白了。
安装四部曲:
1、 冰箱放预留柜体中
2、 柜体门与冰箱门连接
3、 冰箱门门与冰箱连接
4、 冰箱与柜体固定
Ps:由于冰箱要避免受热受潮,建议距离水槽㎜燃气灶空间1000㎜以上。今天我花了大篇幅给你详细介绍了冰箱预留的相关知识点,是因为冰箱在厨房规划方案中很重要。现在我们回归到第三个布局要点的介绍:冰箱位置决定户型改造方案。设计最重要的是思维,我们只需要明确两个思路来处置冰箱的放置。
1、冰箱放厨房外面可替代方案
对于厨房实在放不下冰箱的,那么我们冰箱可以换的地方主要有哪些呢?思路就是一定要离厨房尽可能的近。可放位置有:客餐厅、过道,生活阳台等。
a、 放客餐厅一般会考虑放在餐厅的某个角落,或者客厅跟餐厅之间。放在餐厅的时候,有在墙角单独放冰箱的,有跟酒柜做体的,还有将餐厅区域做成厨房延伸电器操作区的。在设计的时候冰箱尽量以藏为美,柜体厚度设置成冰箱的厚度是最理想的。下面给你欣赏一些冰箱放客餐厅的美图。

b、 放生活阳台大部分生活阳台基本挨着厨房和餐厅,如若厨房摆不下冰箱,可考虑将冰箱放置在生活阳台上,并没有很远,相反,厨房可以多做一些台面,增加利用率。如下户型中,原冰箱位置在烟囱红色线框处,本也没什么不妥,只是业主厨房实在想要多一点台面来烹饪,经过沟通后,将冰箱放到了阳台。从冰箱到洗菜盆,动线并没有很远。


c、 放过道等空间放过道等空间一般做内嵌式以不出墙体为宜,可结合墙面造型或用屏风遮挡等方式进行设计。下图案例中是一个优化过的方案,厨房往餐厅区域外移,改善厨房过小的缺点。

2、冰箱我就是要放厨房
局促空间一定要放入冰箱咋办?办法总比困难多,改,我使劲造的改!凹造型,移门洞,盗取别的空间….条条都是路。下面我将通过两个案例给大家展示冰箱硬要塞厨房的方案!

案例一:原始厨房过小,放置冰箱则厨房台面不够用。所以必须进行改造。



案例二:原始厨房入口太窄,在烟囱一侧放置冰箱则会把厨房入口堵住,想要把冰箱放进厨房,我们只能往外扩张。

从原始结构图可看出厨房承重墙多,只能往左边扩大…..最终,移了入户门洞,将冰箱与鞋柜做成一条直线,同时入户书房做成通透性的玻璃推拉门,光线佳视野好。

小结.1. 橱柜布局方式有很多,原始户型基本决定了布局方式,各种布局各有优缺点。满足洗、切、炒、搁的烹饪操作顺序即是王道。2.从三个角度给你介绍了好用厨房的三个布局要点,一是烟囱,二是下水管,三是冰箱位置。并顺带全方面普及了冰箱摆放的相关设计注意事项。布局要点介绍里配套了大量施工案例进行讲解,望你仔细思考琢磨。

#你家厨房是怎样布局的?