清新木灰调打造复式北欧风,将一家四口妥帖安放!
福州东易日盛装修公司
2020-11-13
三代人,一个家。
一边是事业有成的男主人,需要考虑他对于细节和工艺的追求。另一边是贤惠的女主人,十分注重家的展示效果、整体氛围和收纳等。和大多数家庭一样,上有老下有小,这个是一个温馨的四口之家。那么,这样一个商品房项目交到设计师手里,将会如何演绎?
我们一同来赏析。
案例楼盘:融侨悦城
案例面积:95㎡
案例风格:北欧风
案例户型:复式四室两厅两卫
原始量房尺寸图


此户型需要重点解决的问题:
1.冰箱要摆在哪里;
2.厨房与卫生间的空间分配比例如何协调;
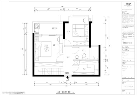
3.二楼书房与卫生间分配比例如何协调;
个性定制:
业主喜欢木色、灰色调性,希望进门口无遮挡,整体视觉效果要好。


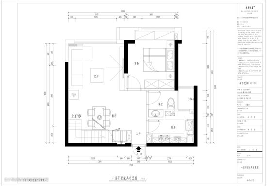
▲一二层平面家具布置图
门厅收纳:把楼梯进行了拆改,增加踏步宽和上楼步数,整体使用舒适感增强了许多,大部分的门厅收纳也集合在楼梯下方,进门的左右两侧都巧思设计出了两个小鞋柜,满足日常使用要求。
厨卫关系:原始厨房小,卫生间与厨房共用一处采光,遂将空余的一部分倒楼板出去增加了卫生间的空间,使卫生间呈“一字型”设计,同时也解放厨房的空间满足了U字型的橱柜设计。

温润的原木色搭配木灰,温馨淡雅。楼梯边用餐区的打造让三餐富有仪式感,将吃饭与亲情养护融合一处。冰箱巧妙嵌入楼梯下方的位置,距离餐桌仅仅一步之遥。旁边多余的空间,做成收纳架,堪称完美摆位和空间开发利用!

改变传统使用空调内机,安装使用中央空调和新风系统,留出排风口检修口,简约美观。中央空调可令家里四季如春,新风系统可净化并引入新鲜的空气,绿色又健康。女主人还可以省去清理壁挂空调的繁琐糟心事呢!



Living Room
为避免墙面大面积灰色稍显冰冷,地面采用带有秩序感却并不古板的木地板,在色调上既迎合了整体,又使电视背景墙在无意中成了一道靓丽的风景线!后期再加上精心的配饰,空间层次将会更加丰富饱满而不杂乱无章。