精装修施工工艺及节点,这样做出来的全是样板
武汉装修白小杨
2020-11-14
装饰类
1. 水泥选用:不同颜色不同选材。
2. 墙地面防水:厚度不小于1.5mm。卫生间湿区(如沐浴房、浴缸)的墙面防水高度不低于2000mm,干区的墙面防水高度不低于500mm,且高于该区域所有给水点位置100mm。
3. 石材六面防护要求。
4. 所有石材外露切割面必须进行抛光处理。
5.地面石材铺装完成后应进行结晶或密封处理, 结晶面亮度要求不小于95°。
6. 房门配置三只合页,上部第一只合页距门顶边180mm,第二只距第一只200mm-350mm底部一只合页距门底边180mm。
7.吊杆应采用热镀锌成品螺纹杆,间距不大于800mm-1000mm。吊杆长度大于1500mm,须采用60系主龙骨或30×30mm热镀锌角钢作反支撑加固处理。
8. 吊顶要求采用成品检修孔,规格满足检修要求。
9. 墙面批灰腻子采用石膏基材料,不宜采用碳酸钙,需调入10%清油,平整度和垂直度必须横平竖直。
1、门套基层
门套基层板根部应与门槛石面留缝(约20mm),缝隙用柔性防水胶泥填实,木饰面板根部应与门槛石面留缝(约2~3mm),以防止水气渗入门套内引起油漆饰面变形发霉。
门框木质基层应经过三防处理(防火、防腐、防潮)。

2、纸面石膏板隔墙转角加固法
安装门洞处石膏板:若为双层石膏板隔墙,在安装第一层石膏板时,门洞上口左右两侧应用九厘板(或十二厘板,具体根据石膏板厚度确定)裁成L形替代石膏板(下图示),以加强转角的拉结牢固度;若为单层石膏板隔墙,门洞上口左右两侧石膏板应做成整体的L型。

3、电视机背景墙加固法
如安装挂画或电视机等,采用18厘多层板加固。

4、石膏板隔墙施工要求
隔墙开关盒处内衬50系副龙,以便自攻螺丝固定开关盒;隔墙隔音棉按照各项目实际情况确定。
隔墙钢筋砼地梁,需按设计图纸要求现场弹线,结构楼面预植Φ12螺纹钢,间距不大于450mm,在顶端处焊接Φ12螺纹钢连接,制模浇捣翻边,翻边处地面应预先凿毛,采用C20细石砼浇捣。

5、瓷砖施工要求
墙砖有无空鼓暴边现象、铺贴是否平整、拼缝是否一致、勾缝是否均匀饱满。

6、墙面石材灌浆法
墙面石材采用湿挂灌浆工艺,采用铜丝连接。分次灌浆,第一次不得超过石板高度的三分之一,待砂浆初凝后进行第二次灌浆,高度为石板的二分之一。第三层灌浆至低于石板上口50mm处为止。

7、墙面湿作业留槽示意图
石材墙面横缝,需根据人体的视线高度排布。

8、瓷砖或石材干挂法
石材厚度要求在25mm以上,2500mm高以内的墙体,竖向需采用5﹟槽钢,横向采用40mm×4mm型角钢,间距根据石材的横缝排版确定,2500mm高以上的墙体,竖向需采用8﹟槽钢,横向采50mm×5mm型 角钢,间距根据石材的横缝排版确定。
如是轻质墙,则需在竖向主龙骨上增加背穿螺栓,螺栓间距不大于1.2m。
挂点设置:石材长度大于600mm以上,每排不少于3个挂点。

▲ 背景石材线条干挂案例

9、吊顶转角加固法
转角部位第一层覆面材料采用9mm多层板,整体裁成L形代替石膏板增加拉结强度;
第一层石膏板与第二层石膏板之间需错缝铺贴,两层石膏半之间必须满涂白乳胶。
低跨造型的四个角采用0.8mm镀锌铁皮做成L型铁片,采用卡钳固定,增加拉结强度、防止变形导致开裂。
副龙骨间距300mm,造型边框四角需增加斜撑龙骨。


▲ 石膏板、石膏线接缝处开裂
10、吊顶挂板加固法
固定木基层结构的吊杆间距不大于600mm。
窗帘箱细木工板对接连接处需用燕尾榫进行连接,以增加窗帘箱的抗拉力,背面采用细木工板加固,每段搭接长度不小于200mm,采用自攻螺丝固定。
细木工板基层外无其他装饰材料施工的,需进行防火处理。
跌级吊顶高度大于等于200mm的侧封板时,应设置燕尾榫。

11、地板施工示意图
木地板靠墙处要留出9MM 空隙,以利热胀冷缩。在地板和踢脚板相交处,如安装封闭木压条,则应在木踢脚板上留通风孔。
在常温条件下,细石混凝土垫层浇灌含水率小于10%,方可铺装复合木地板面层。
木地板的铺设方向:以房间内光线进入方向为木地板的铺设方向。
有地热区域在地板铺贴时,基层不应铺设防潮膜。

▲ 石材与地板交界处施工示意图
地板与大理石围边交接处预留3mm地板伸缩缝,采用与地板同色系的耐侯胶填缝。为防止成品受污染及控制胶缝宽直度,打胶时需先用美纹纸定位。
在近期的实际操作过程中,由于天然石材需要定期维护的需要,石材面应高于地板面2-3mm。

▲ 门槛石与地板交界处示意图

12、卫生间防水做法
对穿过楼板的管道,应先将管道周边的孔洞凿毛,清理干净,再用细石混凝土分层浇捣填堵,细石混凝土完成面高于结构楼板10~20mm,管道周围200mm范围内涂刷聚合物水泥基防水涂料两道,作为局部防水加强。
施工地面防水涂料时,地面防水涂料应涂刷至管壁,并高出地面完成面10~20mm。

13、卫生间淋浴房地暖做法


▲ 淋浴房示意图1


▲ 淋浴房示意图2
14、卫生间施工要求
淋浴间内净空单边不大于1050mm的淋浴间,不得内开门。
卫生间淋浴间内有地暖设置的,建议增加双地漏做法,卫生间淋浴间防水在结构楼板上进行施工。
淋浴房地面石材与墙面交界处用塑钢土封堵。

15、阳台防水做法
上翻梁外防水层宽度应不小于300mm。
室内结构面应高于室外结构面,室内地面完成面必须高于室外地面完成面。
阳台铝合金门槛下口采用1 : 2水泥砂浆掺JS聚合物防水砂浆胶乳填堵密实。(聚合物防水砂浆配合比: 水泥 : 砂 : 聚合物JSJ胶乳 : 水= 1 : 2 : 0.2 : 适量水。

安装类
1. 同类面板标高应一致。同一空间内的同类面板高差不应大于5mm,在同一面墙上时不应大于3mm;并列安装的同规格面板高差不应大于1mm,且间距一致。
2. 安装在同一室内的开关,宜采用同一系列的产品,开关的通断位置应一致,且操作灵活、接触可靠。
3. 开关安装的位置要求:开关边缘距套线距离宜为150mm,下口距地面高度宜为1300mm。
4. 灯具总重量小于75kg 的灯具,应采用双层18mm多层板加膨胀螺栓四点固定的方式连接在结构板(或梁)上。
5. 灯具总重量在75kg~150kg之间的,应采用化学锚栓或其他可靠方式在结构板(或梁)上设置挂钩,挂钩宜采用L60×6镀锌角钢。
6. 灯具总重量大于150kg的灯具,应采用四个Φ12以上化学锚栓与结构板(或梁)进行可靠连接,并应对连接件、结构楼板(或梁)进行受力计算后方可实施。
配电箱各出线回路导线线色应与出线开关进线线色一致,配线应整齐无铰接,导线连接紧密,线芯无损伤、断股。

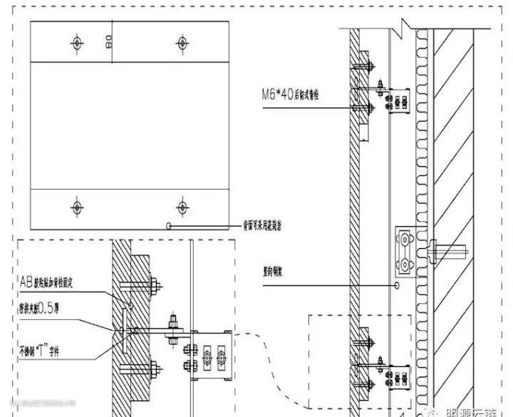
为便于台盆拆卸检修,台盆固定于固定构件上,固定构件与石材垫块用不锈钢或镀锌螺栓固定,垫块背面及台面背面粘结部位需经打毛处理用大理石胶粘结固定,台盆与固定构件连接处需用橡皮垫块,台盆与台面板下沿口用耐候胶密封。

卫生间台盆安装未做硬固定件,有安全隐患。

1、主吊灯基层加固法
需安装轻型吊灯的部位,应预设双层400mm×400mm的18mm多层板,板面与龙骨面齐平(多层板须采用Ø8膨胀螺栓固定在结构楼板底面,并与吊顶龙骨固定连接)。
多层板朝下一面对穿螺栓的开孔深度,以能够将螺栓帽埋入即可;不允许超过一层板的深度,否则会变成单层板受力,影响承重。
板中心开孔宜为30mm圆孔。

2、大型吊灯基础加固法
当灯具重量超过75kg以上时,必须按照上图增加预埋铁板和角钢挂钩的做法,铁板固定要求不少于4颗Φ10的化学螺栓;超过150kg时,应要求不少于4颗Φ12的化学螺栓固定挂钩,并应对连接件、结构楼板(或梁)进行受力计算后方可实施。
石膏板不开孔,并用美纹纸画十字交叉线精确标示出灯线位置,一方面考虑业主日后灯具安装方便;另一方面若业主不必装灯,撕掉美纹纸即可,不必对装修造成破坏或修补。

▲ 吊顶空调安装示意图1
调回风口、出风口、换气扇等处要求设置木边框,木边框宽度不小于50mm,以便于风口及设施安装。
空调出回风百页的尺寸须根据机电安装单位风量计算。
由于此节点会造成空调在制热运转下影响出风效果,对无地热的项目不宜使用此节点。


▲ 灯杯与橡塑保温管直接接触

▲ 吊顶空调安装示意图2
地漏定位需提前地面排版,实地放线,尽量设置在靠近下水管处。
地漏、排水管口径需符合排水流量要求,排水管需设置 P弯。
地面找坡符合排水要求,找坡率0.3%-0.5%。
露台大于15平米或长度超过7.5米以上建议做双地漏。
建筑室内外高差较小的,建议露台设排水地沟。

▲ 地漏施工示意图

▲ 冷热水出水是否正确、是否灵活,台盆与台面是否收口美观