苏州旭辉壹号院别墅,奢华感是从高级材质跟高级配色中装出来的
8号球
2020-11-29
本案的设计手法相当复杂,设计师挑选了极具奢华的装修材质。硬装几乎是在用大面积的石材与木饰面去描绘各个空间,通过空间的多变与交错,在灯光的流动中,仿佛让整个空间有了灵魂的气息。在硬装设计相对来说现代简约的基础上,软装希望融入一个Louis Vuitton 旅行之家的概念,在色彩的选择上采用橘色与灰的搭配。在材质上运用胡桃木开放漆与亮面灰钢的碰撞,在装饰上运用精而少的理念,采用现代的陈设手法,尽量整合空间去演绎具有生活情调与人生阅历一场好戏。
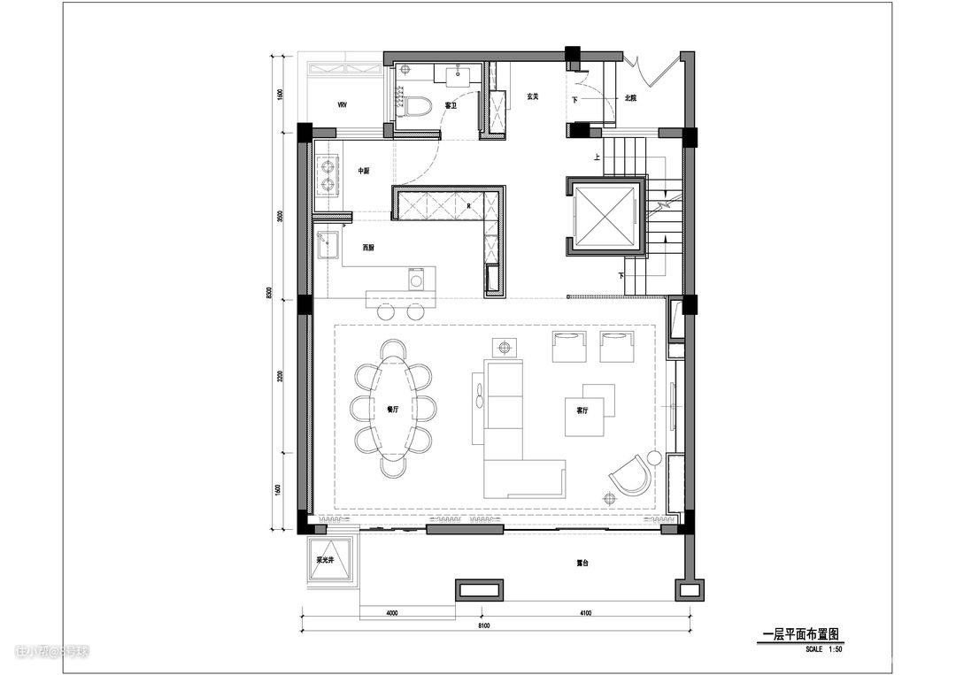
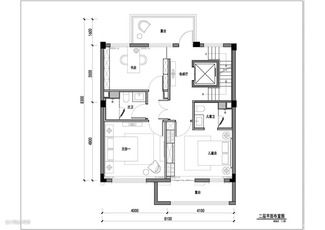
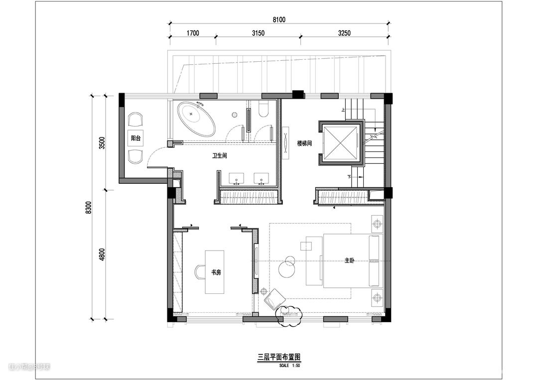
平面布局:
一楼

二楼

三楼

实景拍摄:









整个空间的设计都透露出一种低调奢华的高品味的气息,整个方案在设计中运用暖咖色为主旋律展开,设计手法从最基本的人体工程学的舒适角度出发,每个环节都透露出高雅的气质,加以完美的智能家用电子设备的融合在一起,流露出高品位的人性化舒适感,很快能感觉到享受这舒适的生活感觉翩翩起舞,油然而生。