新房设计|极致75㎡抠出2个衣帽间,也太爽了吧!
壹六装饰
2020-11-29
用40万改造75㎡的房子,乍一听造价一点也不便宜。但细细品完这个家后,惊呼这笔钱花得太值了,每一处细节都抠得近乎完美!
小两居轻松塞下2个衣帽间,空间利用率极高;精妙的洗衣房动线和厨卫卫生零死角设计,对懒癌超友好;全屋还设置了智能家居,各种细节引起强迫症舒适。
一起来看看屋主是怎么改造的吧~
*文末附智能家居设备清单

# 先 睹 为 快
房屋信息
户型:两居室
使用面积:75㎡
房屋位置:天津
预算:40w
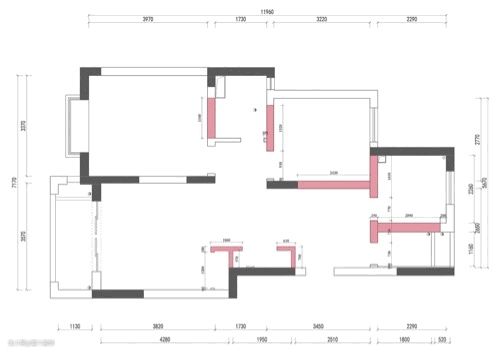
户型图

▲户型图上灰色的墙是敲掉的
户型劣势:
- 没有玄关;
- 餐厅的面宽比较窄;
- 两居室户型,难以同时拥有独立书房和衣帽间。
户型优势:
- 每个空间都比较大;
- 承重墙较少,改造可能性大。
改造点:
- 卫生间右移,为主卧让出部分空间以分隔出独立衣帽间;
- 次卧改为书房,把一部分空间让给右移的卫生间,并利用另一部分空间建立了洗衣区;
- 书房与餐厅之间的分隔墙嵌入餐边柜,为餐厅增加功能空间;
- 北阳台改为鞋帽间,厨房与鞋帽间互借空间,一边为厨房留出一个高柜的空间,另一边为鞋帽间留出了一个衣柜的空间。

全屋多处设置柜子,不会显得拥挤的秘诀在于:柜子嵌入墙体,或者在风格上与墙和各种设施融为一体,这样整个空间都能简洁统一。

衣帽间被划分成了多个功能模块,分别设置在了相对合理的位置,并且融合了“洗衣”功能,动线非常高效。做不了豪华大衣帽间,那就做个“分布式”衣帽间吧!

▲屋主自己设计的柜子布局
用PPT把需要的格局、尺寸确定好,再和全屋定制方沟通和确认最终方案。这样的方式效率非常高,想法表达起来非常直观,自己心里也有底。
玄关
设置鞋帽间+岛台,
搞定0玄关的储物难题

靠近门口的北阳台改造为鞋帽间后,为了最大化储物功能,用一整面墙设计了一个鞋包柜,可以容纳80双鞋和若干个大包。

另一面则是一个开放式衣柜,用来悬挂大衣、外套,出门需要带的随身小物件也可以存放在这里。
来客人时,这片区域也可以作为暂时存放客人外套和包等物品的地方。

大门边放置了一面全身镜,出门前顺路可以照照镜子,整理一下心情。

▲进门视角
岛台提供了可以随手放置手上物件的空间,向门一侧的抽屉用来存放开箱刀、马克笔、零钱等玄关必备的物件,满足了玄关余下的储物功能。
门口的空间和“鞋帽间”相互配合,便解决了没有玄关的户型问题。
客厅
“隐形”柜体,不显拥挤超简洁
模块化沙发,围坐交谈氛围好

我一直希望有这样一个空间,在这里可以把身上所有的压力卸下来,完全地放松,什么都不想,因此我把客厅打造成最舒服,最放松的地方。
客厅的核心便是大电视了。它是整个家庭娱乐的中心,一台色彩好、尺寸足够大的电视所带来的视觉享受的确是无可比拟的。
电视柜采用了悬浮的长柜子,让整体更有空间感,同时柜底的灯带让整个电视柜变得愈发轻盈。

为了补充悬浮电视柜的储物空间,电视墙旁边还额外做了一组柜子,白色的柜体和旁边的白墙融为一体,同时和右边的电视柜相互穿插,顶上则与下沉的吊顶相连,使得整个空间在这里产生连贯的交互。

全屋都采用了加长无框风口,从墙的一头顶到另一头,顺带把新风的风口也藏在里面了。
屋主安装无框风口的tips:
用了一种外盖型的微边框风口(边框和叶片宽度一样,8mm),安装方式和普通风口一样,但是装完的效果和无边框风口相差无几,甚至由于对安装误差的容忍度高,效果更好。

沙发模块化的设计使整个空间变得非常灵活,相互分离后,客厅变成围坐交谈的互动空间。

沙发墙用原木色饰面板贴皮,和餐厅的水泥色墙面、白色柜体,组合成了一个简洁却不单调的立面。
餐厅
柜体中间镂空,
餐厅摇身变休闲水吧

餐厅面宽比较窄,选择了一整张大橡木长桌作为餐厅的中心。

实木的桌子天然带着一种厚重和温暖的感觉,在上面吃饭,喝咖啡,让人非常安心。也可以摆上电脑作为临时的办公桌。

餐边柜上面摆上了咖啡机、气泡水机还有管线机,成为了一个方便的水吧。
在餐边柜背板上预先开好了轨道插座槽位,黑色的轨道嵌入后和柜子融为一体。插座可以随意调整位置,非常方便。
需要使用的电器预先规划好,确定尺寸规格,避免后期摆不进去的问题。
厨房
U型厨房,效率最高
0卫生死角设计,防脏第一名

厨房利用较为方正的格局设计成了U字形,把效率做到最高。
电器的选择上,能嵌入的全部嵌入,能集成的全部集成,尽量节省空间。嵌入式的电器一定要提前规划。

水槽使用了台下盆,水龙头左右分别开了孔,左边设置皂液器,用来装洗洁精,这样台面看起来更简洁;右边专门配了一个黑色的净水龙头。
花岗岩大单槽的质感非常好,配上抽出式水龙头,颜值和实用性满分。
台面与墙面直接连接,接缝用硅胶密封,不做挡水条。

“寸土寸金”的厨下,垃圾处理器、中央水处理、直饮机一个都不能少。设备的尺寸、进出水位置、插座数量都需要提前规划好,“榨干”每一寸空间。
走廊
走廊变洗衣房,洗衣动线最优

超高效率的“洗衣动线”。

洗衣区安排在靠近衣帽间和卫生间的位置,这样的设计非常方便,效率非常高。

洗衣柜右下角是抽出式脏衣篮,抽屉一推直接藏到柜子里,什么都看不到。每天回家,换下来需要洗的衣服丢进脏衣篮,吃饭前丢进左边的洗衣机开始洗衣服。
洗完衣服,丢进上面的烘干机,过一个多小时,衣服就洗好了,直接拿到衣帽间挂起来。

上面的抽屉做成了双层,下层放洗衣袋,上层抽出来就是一块叠衣板。

洗衣房对面设置了一个柜子,既可作为客餐厅和卫生间之间的隔断,同时又兼顾储物功能。
水泥色门板搭配水泥漆和旁边深灰色系衣柜,保持了整体感和层次感。

洗衣区和客厅之间藏了一扇大移门,在烘干机工作的时候这扇门可以起到隔音的作用。同时也成了两个空间之间的“软隔离”,用处非常大。
卫浴
嵌入式设计,搞定收纳
还能减少卫生死角

卫生间也是,把能嵌入的全部嵌入,能腾空的腾空,把卫生死角做到最少。

干湿两区采用不同深度和颗粒度的水磨石风格瓷砖,产生细微的对比。

海淘了一套飞雨,全部入墙之后,整个墙面显得非常干净。
暗装有一个好处就是水阀和出水口可以随意定位,所以如果要装入墙花洒,需要提前和施工队明确好,包括每个出水口的位置,预埋好阀芯。
大顶喷建议选择节水型的版本,一方面省水,另一方面锅炉/热水器的热水流量有限,太大的规格可能没法支持。

智能马桶盖自然是必不可少的“用了就离不开系列”。如果同时需要喷枪,又是入墙式马桶,需要嘱咐水管师傅两边各留一个出水口,否则师傅可能默认只需要一个。
喷枪的软管,默认能找到的只有弹簧管和1.5m波纹管,吹毛求疵的我找商家定制了一根80cm的PVC管,感觉上墙之后好看很多。

干湿两区通过横贯一整面墙的壁龛相联系,既保持了空间的整体感,又提供了储物功能。
瓷砖缝全部要求居中,瓦工师傅也被我折磨得不行。

卫生间采用了隐形地漏,中间位置加高。使用下来证明这样的设计排水效率的确非常高。
加高部分的拉槽使用颜色相近的马贝填缝,一定程度上也起到了“隐形”的效果。
卧室
灯带营造慵懒氛围
步入式衣帽间,衣服再多也不怕

卧室作为睡觉的空间,格局尽量简单。床底和床背后的灯带,让人有一种睡在云端的感觉。

床靠和床架保持一体,用可以灵活调节角度的壁灯提供夜读灯光。

床头柜也做成了悬浮式。

卧室门口的墙角嵌入了一个感应踢脚灯,引路和烘托氛围的作用非常好。

床边就是衣帽间了,里面的空间设计得非常简单,把能挂起来的衣服全部挂起来,只留了一小部分隔板用于摆放不能挂起来的毛衣。

衣帽间的设计图,预留了充足的挂衣空间。
工作区
沿墙做长桌,空间利用率高

餐边柜旁的隐形门一打开,便是书房了。书房应该是一个能让我们一个静下心来工作和学习的空间。只要有一张足够大的桌子,一块能够积蓄灵感的白板就足够了。

利用一整面墙做了一张两米长的书桌,供我们两个人同时使用,并且在一面形成一个转角,作为书桌功能的延续,为打印机、NAS等设备提供摆放空间。

书桌桌面的穿线孔。让柜子厂商制作了几块U型活动板,把电线全部藏到桌洞里,只穿出线头,保证了桌面的整洁。

桌洞里面,藏了专门定制的PDU插座,提供了充足的插孔,还自带Type-c和USB插口,使用起来十分方便。

书桌底下的插座反装,提供给从桌底板穿出的PDU插头,这样一来,除PDU外所有的插头和电线就能全部藏在桌洞里面了。

书桌对面的墙上装了一面白板玻璃,没错就是用来加班的。在工作中我喜欢把想法写到白板上,能够更清晰地进行组织和表达。

入住一个月后,慢慢“热闹起来”的工作台。
阳台
阳台变“生态空间”

没有了晾衣架的束缚,阳台的空间变得更加自由了。慢慢把阳台打造成一个生态空间,让物种一天天丰富起来。

阳台选择了木纹砖,和客厅的木地板连成了一体。地砖和地板之间用1.2公分不锈钢色压条过渡,尽可能减少存在感。
关于智能


由于“懒”,所以我规划了不少智能家居设备,并通过触发器配合一定的逻辑来完成自动化。使用的方案以米家为主,并没有研究更高深的解决方案。
采用的触发器包括了:门锁、万能遥控、开关、光线传感器、音箱、人体传感器、水浸传感器等。
而受控制的设备,根据需求主要分成了三类:
- 全屋照明;
- 电动窗帘;
- 安防和环境设备,包括空调、空气净化器、摄像头、烟雾报警器、天然气报警器等。
屋内所有的灯光都连接了智能开关。通过设置不同的照明等级,分别应对不同生活场景,并用门锁、时间、传感器等触发方式自动进行灯光控制。

基本做到了人在灯在,极少需要通过开关去控制。

全屋使用了电动窗帘,彻底解放双手。
# 本案设计师经验分享
Q1:明明打了不少柜子,但却丝毫不会显得压抑和拥挤,反倒更显简洁大气,您觉得这其中最关键的地方是?
和家里的整体的色调有关系,柜子的面板主要以白色哑光烤漆面为主,白色看上去空间会开旷些,和其他墙面的水泥漆做一个鲜明的对比。
Q2:对于装修过来人,您有什么建议或者心得可以分享给大家吗?
设计师提供设计思路和想法,但是生活习惯和细节上还是要自己把控。