纯正美式生活的正确打开方式,美剧里的家你也可以轻松拥有
设计老崔
2020-12-06
前言
“神说要有‘光’”,就有了光。神看光是好的,就把光暗分开了。” 业主夫妇有虔诚的信仰,他们期望的家是“爱”与“光” 在这里,“光”不单指是物理和工学等知识层面意义上的光。 “光”寓意之深刻,止乎于灵命精神家园,如生命在光中行走。
空间展示
户型图

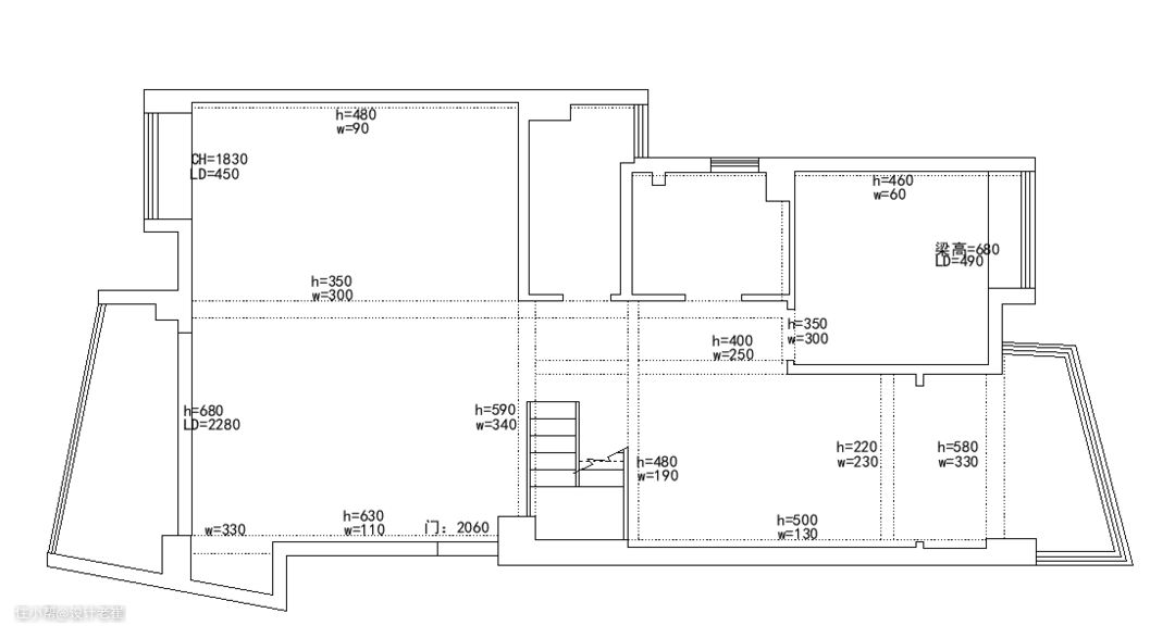
一层原始结构图:
1.入户无玄关区域,鞋包钥匙等小物件收纳空间欠缺
2.原楼梯位置导致客餐厅原本通透的光线、格局及动线被阻隔,居住使用舒适感欠佳
3.受原楼梯位置影响,原厨餐厅位置相对于整屋面积来说过于窄小拥簇

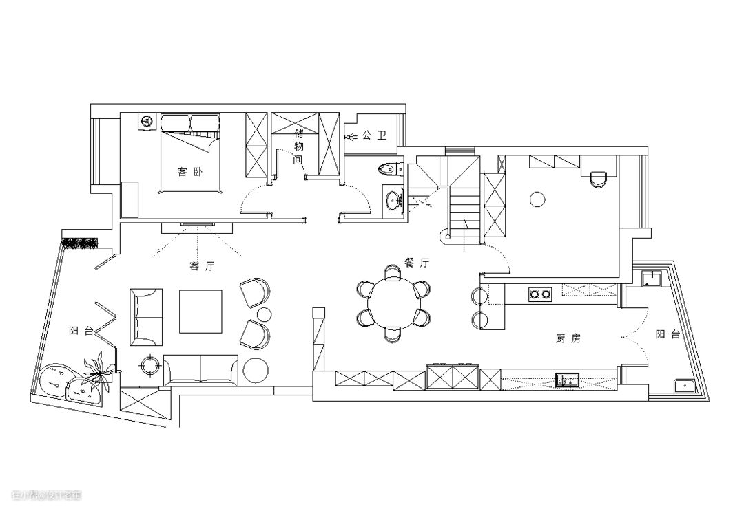
一层平面布置图:
1.现楼梯移位使原本的空间格局对调,难点是油烟管道、通风管道的处理和衔接
2.一层将入户右侧楼梯位置整体移位至图中所示区域,优化了全屋空间的采光、格局及动线,入户右边增加了入户玄关柜,收纳鞋包、钥匙、雨伞等小物件
3.一层客餐厅空间因楼梯移位后,空间整体通透、整屋动线关系流畅,且餐厨使用空间大大增加,餐厅位置整体呈现环形动线,厨房是最舒适的一字型格局,且餐厨收纳空间也大大增加,满足日常功能所需,空间配比完善

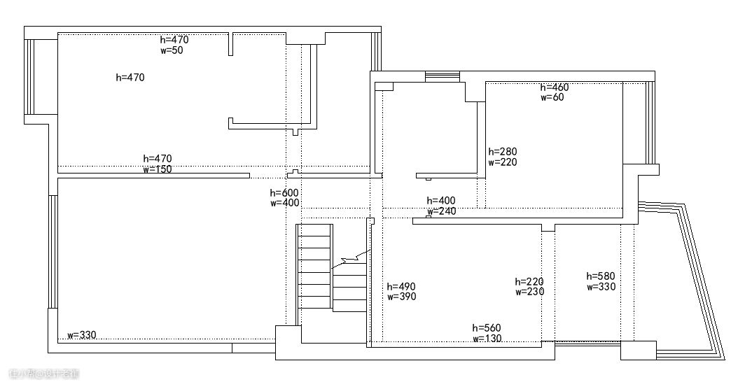
二层原始格局图

二层平面布置图:保留原本客厅区域挑高的格局下,原本没有太多的公共空间,因楼梯移位后,于是在过道上增加了一个可供家人聊天、小憩和阅读的社交空间

三层原始格局图

三层平面布置图
玄关

入户位置沿梁位增加了入户玄关,柜体增加了鞋包、钥匙、雨伞等小物件的收纳,将偌大的客餐厅空间功能区分开。
客厅

客厅挑高的天花运用了双坡式吊顶的手法,从纵向上增加了室内空间,拉伸了空间感,推开阳台的玻璃折叠门可以完全将阳台的绿意盎然纳进客厅,挑高的窗户采用了电动智能模式,可遥控调节开关及通风。整座弧形的半圆大窗,将光影变幻的图形随着时间的流转,好似无形的画笔一般刻录在室内空间的每一寸,从晨光到日暮。光的寓意是美好的,“你定意要做何事,必然给你成就;亮光也比照耀你的路”。“光”是信心、希望和爱。

空间配色运用了静谧蓝和白色作为主色调,暖色系的沙发背景墙石材是来自以色列伯利恒产地开采的米黄大理石,这种石材制作成石皮工艺的要求极高,裸露出来的自然面有着自然赋予的粗犷纹理,极具力量和历史感。


客厅空间中不同材质之间的冷暖对比调和了色彩的平衡,坐具选用了深棕色系的油蜡皮沙发和原木茶几,在同色系的不同质感间是材料之间的相互碰撞,每一个物件的质感在细节中展露无遗。 沙发背景墙靠窗位置,有一个有点鸡肋的异形暗位空间,将此空间巧妙的变为小储藏间。


边几上静静安放着天使的木雕和《圣经》。


电视背景墙沿用了沙发背景墙相同的材质与之呼应,既独立又同为一个整体。 骄阳的数道光柱穿过几净透明的玻璃,宛如数条透明的金带,内中仿佛闪耀着星星点点的尘埃,空气中弥漫的满是太阳香甜的味道,角落里的琴叶榕在偌大的空间中得以恣意的生长。

电视墙的角落里,摆放着亚当与夏娃在伊甸园中的场景。
阳台


阳台上的日光正美,酸洗面的花岗岩呈现出自然粗犷的质感,斑驳的陶瓷花器和水池,承载着可人的植物和活泼的小鱼们自由自在的沐浴在温暖的阳光中,各自安好悠然自得。
厨房

宽敞的一字型开放式厨房,空间收纳利用率高,一体灶线条简洁利落,橱柜台面的品种是产自“宝石之国”斯里兰卡的“皇家翠玉”,皇家翠玉具有花岗岩的硬度,又有大理石的天然纹理,色泽翠绿、透光性好,表面花纹美观大方、雍容华贵。

灰色橱柜搭配暖色调仿古砖,蓝色的小碎花砖作为点缀,整体色彩和视觉简洁明快。过道直线的动线规划使用起来有充足的活动空间,操作过程清晰流畅,便于放置厨房用品与用具。二人共同下厨也不会显得空间拥挤,反而互动起来温馨爱意乐趣无穷。
餐厅



半开放式的厨餐空间,既能掩藏厨房的细节和杂物,又能提高空间的开敞感,让家人间的谈话交流毫无阻隔。
卧室

主卧整个空间的基调是暖色调,墙面运用海基布和墙漆两道工序配合完成,海基布可以给墙面更多丰富的肌理和造型,着重呈现凹凸肌理质感,墙面色彩看似单调却不单一。


走廊


二楼楼梯转角供家人聊天、小憩和阅读的社交空间,每个角落都铺满了光亮。
儿童房

女儿房的主色调是粉晶和静谧蓝,这两种颜色华丽的相拥,真切的散发着小清新的感觉。缥缈轻盈的静谧蓝像是窗外蓝天的延展,它的舒缓效果能安抚人心;粉晶是一种说服力强但不失柔和的颜色,传递着清新和镇静感。

床边的拼花单人沙发可爱又温暖,小主人可以懒洋洋的窝在上面。

角落里充满童趣的木质斗柜,仿佛在讲述着一个美妙的童话故事。


儿童娱乐室空间动线宽敞,全屋采用软木地板,以防儿童磕绊。满墙的收纳柜足够收纳小主人的所有心爱玩具。

空间色彩运用明快活泼的绿色系,绿色对光线的吸收和反射都比较适中,能减少因强光对眼睛所产生的不适。

深绿色大大的黑板墙满足了小主人喜欢在墙上涂涂写写的乐趣。
书房

旧物筑新屋,留住回忆,承载思念。

书房采光通透,整体是木质结构,灵感来源于阿尔卑斯小木屋。天花依然采用了双坡式吊顶,搭配复古风扇灯和温润的原木书桌椅,户外是露天小阳台,布置了几方小菜地,每日逐渐落去的夕阳,余晖铺洒而开,映衬在露台上,朦胧胧的好像笼罩了一层柔纱,露台伴随着光影流转像极了一幅流动的油画。平日里主人在这里阅读学习,雅致而悠静。困了倦了,书房背后的小卧室可用来打个盹儿,好生惬意。