面积120㎡左右确实是理想的房子,够住!无论是刚需还是改善
李秀玲设计师
2020-12-10
在当下,你会发现120㎡左右的房子非常多,为什么呢?因为这样大小的房子,既可以作为刚需房,也可以作为改善房,好卖~不过,120㎡的房子,说大不算很大,说小也不算很小,想要好住,也不是那么容易的事。今天咱们就来说说120+㎡的房子应该怎么装修设计~

120+㎡的房子,最失败的就是装完看起来像90㎡一样,所以,在户型通透感的营造上,更要下功夫!如何让120㎡的房子看起来更大呢?

1、减少空间中的实墙隔断。比如,将多个碎小的空间整合成一个:


信达天御小区的这套案例,原始卫生间周边空间碎小凌乱,重组后形成干湿分离并且拥有洗衣区的四分离卫生间,让整个卫浴空间宽敞显大。

比如,将阳台扩进客厅:


一般阳台与客厅中间都是有一扇玻璃门的分隔的,不仅阻挡采光,也阻挡视线。如果将阳台扩入客厅,就可以让空间的视觉效果直接延伸,让空间显大!当然,将阳台扩入客厅的前提是阳台结构允许。


2、多运用通透的材质。若确实需要用隔断,最好选择通透感强的玻璃隔断,或半墙隔断。可以让视线无遮挡穿过,让空间视觉更大更宽敞。


3、多选择开放式的布局。如客餐厅一体式设计,也就是LDK布局:
将客厅、餐厅、厨房之间的墙体都打通,让三个空间处于同一个开放式的空间里,这样的布局可以让空间更通透敞亮。



120㎡左右的房子,宽敞的空间面积要让家居功能更齐全才行。玄关是家居生活空间不可或缺的部分,即使是120+㎡的房子,很多也没有玄关。所以:
① “无中生有”造玄关。森林海小区的这套房子里,入户就没有玄关,设计师打破常规,利用双面柜体作隔断,独立出玄关空间。


若进门处空间宽敞,也可以直接正对入户门处打造玄关柜,做隔断使用,实现玄关功能的同时还能遮挡隐私。


②借用餐边柜实现玄关功能。这种方式比较适合进门就是客餐厅的户型,如下图,利用餐边柜解决玄关收纳功能。

随着生活水平提高,大伙的饮食也更多元化,单独一个中厨很难满足需求,因此,西厨的便利性和重要性就凸显出来啦!如何实现?
①结合餐厅。就近原则,餐厅是最适合的西厨空间。

若空间面积有限,可直接增加一个靠墙的岛台做西厨区,日常洗杯子水果都方便。

或者利用餐边柜增加上下水,打造成简单的水吧区。

②利用阳台
若厨房与阳台相连,可以利用阳台空间做西厨区,如《秋酿》这个案例。

不管是打工人还是当老板的亦或是自由职业者,都有在家工作的可能和需求,所以,一个可以办公的书房还是有必要滴~三种方式:
①独立书房。前提是有多余的一个房间。

②多功能书房。就是兼顾客房、健身房等功能的多功能房间,若增加客房功能,建议选择榻榻米或墨菲床,前一个不占用太多空间,后一个可直接隐藏。

墨菲床▽


此外,也可以和衣帽间结合。

③开放式书房
120㎡的房子,不乏很多横厅户型,所以,想要实现开放式书房很简单,直接在客厅一角分一块区域出来即可。


或者直接利用客厅的柜体增加书桌就是办公区。

客厅与阳台之间加一张吧台隔断,既是休闲区又能当办公区使用。

再或者沙发后摆放一张书桌,实用度也很高。

人间理想衣帽间,120㎡的房子怎么也要整一个:
①独立衣帽间。与独立书房一样,前提是有多余空间。

②与其他空间共用。前面说到与书房共用的衣帽间,此外,也可以把衣帽间放在卧室。

120+㎡的房子,如果家居动线设计不合理,那么就会造成生活上的不便,在家活动的时候会走很多冤枉路。

所以,咱们也要注意家居动线的设计。下面分享两种优秀的家居动线:
1、多动线设计。如下这个进入卫生间的两条动线设计:

以及这个进入餐厨的两条动线设计:

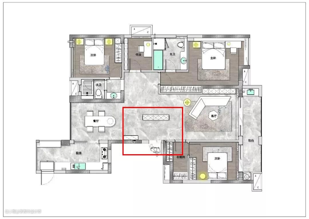
更有进入书房三条动线设计:

2、洄游动线设计。环形的走道连接。这个案例就是一个洄游动线,实现不同空间之间的贯通,让行动更便捷高效。

入住的时间越长,东西会越来越多,收纳空间就会越住越紧张。建议大家分区做收纳,让每个空间都有自己相应的收纳区,更系统且有条理。可参考案例▽

具体怎么做呢?建议:
①多打点柜子,玄关柜、餐边柜、电视柜、阳台柜、橱柜、衣柜、镜柜,都不能少。
②少做开放式柜体,开放式柜体容易落灰,打扫麻烦。
③收纳物品不同,柜体内部的设计也要有所区别。

最后来一个小预告,本周六将有一套120+㎡的新作上线,大家敬请期待哦▼


(部分图片来源于网络,如果侵权,请联系删除)