96㎡现代轻奢,淡蓝色的优雅,精致艺术的家
华浔品味装饰全屋翻新
2020-12-13
在这套96平米的房子中,整体装修以现代轻奢的高级空间感为主,通过在空间内加入大量淡蓝色的设计元素,结合艺术感满满的摆饰品,也让空间显得更加优雅文艺而精致。
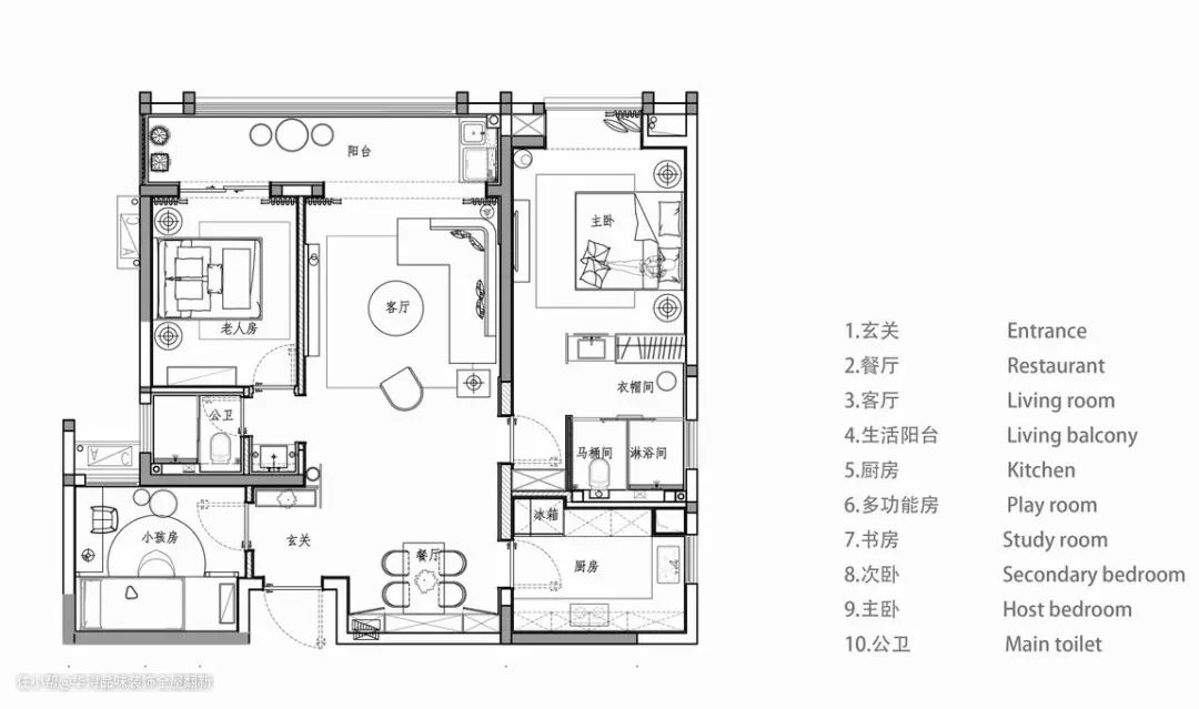
平面布置图

玄关

▲玄关设置了一个端景台,金属架与蓝色抽屉门板上的蓝色装饰,端景台上的雕塑,抽象的宝石装饰画,都让进门空间显得更加华丽优雅而高级艺术。

客厅


▲客厅空间的色调比较文雅轻松,在背景墙上加入tiniffy蓝色调的装饰,在淡雅的家居软装布置下,让空间显得格外的浪漫优雅。

▲沙发墙两侧是淡蓝色的护墙板,中间是波纹板,波纹板上挂一幅圆形的渐变蓝色装饰,布置优雅的皮沙发,也让空间显得更加神秘优雅而高级。

▲电视墙以大理石的背景墙,香槟色的电视柜上摆着白色的雕塑摆件,也提升了客厅空间的艺术优雅气质。


▲优雅弧形造型的米白色皮沙发,搭配一个水晶般的茶几布置,茶几上的花瓶与摆饰品,也让空间显得更加高级华丽而又艺术感。



▲米白色皮沙发,搭配上艺术感满满的边几与台灯布置,整个空间的软装细节也充满优雅与华丽的浪漫气质。
餐厅

▲餐厅背景墙延续了客厅的淡蓝色,布置上优雅造型的餐桌与皮餐椅,靠放餐桌墙面装上多层开放的展示架,布置花瓶与展示品,也让空间显得更加高级精致而档次。


▲餐桌上的花瓶与餐具布置,也在不经意间增加了用餐空间的华丽与温情气息,让空间显得更加高级档次。

▲餐边柜上的花瓶、玻璃瓶与装饰品,结合上方墙面的轻奢挂画,餐边柜的波纹板柜门,也增加了空间的现代与档次感。
厨房

▲厨房在雅白的墙面与台面基础,在橱柜与吊柜上也加入了淡蓝色的元素,让做饭的空间也显得更加优雅温情而浪漫高级。
卧室

▲卧室的天花加入暗藏的光源,并把四角做成圆弧的造型,让空间显得更加圆滑而优雅。米白色的皮艺床,淡蓝色的波纹板床头墙,整体搭配也让卧室显得干净优雅而浪漫简洁。


▲床头墙的蓝色放射图案挂画,还有两侧床头柜的台灯布置,也让空间显得更加舒适而精致高级。

▲在进入主人卫生间之前,是一个衣帽间空间,定制的衣柜,并在方门后做了一个开放的展示架,在不锈钢的包框装饰下,布置蓝色的为主的装饰书籍,也让空间显得更加浪漫情趣。
次卧

▲次卧以暖灰咖色的空间,硬包床头墙中间挂一组盘状的装饰,布置咖灰色的皮艺床,还有灰色的床单,优雅的床头柜布置,也让卧室显得简约浪漫而温馨舒适。

▲水景+金属质感结合的床头台灯,与床头墙的盘状装饰相呼应,提升了空间的华丽感。而简约朴素的床单与抱枕布置,则是让卧室空间趋于简约优雅与舒适为主。

▲床尾位置布置斗柜,上边摆着蓝色陶艺品,还有一幅色彩竖线条装饰画,让空间也更加有艺术的优雅气质。
儿童房

▲儿童房以高架床的设计,床下空间留空为孩子玩耍的空间,布置小帐篷,提供了一个童趣满满的活动玩耍位置。仔细看的话,你会发现上架床的扶手是一个飞机造型的设计,让空间显得更加童趣活泼。

▲蓝色皮艺的儿童房书桌,竖纹图案的墙布,还有书桌上方的战机图案的装饰画,还有书桌上的飞机模型,让空间充满童趣的飞机主题。