北欧风格是自然、社会、环境的有机的结合
佳园装饰全案体验馆
2020-12-28

户型:二居风格:其他面积:97㎡装修方式:全包装修工期:90天位置:深港国际造价:9万元
方案说明
绿色设计、环保设计、可持续发展设计的理念;它显示了对手工艺传统和天然材料的尊重与偏爱;它在形式上更为柔和与有机,因而富有浓厚的人情味;它的家居风格很大程度体现在家具的设计上。它注重功能,简化设计,线条简练,多用明快的中性色。
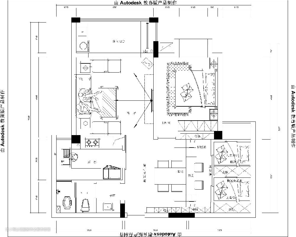
户型图


客厅


餐厅


厨房

卧室

卫生间

其他

佳园装饰全案体验馆
2020-12-28

户型:二居风格:其他面积:97㎡装修方式:全包装修工期:90天位置:深港国际造价:9万元
方案说明
绿色设计、环保设计、可持续发展设计的理念;它显示了对手工艺传统和天然材料的尊重与偏爱;它在形式上更为柔和与有机,因而富有浓厚的人情味;它的家居风格很大程度体现在家具的设计上。它注重功能,简化设计,线条简练,多用明快的中性色。
户型图


客厅


餐厅


厨房

卧室

卫生间

其他
