120㎡质感空间,黑白灰渲染,打造出至简至雅,超品质的家居环
壹洺装饰预算既决算
2020-12-29
空间以黑白灰渲染,做了大量的减法留白,提升空间包容性的同时,打造出至简至雅、具有超强品质感的家居环境!
— ❶ —
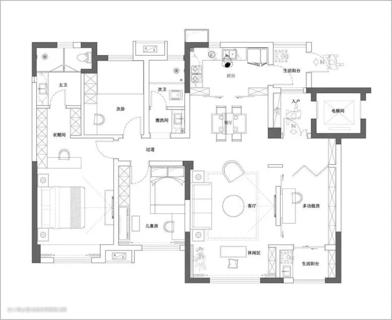
户型

原始的户型虽然层高有3米,但相对比较方正保守,缺乏趣味性,新的户型在改造上做足了功夫,既保持了原有空间的独立性,也通过移门、屏风等隔断设置增加了空间的灵动性和可变性,令空间更具有趣味性。
— ❷ —
玄关

入户处是极简的白色储物柜,几乎与墙体融为一体,放置的摆件增强了空间的对比,让这一处不再单调,同时设计师还在这里设置了三扇折叠门,通过不同尺度的开合,营造不同的视觉效果,还能充当屏风,将玄关和旁边的书房一起串联。
— ❸ —
客厅

整个客厅依然是黑白灰色调唱主角,这里也设置了很多巧妙的隔断,令空间有效串联的同时,也可以达到通透灵动的效果。

电视墙两边的折叠门设计非常巧妙,可以打开,也可以关闭,不同的形态制造了这个居住空间的多样化视觉效果。

隔断打开后,电视机墙就是一面非常完整的墙,坐在沙发上看电视,视线得以延展,大面积的白墙也不会对视线造成干扰,绝对不会影响到观影体验。

沙发背景墙是一面巨幅的砂岩挂画,对应其他留白的墙面,这里的质感和气势都要更强,无形中提升其主体地位。顶墙也是全部留白,像中国画一样展现了无穷的张力。空间因为彩色的缺席而变得纯粹,搭配无阻拦涌入的光线,令每一件物品都充满质感。
— ❹ —
餐厅

厨房采用玻璃隔断,虽然增加了原木色调,这里的设计呈现形式,依然极简,厨房两侧的墙体被拆除,改以酒柜式储物柜作为隔断,丰富空间的趣味性。

客餐厅为开放式设计,光线通过中轴线照射进来,空气最大化形成对流,不仅释放了更多的空间,而且也增强了独立空间的交流,可以呈现出更多丰富的生活画面。
— ❺ —
厨房

厨房延续了整个空间的特色,没有多余的装饰和摆设,通过两侧光线补充,打造一个简洁又明亮的空间。黑色的墙面砖显得方便好打理。
— ❻ —
卧室

卧室空间的砂岩挂画与客厅一脉相承,用木质地板而不是黑色地砖,可以弱化掉黑色调的冷硬感,增添空间的温馨和舒适度。一整面的定制衣柜,完全能满足空间的储物需求。
— ❼ —
书房

客厅与书房是通过一个灵活隔断相联系,在这里无论是工作还是生活,又或者是属于家的情感部分,通过一个灵动的隔断设置,都有了更加紧密的联系和升华。
— ❽ —
卫生间

卫生间通过一组玻璃隔断,实现了三分离,干湿区清晰的分割,让家变得更加整洁,也更加方便打扫,减轻了忙碌工作的业主的家务负担,生活的便利性大大提高。