乡下自建房这么设计,比住豪宅更舒服
善融室内外装修设计
2020-12-31
郊外大宅
House Design
优美的景色、舒适健康的环境,都是在大城市中很难享受到的也因此,在度假的时候选择去郊外享受清闲,就成为了城里人喜欢做的事情。
今天要分享的是几个乡下度假屋的设计,每一个都体现出自己独特的风格,甚至带出了一丝丝「禅意」,在这样的郊外大宅里住,比住在奢华豪宅更舒适。
01.
Sapire Residence

位于一座山上,凭依着山势而建 ▼

室内设计以木材、灰色混凝土为主,用简约极简的线条营造出天然的氛围,与其周围的自然环境想呼应,融入自然之中。
入口处的大门采用了铁框玻璃门,采光效果非常好,玄关处下沉式的阶梯营造出进入家门的仪式感,并带有 Wabi-Sabi 风格的矮凳与摆饰 ▼

可见到的条形玻璃窗将室外的阳光带入室内,光线在室内营造出另一层风景 ▼


客厅和厨房采用了常见的开放式空间布局,空间感进一步扩大 ▼

带有粗砺感的混凝土与表面光滑的大理石、木板材料形成对比,视觉上也有了更加层次分明的感受 ▼

屋子内四处可见大米那集的玻璃落地窗,景色与采光两者兼得。餐桌采用的家具也都是极具现代主义风格 ▼

再往外走便是车库,经过的书房空间用地毯营造出更加舒适的空间氛围 ▼


房子带有一个户外泳池,延续了一致的设计语言,四个躺椅排在一起,在这里能看到远处美丽的风光 ▼


泳池边上就是一个半户外的露台空间 ▼

楼梯处体现出了强烈的才会对比,混凝土与木材营造出来的天然氛围让人心静 ▼

混凝土楼梯上面铺上了木饰面板,层次分明,与整体空间感形成呼应,虚实结合;墙面上的等待结果与楼梯上的射灯都是独特的照明设计,让这里成为一个类似画廊的空间 ▼

主卧室还设置了一个壁炉,用圆润的家具创造尤为舒适和缓的休息空间 ▼

卧室同样采用了大面积的黑框透明玻璃窗,与房子的入口想呼应,在这里可以看到绝美的山景 ▼

一些小空间内的设计也同样充满一种线条的美感 ▼


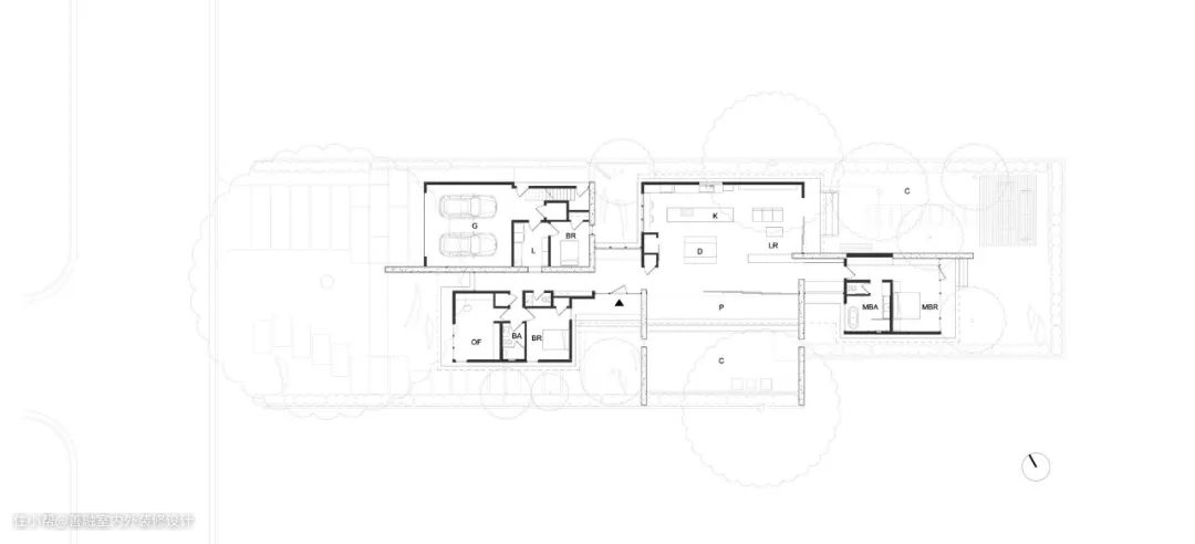
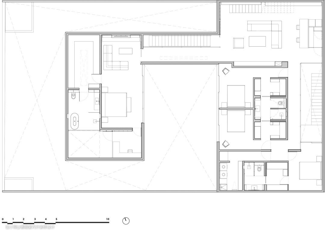
平面图
▼


02.
The Sanctuary House

这栋度假屋位于美国,同样采用了混凝土与木材作为主要的建造材料,特比的是,这栋房子的设计尤为注重人工造景 ▼

开放式的空间内部能看到房子联通了好几个不同的庭院,木天花板的西南条感非常浓烈,同时在当中设置了光源,众多个黑点降低了空间的枯燥感 ▼


开放式餐厅采用的家具也充满经典韵味,并且柜子、桌椅等都采用了黑白分明的配色 ▼

在这样的大宅中,光线是室内设计非常重要的组成部分 ▼

房子的吧台位于一扇大面积的落地窗前,与室外的庭院风景联通在一起 ▼

主卧室同样也联通了庭院,并以阶梯联通内外空间 ▼


这样的一个空间可以作为冥想室 ▼

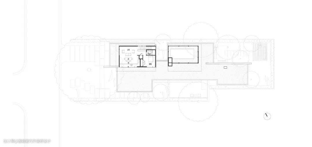
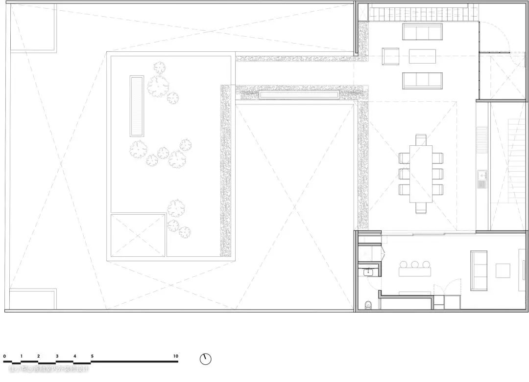
平面图
▼



03.
Casa en Avandaro

这栋位于墨西哥的住宅则是将「简朴」风格发挥到极致的项目。
将浅土颜色的泥砖与木材完美融合,营造出别具诗意的居住空间 ▼

建筑外立面就能感受到这种静谧的空间感 ▼

室内充满了一种原始的气息,泥砖与木材不加修饰的美感体现得很好,家具也同样如此 ▼


在走廊的尽头,能看到独特的艺术摆饰 ▼


主卧室的窗户则是设置了百叶窗,更好地过滤光线 ▼

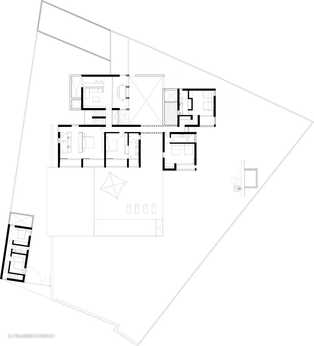
平面图
▼



04.
Casa Sierra Fría

同样位于墨西哥,同样也是用砖,但这栋房子不同的是色彩,房子的外立面采用的是纯粗的红砖材料。
大门的设计非常独特,采用了旋转门,一眼望去能够看到楼梯和中庭的设计 ▼

房子围绕着中庭的庭院景观而建,并用玻璃窗模糊内外空间的分隔 ▼

入口处的右方通过下沉式的阶梯可以来到一个独特的休息空间,柜子的设计很有意思 ▼

一边楼梯边上则是用搁架组成了一个具有储藏和展示作用的前面,楼梯的设计也是相当简 ▼

楼上的走廊与楼梯空间之间用玻璃窗相隔 ▼

书房定制的书桌与墙面搁架都有着最为简单的设计语言,视觉中心非常明确,并且具有极简主义带来的沉静感 ▼

卫生间则是能看到大理石材料,灰色的大理石与绿色的植物形成一种补充和对比,同时还设置了玻璃天窗 ▼

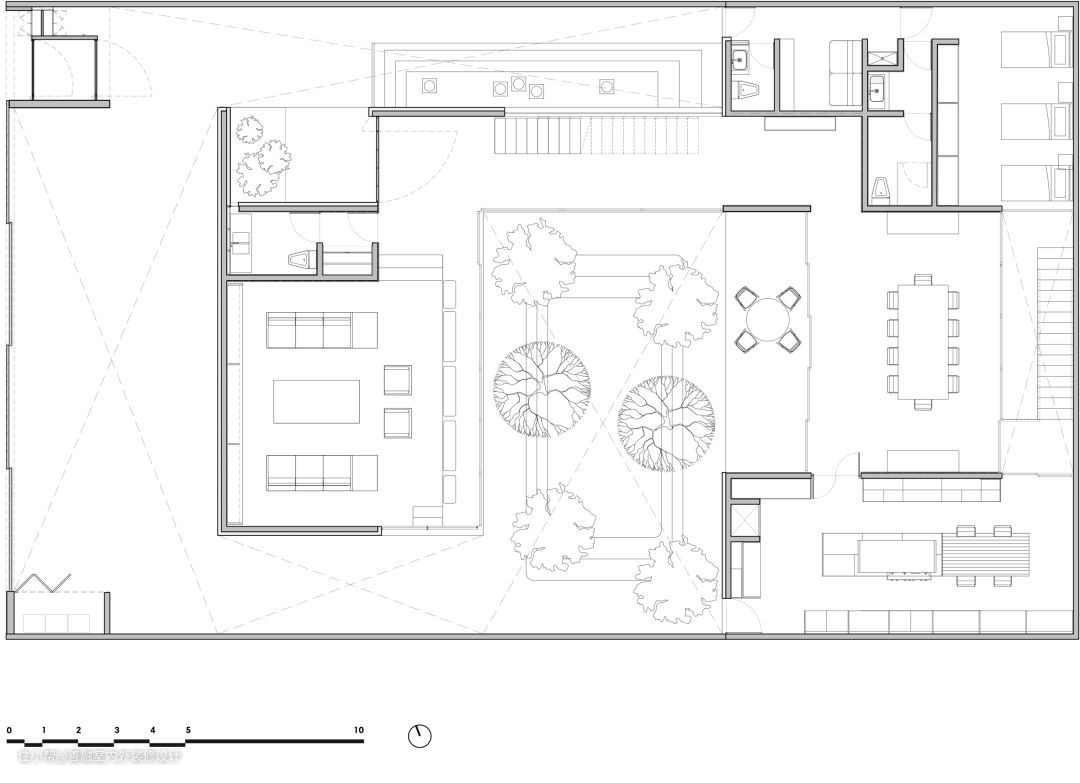
平面图
▼



剖面图 ▼


05.
Miner Road

第一眼看这栋住宅会以为这是一座废弃的工厂。斑驳的钢板,是这座别墅的外墙。
但往里走去,就会发现里面有截然不同的世界

客厅以大白墙为背景、木条拼接为主基调的设计,通透的落地窗既带来良好的光线。家具和各式各样的软装也非常具有度假气息 ▼


黑色的铁框架玻璃窗将室内外的空间联系在了一起,户外茂密的树林景观让人不知不觉就能静下来 ▼


阳台摆放了一个独特的躺椅 ▼

厨房虽然同样有着看来老旧的材料,但却更加凸显出整栋房子特别的气息,具有一种独特的工业美感

在光线充足的时候,房屋内的明亮与房子的外观形成巨大对比 ▼


卧室则采用了同样的设计语言,简洁而充满静谧感 ▼

另一处休息室则是有着更加「破旧」的感觉,舒适的家具与周围看似废弃的环境氛围形成了冲突,带有一种戏剧色彩 ▼


平面图
▼

