118㎡三房两厅组合电视柜
致尚唯玺专注旧改翻新
2021-01-04

户型:三居风格:现代简约面积:118㎡装修方式:半包装修工期:90天位置:碧海蓝天造价:6万元
方案说明
户型建筑面积118㎡,标准的三房两厅两卫的户型,原结构比较方正,后期稍作调整就满足了业主的需求,设计师在软装搭配上下了功夫,实现了业主的居住需求。整体的色彩搭配与材料材质的选择完美的结合在一起。
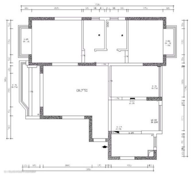
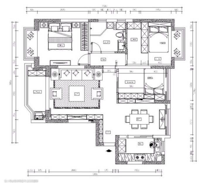
户型图

原始户型

平面布置图
玄关

进门左手边正好做一组鞋柜,留80公分长度,30公分宽的镂空的位置,方便以后回家进门放包包钥匙之类的出门必需品。下面留个空隙放拖鞋。

顶部设计的加长出风口,顶部做造型顶弱化梁的位置,这样显得过道有点狭长。通过门厅正对的墙面装饰一幅加长的装饰画做端景。拉长顶地的空间感,中间位置用玻璃隔断做装饰弱化一些狭长的过道。同时不影响收纳空间,更方便后期打扫卫生。
客厅

组合柜的形式做电视背景,采取高分子亮面白色门板与胡桃木色的隔断相呼应,与大理石纹路的电视柜组合在一起,显得更有品质。

客厅顶部采取的是无主灯设计,石膏板平吊顶下挂8公分,方便后期安装射灯。凹槽设计了灯带做辅助光源。

空调做加长风口,在客厅过道的正中央,更美观! 个性化的装饰钟让整个墙面更有味道

沙发背景选择的是棕色木纹护墙板镶金属线条,上方是装了射灯,后期沙发进来整体效果会更好哦。

电视柜超高门搭配了胡桃木色的隔断,收藏一些装饰用品,整体更有生机!

整体现代感很强,高分子加高门板,顶面无主灯设计,阳台没有装移门整体空间更大。
餐厅


常规四人桌椅,餐边柜借用了书房的十公分位置与原有墙体齐平,保留了原餐厅的宽度与深度。吊顶与客厅呼应下挂8公分平吊顶,中间用射灯与灯带做光源。


顶面设计无主灯造型吊顶,餐边柜与电视柜呼应,做了隔断酒柜收纳。全屋超高门设计,厨房门口设计了直饮机。生活用水更方便

厨房

厨房采取的是吊轨移门设计,大地砖平铺进厨房,整体空间视觉感极强。

水槽采取的是台下盆工艺,后期使用起来不积水不藏垢。厨房选用了很多小零件增加收纳整理空间,充分利用厨房,增大使用率。下水安装了垃圾处理器。生活更有品质!

厨房顶面集成吊顶采用的是300*600规格的铝扣板,光源来自于灯带。与客餐厅呼应,更具有现代感。 转角橱柜采取的是联动门设计,更方便转角柜的利用。

厨房整体配色与客餐厅组合柜一起,选用的是高分子白色亮光板,干净整洁。
卧室

主卧吊顶与客餐厅一样,无主灯设计,床头射灯辅助光源。由于空间有限,摆放1米8的床之后两边距离小,所以采用的是抽拉式床头柜,平时可以把它隐藏在衣柜里。

床头背景选用的是棕色木纹色护墙板结合抽象化硬包做的造型。床头射灯做为辅助光源

衣柜柜门选用的是棕色木纹双饰面超高门板,镶嵌黑色金属大拉手,整体拉伸层高。

门头上方放的是空调出回风口,把他包进吊顶里更美观时尚。

次卧设计了地台的形式,更偏向于日式风,地台下面安装的地台感应灯,夜里起来再也不怕黑拉!

床头设计了收纳柜,中间镂空代替了床头柜功能。地台上直接平铺席梦思床垫,紧贴着飘窗,休闲安寝两不误!


次卧小型衣帽间,满足了女主的小小要求。
卫生间

卫生间是两间打通做一间,空间非常宽敞。中间管道围砌起来做为干湿分离的界限。智能马桶上方拉长了洗手台的台面,大大增加了洗手间的收纳,做了转角台面。

阳台


