35㎡温馨单身公寓,简单大方,单间装得比大房子还好看!
济南金尚金品装饰公司
2021-01-07
导语:今天要分享的是一套35㎡小户型公寓装修案例,整体以北欧风格为主基调。

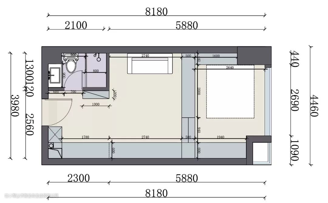
▲平面户型图

不仅有超实用的多功能卧室,还有巨多的收纳空间;而且看上去比80㎡还要通透敞亮,整体看起来美观又大气。



入户没有独立的玄关,进门右手边就是厨房。
在进门的左手边定制矮鞋柜,白色矮鞋柜同时兼端景柜,容量不算大,但可以收纳应季的鞋子,鞋柜台面上放置精致的摆设。

鞋柜旁边的长虹玻璃门内就是卫生间,卫生间面积虽小,但也做了干湿分区。

定制的白色洗手台,下面嵌入洗衣机,上面选择墨绿色瓷砖+隐藏灯带,美观与实用兼顾。

洗漱区采用侧边隐藏式下水台盆,下方放置了洗衣机与脏衣篓,合理利用每一寸空间。


进门右手边就是开放式厨房,采用L字型的橱柜布局,把冰箱也嵌入到柜体,充分利用了空间。

橱柜右侧作为厨房电器使用区,以及回到家随手放菜区域。


客厅采用浅色墙面打底,让空间更简洁明亮,搭配原木色家具,增添了几许清新与自然。

没有多余的装饰,精致小茶几搭配布艺沙发,营造温馨怡人的氛围。

沙发墙选择糖果色粉色设计,十分小清新。
折叠沙发展开就变沙发床,增加睡眠空间,一室变两室,亲戚朋友偶尔来小住也不怕。


电视墙则是定制的收纳柜,连着橱柜及衣柜,提供了超强的收纳功能,美观实用兼具。


客厅与卧室间通过木质小吧台作为分隔,这里既作为工作区,又是家里的就餐区,一举多得。




吧台的另一侧就是卧室,蓝白色床品与整个空间色系完美融合,看似沉静,实则暗藏玄机。

多功能睡眠区采用地台设计,上方一张可折叠的超舒适大床,床垫是可翻折的。
台阶也做了收纳抽屉,整个睡眠区都是收纳空间。

床下藏了一张升降桌,将可翻折床垫收起来靠墙立放,将榻榻米升降桌抬高,卧室瞬间变休闲区。

床尾是由客厅延伸而来的置顶大衣柜,满墙的收纳柜,完全不用担心收纳问题。