150㎡现代简约风,打造黑白灰高档美!
云南俊雅装饰
2021-01-07
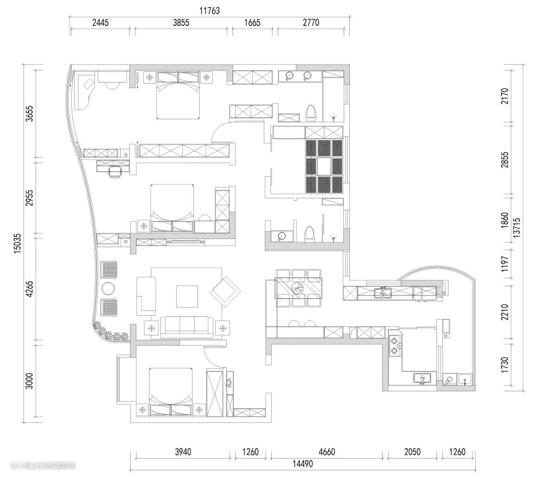
在这一套150平的房子中,主人喜欢简洁大方的空间,同时希望以高级黑白灰的色调为主调,围绕这两个诉求,设计师以胆大心细的高级黑白灰配置,营造出一种另类高档的美感。


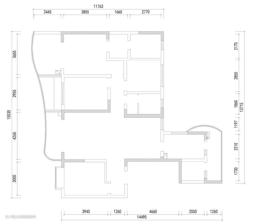
平面户型图

玄关装了一个L形的定制鞋柜,正对大门的矮柜作为端景台,摆上金属架展示,墙面一幅彩色抽象画,黑白配的空间色调,显得端庄而成熟气质。

灰白配的空间加入红色的软装,显得更加华丽时尚。


电视墙整体一定制柜的设计,底部留空出展示格,布置上小绿植,文艺清新而精致。


灰色沙发+红色抱枕、单人沙发椅,灰红配的窗帘布置,整个空间简约中带着一种优雅的时尚。

餐厅布置一套黑色的餐桌椅,餐椅是带有灰色皮坐垫的设计,整体坐感更加简洁舒适。侧边的定制餐边柜,黑白配的色调,也是显得格外的时尚端庄。

餐桌上一盏条形的吊灯,让餐桌上的照明均匀舒适。

黑色的房门,与整体空间的色调搭配一致。

床尾这个定制衣柜,整体简洁的柜体+黑色的简约拉手,实用简约而时尚。

进入主卫之前,有一个小过道,刚好装上定制衣柜,为主人提供了更加丰富实用的储物功能。

主卫里面黑白调的优雅气氛,在门外就能感受到了。

次卧深灰色的木地板,搭配黑白配的定制书桌、衣柜+榻榻米床,简洁优雅而高档。

这个深色的书桌背景+白色书桌吊柜,整体空间黑白分明,让主人在这个空间办公的时候,也能轻松舒适。

厨房以白色橱柜+黑色墙面操作台,整体空间黑白分明,透露出主人的独特气质。

客卫把洗手盆设在过道区域,深灰色的墙面,搭配黑白配的洗手盆柜组合,还有一面圆形的挂镜,显得华丽而精致。

主卫是双人位的洗手盆,在两面圆镜中间,布置一盆红色的干花,让空间显得时尚而优雅。


淋浴区里面的壁龛,卫浴拖鞋、卫浴用品都有安身之处。

阳台与室内打通,布置一张小梳妆台,白色文化砖墙面,结合一幅抽象的油画,整体显得简雅而华丽实用。