灰绿拼色时尚现代风,灰蓝色智能开放式厨房,超舒适大三居~
天津Banana家装
2021-01-22
= 基本信息 =
房屋地址:津南区 倚涛庭院
装修类型:毛坯新房首装
建筑面积:143㎡ 三室两厅一厨两卫
实际完成费用:14.1万元(含厨柜、地板升级)
设计:Banana家装 主案设计师 –丁英华
施工:Banana家装 金标施工 – 左工
工程管家:Banana家装 资深监理 – 郑工
装修亮点:时尚现代风格、灰绿拼色墙面、灰蓝色开放式厨房、全屋通铺实木地板
▲ 倚涛庭院 客户实拍
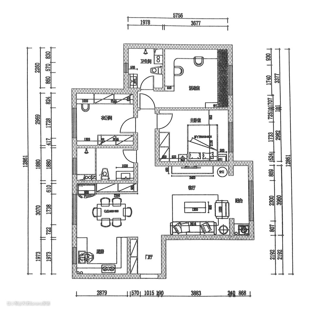
= 平面户型 =

▲ 平面布置图
= 设计综述 =
本套房子是业主庞先生和爱人的幸福新家,还有三只可爱小猫的陪伴。
装修诉求总体风格要求简洁大方,希望选择省心、靠谱的整包装修模式。与咱们Banana家装提供的整包装修服务相符。
整体色调为灰绿拼色设计,由主案设计师丁老师负责,结合进口环保建材,以及德系金标施工,打造出时尚现代风格。
由于养猫的需求,设置了一间兼顾工作、娱乐活动,以及小猫活动的综合空间。合理化安排了空间使用。
我们一起来看看完装效果吧~
= 完装效果 =
- 厨房 -
▼

▲ 开放式厨房(灯带 电器柜)
橱柜:欧标E0级环保板材柜体(恒茂经典)
厨房整体选用灰蓝色肤感膜柜体,搭配黑色把手,以及白色墙面瓷砖。完美复刻现代感厨房的简洁与利落。

追求更好的生活品质,设计了左侧的电器柜,用于放置烤箱。烤箱右侧留出台面,可以摆放做好的食物,作为一个出菜的台面。
在吊柜的下方,嵌入了柜体灯,用于补充光源,满足日常使用需求。

橱柜整体为大U型设计,动线流畅,右侧橱柜预留了洗碗机的位置。打造智能开放式厨房。(瓷砖 by 依诺设计 iNOL)

厨房外部视角,左侧为开放式厨房,与餐厅相连。
- 主卧 -
▼

▲ 墙面 配置轻奢壁灯
乳胶漆:德国进口都芳漆(欧盟蓝天使认证环保)
多乐士 重色多彩乳胶漆

▲ 暖灰色整体色调
主卧床头背景墙采用时尚墨绿色,搭配黄铜壁灯,增加一些轻奢元素。
拼接灰色墙面,整体色彩柔和,通铺12mm厚实脚感的实木地板,营造舒适的休息空间。

▲ 卧室视角:衣柜位、实木复合烤漆门
(部分踢脚线未安装固定)

▲ 简约风 黑色锁具

▲地板:北美枫情 多层实木地板 细节图
(全屋铺装 客户个性化升级选购)
- 独立卫生间 -
▼

▲ 全套卫浴:华艺 Huayi
(部分产品选购升级)
卫浴瓷砖:博德精工


卫生间整体为灰色调,搭配棕色轻奢浴室柜,浴室柜具有镜灯和除雾的功能。悬空设计,方便日常清洁。

淋浴区采用了壁龛设计,便于摆放常用的物品。

▲ 花洒:华艺 Huayi

卫生间原始户型只有一个地漏,位于基石以内。于是在基石外预留了一个地漏,避免卫生间跑水的情况发生。
- 客餐厅 -
▼

▲ 加拿大 北美枫情 实木地板
沙发背景墙:多乐士 重色多彩乳胶漆

客厅墙面为灰绿拼色设计,搭配主灯+射灯的组合,补充光源,以及营造出时尚现代风格和氛围。
客厅采光好,阳光照进来显得墙面颜色更加柔和。


▲ 客厅整体视角 地板:加拿大 北美枫情-北国之春(实木)
客厅地板选用12mm厚度的北美枫情【实木】地板,提升品质感。
浅色原木纹理,与灰绿墙面搭配出自然舒适的感觉。

▲ 客厅看向餐厅视角

餐厅与客厅相连,通铺地板。墙面颜色与电视背景墙颜色保持一致。
空间上有联动感和纵深感,视野和采光也非常好。
- 活动室 -
▼

▲ 活动室:本屋用于工作、玩游戏 和 养猫
地板:北美枫情实木
乳胶漆:德国进口都芳漆
这个房间主要用于工作和休闲活动使用,以及家里小猫的活动空间。色调搭配简洁,通铺实木地板。
之后会安装定制的榻榻米,所以目前还有部分踢脚线未安装。

▲ 地板:北美枫情实木(全屋通铺)

▲ 木门:白色实木复合烤漆
(逸品木门)
- 活动室卫生间 -
▼

▲ 卫浴:浴室柜 惠达HUIDA
瓷砖:博德精工(套餐标配)

卫生间主要作为养猫的设备间,铺贴岩石灰色瓷砖,耐脏耐磨。
搭配了套餐内全套惠达轻奢浴室柜,款式现代,储物空间充足。

▲ 卫生间向外视角 实木复合烤漆门
以上就是本套143㎡ 时尚现代风,津南区 倚涛庭院 新房装修实拍案例的全部内容。更多实拍完装案例,敬请期待。
= 客户好评 =

▲ 客户好评

▲ 客户送来的锦旗