85㎡浪漫+轻奢厨房,二手房完成9.5万
天津Banana家装
2021-01-29
= 基本信息 =
房屋地址:河东区 第博雅园
装修类型:二手房、重新装修
建筑面积:85.04㎡ 两室一厅一厨一卫
实际完成费用:9.57万元(含全屋拆砸修复、全屋水电改造)
装修亮点:现代时尚北欧风、棕金色质感厨房、森林感卫生间
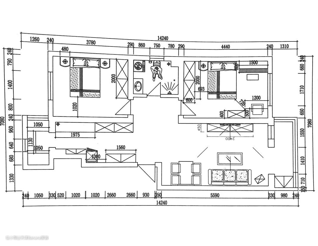
= 平面户型 =

▲户型总览
= 设计综述 =
屋主是一对年轻小夫妻想要给旧房重新装修,在大众点评了解到我们,到店咨询后和设计师沟通很顺利,于是选择相信Banana家装。
由于平时也要工作,业主反馈给我们,在施工过程中项目经理和监理非常认真负责,对工程进度和工程质量的把控都很到位。让业主非常省心。
整体的装修风格选择了简洁、清新的时尚北欧风,既满足了空间的流畅感、简洁感,同时点缀一些修饰作用的造型灯等小细节,添加了时尚的元素。
厨房是这间房子的最大亮点,棕金色质感的橱柜,营造出了轻奢现代的厨房氛围。提升了整个家庭的品质感。
接下来我们就看一下完装的实拍效果图吧~
- 厨房 -
▼

▲橱柜:恒茂经典(E0级环保板材柜体 欧标环保等级)
地面&墙面瓷砖:博德精工
棕色橱柜搭配金色把手,给厨房的整体空间添色不少。
柜体板四周凸起的线条,给橱柜增添了恰到好处的设计感和品质感。

我们使用的E0级环保橱柜,搭配白色石英石面板,厨房干净整洁,又便于清理台面。

厨房分为两个区域,进入厨房的左右两侧排列橱柜,作为储物的功能。
橱柜内嵌入了烤箱,台面上也能摆放一些日常使用的厨电,不浪费任何一丝空间。



▲水槽(套餐自带)
进入阳台的部分,为主要的烹饪区。虽然空间不大,但是仍然合理设计了U型橱柜。
从右到左依次为洗菜区→备菜区→料理区。动线合理,方便使用。

▲厨房门:超窄边框铝镁合金长虹玻璃门
配合现代轻奢视觉效果

▲瓷砖细节图
墙面&地面瓷砖:博德精工
厨房的地面瓷砖与客厅保持一致,视觉上有一种整体的空间感,不会显得繁复、混乱。
墙面瓷砖同样选择了白色水波纹,与地面瓷砖和白色橱柜面板都保持了和谐的色调。
不会抢夺橱柜的视线,使得厨房有亮点和搭配。
- 客餐厅 -
▼

▲瓷砖:依诺磁砖 踢脚线:英仑地板
乳胶漆:德国进口都芳漆(欧盟蓝天使认证环保)
蓝色是北欧风的经典元素了,电视背景墙和沙发背景墙以浅蓝色为主色调,融入白色的色调,柔和的色彩造就出一股清新不做作的氛围。

蓝色属于安抚色,使用蓝色装饰墙面,令人安静且放松、舒适感强,整个家清新自然,令人沉醉其中。

沙发背景墙用挂画作为装饰,结合白色射灯,保持着和谐的色调,也让客厅的装修效果不再单调,更为时尚多变。
搭配时下流行的墨绿色布艺沙发,风格和氛围感十足。

餐厅部分安装了三盏造型吊灯,作为空间的划分。餐桌拍摄时还未到位,不过相信摆放上餐桌后,效果一定非常棒!

▲厨房看向客厅视角

▲瓷砖细节图
瓷砖:依诺磁砖
客厅的地面瓷砖,采用白色水波纹瓷砖,与墙面的蓝色搭配和谐。营造出了清新浪漫的客厅氛围。选择浅色系瓷砖,使得客厅采光更好更明亮。
白色的踢脚线,使客厅更有品质感。也不会过于沉闷。
- 玄关 -
▼

玄关进门的视角,两幅小挂画增添了生活的气息和品质感,大家也可以get这个小技巧~

玄关处留出了足够的活动空间,客餐厅连接厨房的动线比较方便。
之后放置一个鞋柜就可以方便使用了,记得添置换鞋凳,坐下轻松换鞋,再也不用弯腰啦~
- 客厅阳台 -
▼



▲阳台地面&墙面瓷砖细节
客厅阳台的墙面瓷砖采用的暖黄色,给人一种非常温暖的感觉。
阳台的采光非常好,可以摆放小茶几和椅子,设计出一个放松的休闲区,喝个下午茶美美哒~
- 主卧 -
▼

▲地板:英仑地板(宜家IKEA样板间同款) 踢脚线:英仑地板
乳胶漆:德国进口都芳漆(欧盟蓝天使认证环保)

将主卧的墙面颜色设计为灰色和淡粉色的拼接,给卧室焕然一新的感觉。
搭配套餐内人气top1的人字拼地板,让卧室也增添一些时尚感,不再单调。

▲地板细节图

▲主卧看向次卧视角


▲木门:逸品木门
卧室门选择了搭配度很高的白色木门,但是款式却并不简单。
扣线门相对更加的有质感,搭配黑色框线及品质感的黑色把手,木门的设计感更为突显。
卧室的整体搭配也十分有特点和设计感。

▲木门&地板细节图
- 次卧 -
▼

▲地板:英仑地板(宜家IKEA样板间同款)
踢脚线:英仑地板
乳胶漆:德国进口都芳漆(欧盟蓝天使认证环保)

▲卧室另一视角
次卧选择了蓝色墙面,搭配白色吊灯,北欧风十足。地板与主卧相同,通铺时尚人字拼地板。

▲地板细节图


▲木门:逸品木门
次卧的木门和主卧一样选用了白色扣线门,搭配黑色框线和黑色把手。
与整体的风格保持一致。

▲木门&地板细节图
- 卫生间 -
▼


▲全套卫浴:惠达卫浴
墙面&地面瓷砖:萨米特
浴室柜选用了棕色柜体搭配金色把手,配上镜柜。卫生间十分有格调,同时储物空间充足,方便使用。


墙面瓷砖选用棕色系,表面是凹凸不平的质感,中间用花片过度,增加变化感。
与棕色浴室柜搭配,打造出具有森林感的卫生间。


▲恒温花洒(套餐升级)
建议大家选择恒温花洒,出水热度稳定,可以安心放松的洗澡~

▲卫生间门:磨砂长虹玻璃门
卫生间的门选择了磨砂质感的长虹玻璃门,既能保证卫生间的私密性,同时又有通透的质感。
与卫生间的整体风格搭配和谐。
以上就是本套85㎡蓝色系时尚北欧风,完装实拍案例的全部内容。