访问APP

88㎡两室改一室,坚持极简主义,骨子里透着高级感

壹洺装饰预算既决算

2021-03-03

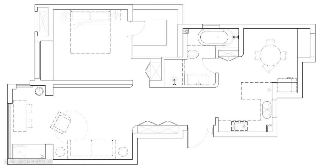
今天给大家分享的是一套88㎡一室装修案例,原户型是标准的两室一厅结构,户型结构不能满足屋主生活习惯,希望改造后可以契合生活,设计师减少视觉负担做开始,选用大面积低饱和度的奶茶色系,打造了这个比较有烟火气,朴素又简洁的家。



房屋信息

户型:一室

面积:88㎡





客厅打通阳台后空间融为一体,中间做了圆弧拱形门设计,舍弃电视增加空间开阔感,阳台位置改造成书房,实木双人书桌打造成看书、办公的小天地。



设计师利用大面积低饱和度的奶茶色,搭配上微水泥艺术漆的自然质感,打造治愈系空间。



屋主对灯光比较敏感,不喜欢太刺眼的光线,所以选择的灯光氛围也是柔和舒适的,暖光源可以消除距离感和紧绷感,卸下疲乏,放松身心。



沙发搭配轻盈的藤椅、复古款原木椅子,在用树墩做茶几,搭配天然的编织地毯,光影洒入室内、微风浮动纱帘,原木质感会呼吸的家。



阳台实木柜配上金色把手,朴实和精致巧妙融合,用来收纳各类清洁用品,把杂乱藏于无形,让生活更轻松自在。



餐厨一体式设计,配上温厚的木质橱柜,烟火之地也能清新温和。两面窗户都采用拱形设计,更添放松的意蕴。



餐厅花砖从地面延伸至墙面,不仅颜值高还耐用,实木圆桌,除了吃饭,这里也是喝下午茶、休息聊天的舒适角落。



厨房吊柜与顶面色系相同,减少空间压抑感,吊柜采用按压式设计,让视觉更为统一。



原L形的台面变身U形,留出足够空间切菜、洗菜、烹炒,咖啡壶等小家电也有了容身之所。



卧室取消传统的背景墙、床头柜,将视线往下拉伸,空间更为开阔大气,也少了刻意呆板。



树墩做边几,随意摆放的各类书籍杂志,在睡前远离电子产品,更好的专注精神世界。

衣帽间



衣帽间的门进行加高处理。极致简约的款式和墙面融为一体,视觉更统一。



衣帽间面积不大,考虑空间利用问题,设计师推荐使用大面积挂衣架,搭配收纳盒等配件,打造实用性更高的衣帽间。



卫生间门采用拱门设计,墙、地、顶统一色调延伸视觉,壁挂马桶减少空间占用,方便打扫,极简洗手台让视觉更清爽大气。



利用原始结构角落嵌入式浴缸设计,打扫卫生更方便,泡澡时也有了仪式感。