35㎡超小户型逆天改造,时尚美观五脏俱全!
今朝装饰东四环旗舰店
2021-03-04
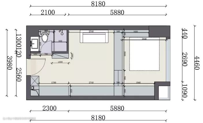
套内面积仅有35㎡,好在房型方方正正。入户左手边是迷你的卫生间, 右手边是简单的开放式厨房。较宽敞的空间是客厅,没有独立卧室。30平超强收纳空间 打造出了一个家应有的全部功能区。 各种可“变身”的家具实现了区域自由切换, 一物多用 增强了空间的实用性!

设计需求:
1. 主要居住一人,父母朋友偶尔来居住。
2. 足够多的收纳空间。
3. 考虑空间私密性的同时尽量开阔。

玄关
入户作了上下半墙分色的设计 并添加了三公分细线条 空间看起来更有层次 搭配白色鞋柜以及给人通透感的卫生间长虹玻璃铁艺门。

半通透的长虹玻璃门,让小户型显得更为开阔,同时增加卫生间采光。

从玄关看卫生间洗手台区域

该鞋柜里面搁板可调节有配套搁板可增加四层搁板放鞋位比较合适,性价比也非常高。

走廊
入户全景图 一眼望去,这个客厅真正说明了 什么叫“麻雀虽小,五脏俱全。” 我们一点一点来研究。

客厅
狭小的户型,采光的重要性更为凸显。除了有一扇朝阳的大窗户, 选用干净的浅色墙打底会让空间更明快, 搭配原木色则增添了几许清新与自然。

吧台作为就餐区与工作区域的同时隔分客厅与睡眠区增加了彼此的私密性 睡眠区更有围合感。

沙发背景墙颜色搭配清新宜人,兼具动态艺术感。这种乳胶漆分色墙操作难度大, 硬生生把刷漆师傅逼迫成了墙绘师。


宜家的客厅茶几 兼小餐桌 上面盖板打开,下方可收纳的同时镂空的设计也让物体看起来更为轻盈,对于小户型空间“不添堵”。


沙发可以展开变成1.4*2m的沙发床,增加睡眠空间 一室变两室,增加睡眠空间, 亲戚朋友偶尔来小住也不怕啦!


沙发左侧与吧台相邻的位置做了开放储物格方便平时收纳与拿取,兼当沙发旁边边柜的作用。

沙发右侧是卫生间外墙 上面设置了长条卫生间采窗,即使白天使用也不需要人工光 下半墙与沙发背墙墙颜色呼应,延续上半墙则留白,给人以透气感!

这个角度被漆工师傅吐槽像派出所的墙 上面还有铁窗完美呼应。


长虹玻璃增加卫生间的采光。

收纳空间全景图,柜体包含开放式厨房、电视墙与衣帽区,满足功能的同时又具备一定的装饰性。

衣帽区与电视墙区域开放式格子作为屋主迷你书bar 。

电视墙上方作为空调回风口柜门作了局部镂空 电视墙下方镂空区域为插线与机顶盒位 保证信号接收的同时又避免了线路凌乱。

为了避免从客厅区域进入睡眠区 踏步旁边的拥堵感 踏步旁边的柜体设置为储物与装饰格,也避免了整面柜体设计上的呆板以及作为衣帽区和电视墙区域的过渡。


比较喜欢的一张小景 这个家中充满各式各样的摆件, 装饰画、烛台、绿植…… 用浓浓的北欧风细节去画龙点睛, 让每一处角落都不乏美感。

原始的沙发没有配抱枕,除了单买的人脸抱枕外,其余均为虫工空间根据整体空间色调定制的面料抱枕,墙与抱枕之前相互呼应 也让沙发跟墙体更加有关联。

餐厅
餐厅兼工作台 因为平时就是一个人吃饭, 一个简洁的吧台就足以实现全部功能。同时又担任了隔断与功能分区的角色, 左边是客厅,右边是卧室给空间增加了一定的私密性。

小而精致的多功能餐吧台。


吧台左侧为客厅区域,吧台右侧为多功能睡眠区,吧台与睡眠区承重墙内凹的位置,做了吧台的L型延伸,同时作为床头收纳柜的功能。

楼梯梯步作了抽屉收纳功能,同时避免上下踢绊,拉手设置为防撞皮拉手。

整个空间木色和白色为主,点缀黑色坐垫与金色质感的靠背 材质搭配上更有层次,增加了些许精致感。

原始挂圆形搁板架区域设计的是一个圆形的撞色,因为施工难度和刷色精细度的要求 取消了这块 同时右边墙体基本上以直线为主,同左边倒弧的白色色块区域没有呼应 为了丰富右边色彩构成以及呼应左边白色弧形色块,此处增加了该置物架,丰富了整面色构墙直与曲,二维与三维直接的碰撞。
卧室
吧台的另一侧就是卧室了, 蓝白色床品与整个空间色系完美融合, 看似沉静,实则暗藏玄机哦!

多功能睡眠区采用可折叠11.8m的超舒适大床,床垫是可翻折的,是不是感觉心机满满?其实我们的设计小心机可不止这一处,接下来敲黑板!

心机1:床头和床侧都做了收纳空间,吧台宽度60,下方放吧椅位置30公分足够 另外一半给到了睡眠区侧面储物用,床头有承重柱,把内凹区域拉平做了床头背板,同时床背区域也兼作收纳柜。衣物、床头读物、零食等,随拿随放~

心机2:台阶也做了收纳抽屉, 出于防撞考虑,选择了皮质拉手, 整个睡眠区都是收纳空间!

心机3: 最后是我们的压轴大Boss, 床下其实藏了一张升降桌!将可翻折床垫收起来靠墙立放, 将榻榻米升降桌抬高,卧室瞬间变休闲区!地台升高变成榻榻米,三五好友合坐在一起喝茶聊天冲壳子——悠闲的成都漫生活!

整面到顶2.4m高的衣柜搭配黑色隐形拉手 简洁大气同时又富有有层次 黑色拉手与吧台上面的线形灯相互呼应。

床品与墙面色彩搭配相得益彰。


呼应墙面脏粉色的装饰画,在蓝白主基调的基础上给卧室增加了些许温馨感。

厨房
进门右手边就是开放式厨房, 虽然面积不大,该有的功能可一个不少。

小户型设计法则,尽量一体化 冰箱作为厨房与客厅的过渡。

触摸式橱柜灯,作为洗菜备餐时候的照明补充。

厨内嵌电磁炉,减少高低不平的凸起物, 也是增加开阔感的好办法。

此处有烟道和管道橱柜设计时考虑了隐藏兼收纳边角位置也利用上做了储物格,规整厨房空间的摆放 ,橱柜右侧作为厨房电器使用区以及回到家随手放菜区域。

卫生间
仅有3㎡的卫生间也做了干湿分区!哑光爵士白瓷砖显得干净,同时点缀了绿色的面包砖,工字型竖贴看上去几分竹子即视感,使空间顿时有了生气。

洗漱区采用了侧边隐藏式下水台盆,在仅不到90公分宽的区域,放置了洗衣机与脏衣篓。

无框圆镜更好看无框款的更有日食的即视感。

一体化智能马桶,节约空间,比带水箱款更美观,同时性价比也是蛮高的。

