在家造景的慢节奏生活,远离市井坐拥中式前院
美程美家
2021-03-05
今天要介绍的案例业主,是中式传统文化的爱好者,在国有大型施工单位上班。所以对工程流程和工艺十分了解。两人期望着在工作一段时间的忙碌之后,能够住进一个舒适放松,全身心享受情调的环境中。
在买下厦门翔安这一处带前院的洋楼之后,想法得以实现,和我们共同打造了一座市井中的宁静园林—假山,鱼池,茶棚,花园一应俱全。均是爽快之人,几次的沟通效率非常之高,更多的讨论方向在于前院的格局造型布置,材质的选用以及最终效果呈现上面。

除了令人羡慕的前院,他们家的实用空间也分布得非常的合理,细节装饰也别出心裁,是一个美观大方沉稳的居家空间。
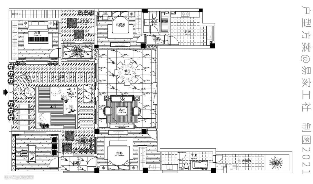
案例位置:厦门·金色悦城
户型:洋楼
设计师:吴祥昭
户型面积:237㎡
设计风格:中式

方案亮点:
①大前院中式氛围布局设计;
②大面积的使用中式造型采光窗;
③客厅推拉门改造窗户,增加过厅空间;
④全屋硅藻泥解决一楼防潮问题;
⑤古典棕色主调,原木家具搭配,大方沉稳。
前院


为达到引景入室的目的,设计师将前院的格局和生活功能区域结合到了一起。绿意围绕,生活与自然为邻到移景入室,与之融合。
地面铺设天然石材,古朴的庭院造型,中式壁灯带来亲近感与舒适感,各式各样的雕刻图案装饰,于一方庭院之中摆上茶桌,品茶谈天。



同时以深色传统造型窗台搭配纯净的白和灰,假山和鱼池景观,烘托中式庭院氛围;大面积中式落地窗为室内带来良好的采光,也将户外的美景的引入室内,赋予空间更多的舒适风光。

日后通过业主的打理,庭院里也必然草木依依,在其后的岁月中院中白墙会有雨落的痕迹,地面假山会有青苔的生长,清风一过,花落无痕......
到那时,屋主在此静坐的感觉是全身心放松享受的。
客餐厅


从院子看客厅,大面积的中式古典窗户,给室内带来更多的采光;从客厅看院子,赋予了清晨的温暖,夜晚的星空。


户型改造让整个空间更加开阔,沉稳的原木家居搭配古朴的瓷砖纹路和造型装饰,没有特别纷繁复杂,更显得出的是一个家的韵味和品质。

大餐厅圆桌,一家人可以依靠庭院,好好的吃一顿饭,沙发不靠墙,回型动线更加适合中式风格。

卧室


作为业主的起居空间,以舒缓和通透为基础,做简单有层次的吊顶空间。整体的原木元素,串联起院落和自然的关系。

家具的传统韵味很足,在清晨的阳光照射之下,质感满满。

卧室的窗景正对着院内的绿植景色,夏日遮阴,冬日闻香。
书房

书房通过主卧过道相连,是一个相对私密安静的个人空间,位于前院的另一侧,扇形的中式窗户对着院内造景时光。


窗外竹影婆娑,点上一盏小灯,这里便是最好的居心地,可以在这里舒心工作或者看书都不会受到打扰。
卫生间


将洗漱区外移,干湿区有半墙隔断,狭长的空间绰绰有余摆下大浴缸!工作了一天疲惫的身体,回到家泡个澡,疲倦感就消失了,心情也会变美丽。
里侧设置淋浴区,玻璃隔断不挡光,浅色瓷砖显得整个卫生间明亮。

闹中取静,乱中得安。一石一木一砖一瓦,被自然这一抹素雅的色彩,用最简洁自然的方式勾勒出无限意象,将中式的意境之美表达的更加纯粹。
庭院,更是一种生活方式方式。而庭院也有了一个家才有了不一样的故事。