爆改85㎡小两室,巧妙化解“横梁压顶”,惊艳全网
壹洺装饰预算既决算
2021-03-09
小户型虽小,但有效地利用好空间,不仅能成功逆袭成大空间还能让家更有生命力,今天这套面积85平小户型装修案例,屋主希望设计师可以赋予家更多的可能性,在满足基础功能性的同时,把一些小的细节都考虑的面面俱到,卫生间的设计以及猫猫的活动区域太有爱了。
房屋面积
85㎡
户型结构
两室两厅

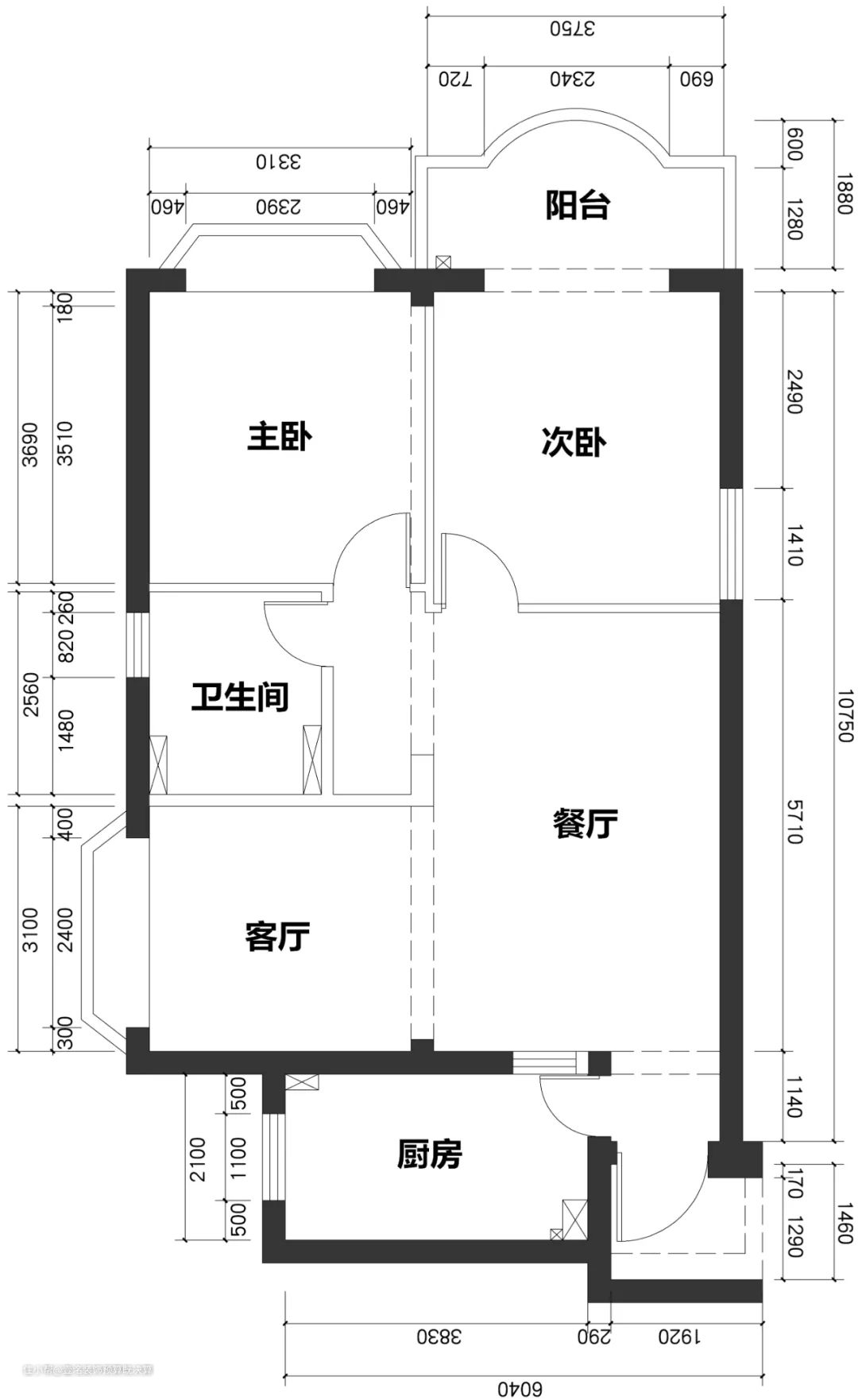
原始户型图

经过设计师测量沟通后,根据屋主诉求,工作室、衣帽间有了,卫生间一个变两个,客餐厅连成大平层,起居室还能随时切换成次卧。

无限可能的公共区域
以猫爬架为界做手工区
进门后就是这一整形似景框的墙和橡木大桌,屋主平时工作较忙观影需求较小,所以选择舍弃电视+沙发设计,大桌为中心,让客厅变成女主人的手工区。
桌子的两端增加储藏柜设计,两侧位置则做了抽屉,增加收纳空间

家中有客人时这张大桌作为餐桌使用,可同时容纳七八个人同时就餐。

斜对面是电视,正对面则是从电视下方延伸过来的一整排柜子,上方用木隔板做置物架,除了放书也能用来展示女主人的各种手工作品。

单独划出一个区域给猫使用,定制爬架以不同形式的盒子组成,满足了主子的运动需求。

打通次卧变多功能起居室
次卧带一个大阳台,主人平时却不怎么用得上,而且也影响了客厅的通风采光。

经过商量之后决定把次卧打通做成多功能起居室,与客厅连通,空间一下子就变得开阔起来。
平时这个区域就放置沙发,作为起居、休闲区使用。

需要时抽出折叠门,拉开下翻床就能切换成次卧。
围绕大梁的奇妙改造
客厅大梁也是本次改造的一个重点工程,大梁外侧做成斜面,并把整面墙都贴上木饰面。

斜面切角化解了梁下空间低矮的尴尬,设计师在卫生间区域外做栅格门,里面藏着洗手池方便实用。
下面的半圆洞口放猫砂盆,好的设计,连主子的动线都考虑得明明白白。

旁边的卫生间和主卧入口都做成隐形门,整面墙成了客厅的背景。

靠次卧那一侧则是利用横梁的厚度,藏分隔的移门、床和柜子,容量惊人。
最妙的是起居室背景墙,用不同颜色墙漆制造出空间透视的效果,又是一个内凹的景框。

两边的内凹景框相对呼应,让空间有了更强的延伸感。

客厅用玻璃隔断,变身书房游戏室
原来的客厅侧面是大飘窗,平时使用频率不高,设计师把这个区域用三层中空玻璃隔断,变成屋主小两口的书房。

让这一侧的光能够照到现在的餐客厅区域,内侧装窗帘,需要的时候可以拉上隔绝视线。

书房要承担起平时在家办公、玩游戏的需求,量身打造了一个半圆形的工作区域,超大工作台面,两人同时办公也能互不干扰。

书桌对面的吸音棉墙上装一条灯带,顶面则做成了和下方半圆办公桌面相对应的弧形,在设计师的巧思下,黑色吸音棉也成了装饰,和整个工作室的气氛再契合不过。

对面是整墙收纳展示柜,以滑动柜门开合,中间开放柜放屋主的各种手办,还包含了一个电视,满足游戏机的使用。

卫生间一个拆成两个用
书房旁边就是客卫,洗手台单独放在外侧,旁边的隐形门背后是洗衣区,左侧就是客卫马桶间。

主卫则在主卧,入口处在衣帽间旁移门,虽然空间不大但用起来并不拥挤。

整个洗手间色调以灰、白两色为主,湿区深灰、干区浅灰,形成对比。

卧室超能收纳
向卫生间借一部分面积,在主卧增加L型步入式衣帽间,起到了遮挡视线的作用。

卧室飘窗用木板围合,悬挂上别致的月球吊灯,夜色中坐在飘窗上阅读也颇有情趣。

右边则是结合储物柜深度做的内嵌梳妆台,不占用空间的同时还起到了装饰点缀的作用。

旁边一整排做到顶柜子,靠近梳妆台的那几个从次卧一侧开合,归次卧使用;靠门的这几个从主卧开合,用来收纳。

床头背景墙用木格栅+木饰面的装饰形式,衣帽间的外饰面刚好和背景墙融为一体。

玄关向外移,厨房重开门
回头看家里最小的两个区域玄关和厨房,重新规划功能之后,通往全家的动线都很流畅。

门外的拐角区域被纳入设计使用,成为房子的前室,做格栅门和走道隔断,放鞋柜和换鞋凳,作为出入房子的一个实用区域。

入户门选择的是和原木相近的颜色,靠左侧做木饰面,上面用洞洞板做收纳。
改厨房入口,增加餐厨互动
屋主希望厨房和餐厅能有一些联系,于是设计师把门改朝南开,让厨房和餐厅在空间上连通。

厨房采用U型操作台面设计,左侧为主要操作区,可以作为一些小家电的操作区域,墙面上的隔板和洞洞板增加收纳。

再往外的入口区域是双开门冰箱,紧挨着餐吧台,回家收纳、拿取食物都很方便。

向外和垂直方向的木色方柱交错,延伸出来的白色台面作为两人吃饭的餐桌使用。
