95平居家北欧三室 隔而不断客餐厅背景
临沂小毛驴装饰
2021-03-11

▲ 建筑面积95平,总造价25万,入户通过打造多功能柜与装饰画点缀,弱化狭长的走廊

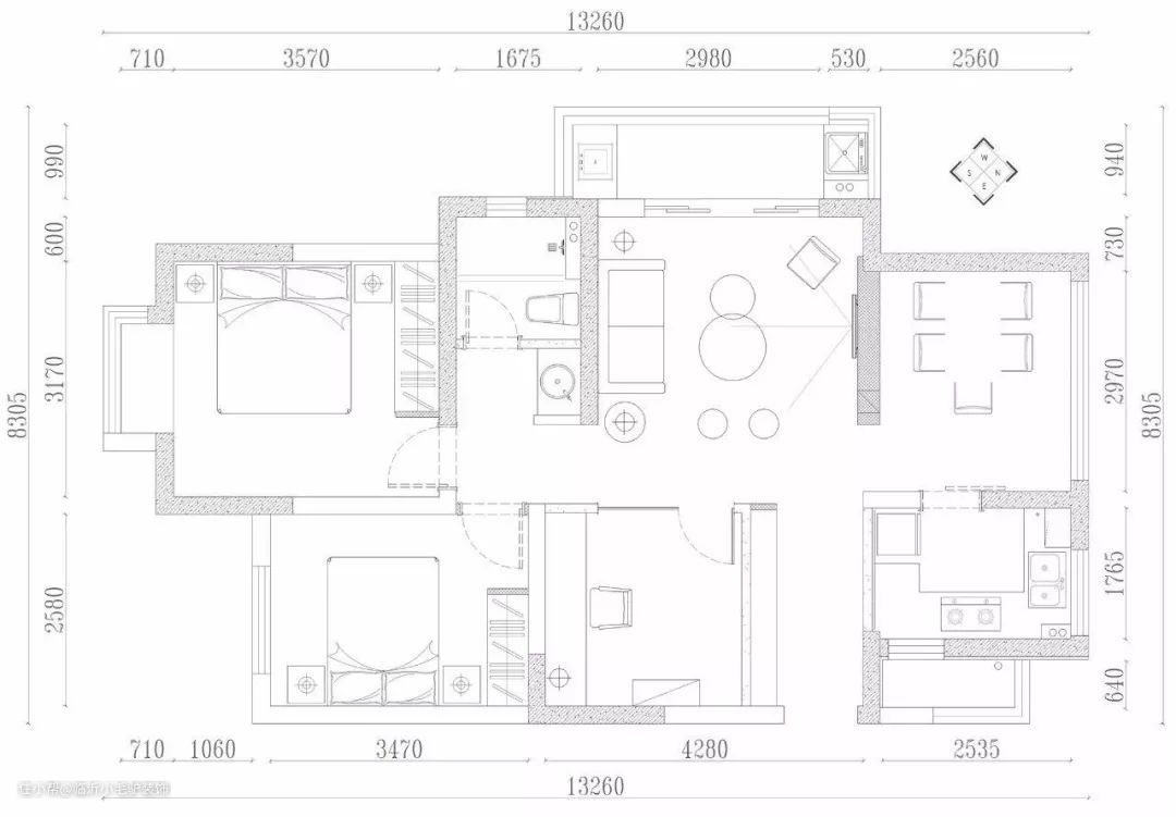
▲ 平面布置图

▲ 客厅地面通铺木地板,极简顶面用点光源取代主灯

▲ 浅色调空间加以阳台大面积采光,辅以白纱,让空间更显明亮宽敞

▲ 浅灰色布艺沙发搭配留白背景,通过装饰画与壁灯点缀

▲ 铁件玻璃茶几搭配编织地毯,通透温馨

▲ 客厅一角

▲ 半高电视背景,设计内嵌式置物框架,并安置插座

▲ 阳台视野开阔,设计收纳、水槽与升降晾衣架

▲ 客厅望向书房,采用玻璃作隔断,互不影响视线与光线

▲ 从书房望向客厅视角

▲ 客餐厅通过电视背景作区域隔断,圆孔增加背景设计感

▲ 黑白灰的餐桌靠墙放置,点缀手工墙饰,红色吊灯点缀空间色调

▲ 厨房以玻璃移门隔离油烟,黑白灰的空间用色简洁大气

▲ 过道通往私领域空间

▲ 次卧,整体延续黑白灰的低饱和色调,玻璃吊灯与装饰画作修饰

▲ 主卧,浅色硬装空间,通过深色家具软装凸显层次

▲ 利用飘窗打造卧室休闲一角

▲ 卫生间干湿分区,提高使用效率