设计图怎么看?11个图纸详细指点,让你一次性搞懂!
深圳家装先生总部
2021-03-25

搞个装修就和西天取经一样,都要经过九九八十一难,都不一定修成正果!
慢慢长路,只有装修过的人,确认过眼神,就会明白。
除了要沉思构建理想家之外,还要面对斗智斗勇的过程,和设计师斗、和装修公司斗、和装修师傅斗。
而你所做的一切装修功课,都是为了有个底气“当家”。
把自己修炼成二分之一个设计师,二分之一个施工团队,如此一来,当设计师甩给你整整20多份设计图纸时,你就能有能力指点江山,而不会自动进入脑中停顿。
图纸20多张吗?这么多,家装先生只能说是的。
对装修一无所知的小白,看到这二十多张图纸时,基本上是百脸懵逼。
图画的繁多,复杂,逼得人几乎要把家拱手让人。
但图画的重要性、实用性,又迫使你必须耐着性子去阅读它。
说到底,每一个细节,都与后期家的落成,与白花花的银子息息相关。
今日家装先生就让阅图无数张设计师坐的设计师小叶叶,手把手教大家看图,助大家在面对设计师和装修公司底气十足,让那些坑人坑爹的小计谋自动退缩。
(听设计师说,还可以看图识人,通过图来判断设计师专业程度)
以下将话筒交给设计师。
01
不懂图纸,怎么装修?
废话不多说,是的,我就是阅图无数次的设计师小叶叶,今天奉大月亮之命教大家看图。
等我们找到了装修公司,拿到了设计师的图纸,下一步就开始开心的撸袖子了吧?
醒来吧,年轻人,别急!图中有千万个坑,请先填。后期施工都是看图纸,图不对,后患无穷。
#合格的图纸应包括以下内容:
原始结构图、拆除平面图、砌墙尺寸图、平面布置图、吊顶布置图、灯位尺寸图、开关布置图、强弱电点位图、水路走向图、地面铺贴图和各立面图。
喂喂,别被吓跑。
那是你砸了很多钱装修的!还不上点心啊!
今日我以阅图无数的经验,帮大家画重点,考高分。
再者,以上所说的图纸相对来说都是一些基本必备的图纸,如果你的设计师只拿着三、五张图就来找你签合同,那我建议你直接换装修公司吧..
图画虽多,只要把重点拎清,懂得“看什么”、“怎么看”,就不会出难题。世界上的一切事物毕竟都有其规律。
02
这11幅画,你们都知道吗?
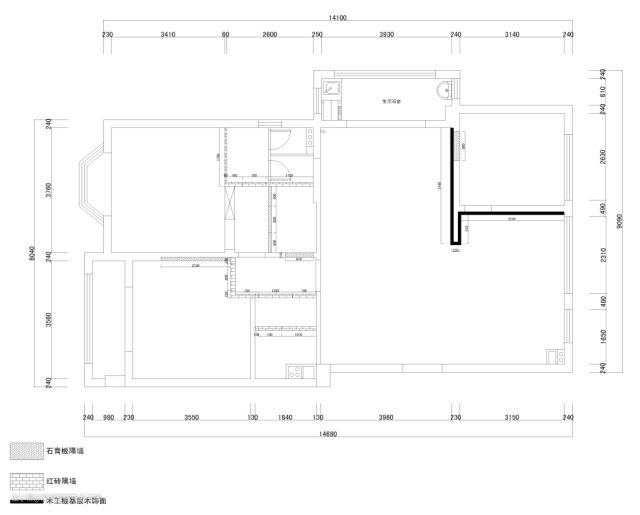
#原始构造图
最初的结构图体现了房子的最原始状态。
一个合格的、用心的图纸,除了需要标注墙体尺寸外,还需要标注承重墙(如图中暗色墙体)、门洞窗户尺寸、层高。(快点看看你家里的图纸这些有没有标注)

上述标识规范,体现了装修公司和设计师的专业性。
而且作为业主,我们需要把注意力集中在这两个地方:坐便器和强弱电箱的位置。
由于坐便器和强电箱内极有可能发生移位。
如需搬迁,装修公司将收取相应费用。
没有标出初始位置又如何知道是否有移位呢?怎么愿意花钱呢?

强电箱

弱电箱
在拆除计划表中,我们可以看到要拆除的墙体是哪一块。需拆墙时,一般会在图纸上用阴影或样例标注清楚。

看看拆墙计划,最重要的是盯着承重墙,记住这句话:
承重墙不能拆卸掉!
承重墙不能拆卸掉!
承重墙不能拆卸掉!
承重墙不能拆卸掉!
(要紧的事说三遍都不够)
#砌墙尺寸图
砌墙尺寸图,我们主要看的是砌块的材料和尺寸。
普通新型砌墙的材料,可根据不同的位置采用不同的砌筑材料。看图时,重点要看“砌墙的材料和尺寸”是否有明确的标注。
要看懂,才能知道装修公司是否会多收你装修墙壁的费用。

砌墙尺寸图中,还有几点我们也要注意观察:
浴室的新砌墙应作止水梁;浴室的落水管包管应有止水墩;阳台如不包管,卧室和阳台也应作止水梁。(用现场混凝土浇注止水梁,防水效果更好)
这就是设计师在做图时,需要标注的,如果没有,就具体问设计师。
墙图画中,还有一点也要注意观察:房子里是否有非常薄的墙,即厚度连10公分都没有的墙(也叫四分之一墙)。

图自 网络
若有砌块,且是砖砌成的,图上建议这样的墙不能砌得太长,超过一米的话,砌歪的可能性很大!
要是砌歪了,把脚踢倒再砌!
当然,你也可以选择家装先生装修,看看这砌墙效果!


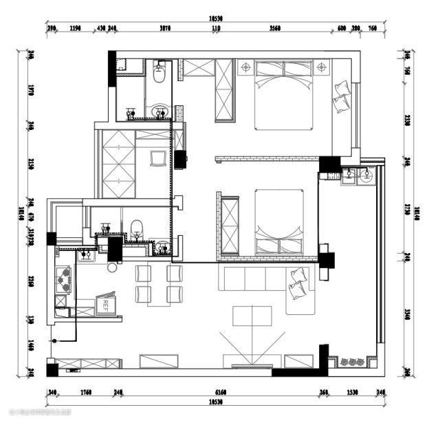
#平面布置图
设计图是我们都能看懂的图纸,设计图是体现住宅布局规划的主要图纸。假如设计合理,以后的生活将舒适畅快。
而且,我们在装修之前提出的要求,也将全部体现在这个图纸里。
因此,在看这张图的时候,我们要将自己融入到图中。想像自己就是生活在图画规划的空间里,然后找出图画中的设计是否符合我们真正的需要。

这里还有一些更贴心的小建议,供大家参考。
像干湿分离的卫生间,客厅有足够的储物规划,设计要考虑到孩子的成长因素,这些都是重点,都是要与设计师提前沟通好的人性化规划。
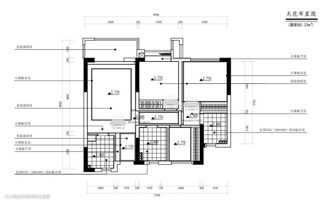
#吊顶布置图
图中所放的这幅图虽然写着“天花布置图”,但也有一些图写着“吊顶布置图”、“顶面布置图”。

事实上,称得上什么并不重要,像北方的地瓜和南方的番薯,都是一种食物。
因此对于绘图来说,精确的绘制才是最重要的!
在吊顶图中,我们要注意观察的是窗帘盒与桌子、柜体、床的位置是否有冲突。(这里的冲突指的是:窗帘盒下面有一张床,没有空隙。)
有一次,我看了与窗帘盒和床铺位置相冲突的图纸,当时还没有使用百叶窗。于是按图纸施工出来,是窗帘可以当被子用的。(如果有顶面和地面的图纸就方便了些,没有的则需要参照平面布置图来参考)
我们还可以在吊顶图中看到每个房间的吊顶材料,包括吊顶高度。
要特别注意的一点是,如果有中央空调的话,中央空调内机的尺寸要提前和设计师沟通好!
市场上不乏按设计师设计尺寸的空调机根本装不进去的图纸
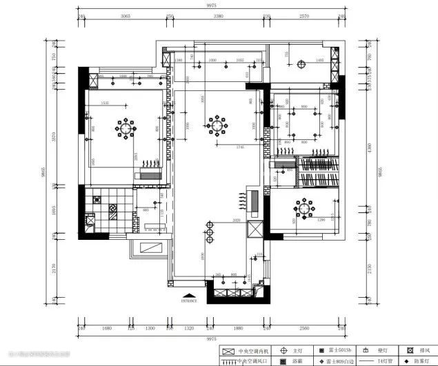
#灯位尺寸图
灯饰已经成为家庭布置中的首要任务。
很久以前,我们就有一间屋子只放一盏主要的灯,整座房子总共不超过7个。但如今生活中加入了越来越多的照明方式。

不管是筒灯、灯带,还是落地灯,想要营造一个温馨的家,照明设计起着决定性的作用。

在灯的尺寸图上,我们可以根据相应的灯具图例清楚地区分:筒灯、灯带、吸顶灯和吊灯。
当然除了这个简单的要求外,这张图纸上,我们还可以看到灯光布置是否合理。例如:床头正上方的地方不要布置筒灯。躺下来的时候,有多少个灯泡射进你的眼睛,你真的睡得着吗?
有一件事必须提一下,厨房的灯光!
以往,厨房的照明手段单一,只有一体化的吊顶灯,而且有些家庭的灯还不亮。现在还记得妈妈常说的,“本来想好好做一顿饭的,现在冲这灯也不想做了,要不是老娘刀法好,手指头都切掉了。”

因此,装修的时候一定要在水槽上方和切菜区上方布置一个光源!!!
也有许多细节,比如:
餐厅灯光应设置在餐桌正上方,建议洗面台面上筒灯选用防水或防雾型,玄关筒灯位设计合理,卧室灯光应选择可调光的照明设备等。
在灯光下的这些细枝末节也不能忽略。
#开关布置图
切换安排图首先要注意的是单控和双控切换是否仅有区别。假如不知道单控和双控的开关长是什么样的话,可以到图例中找找看哟~
当然,合理的开关位置也是绘图最基本的要求,像门后这种地方就不要布置开关了,使用起来一点都不方便。

实际上,以上几点是制图的基本规范,下面要讲的是一种人性化设计:
开关的布置要保证夜晚,从每个卧室到卫生间,卧室附近有开关柜可控制卫生间附近的灯。
尤其是家里有长者,晚上要起床,这一点尤其重要!如果设计上没考虑到这一点,也可以通过布置小夜灯来满足这一要求~
还有一种人性化的设计,开关布置不要太复杂,一面墙上有几个多控开关,开关这么多,怎么都能记清楚呢
设置这么多的开关,要亮瞎自己吗?
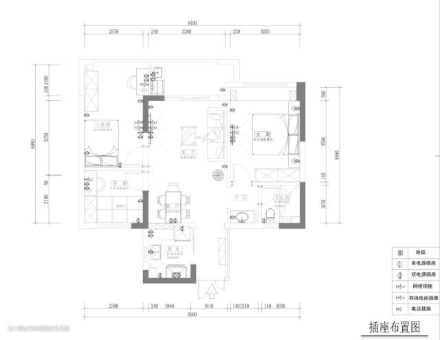
#强弱电点位图
强电信号点位图——听起来复杂而晦涩?
你解释一下,就知道了:
强电点位,即我们常说的插座。
弱电点位,就是我们常说的网络端口,电话,电视线路。
查看强、弱电点位图,最重要的是看插座数、布局和具体位置。
这个插座的布局不需要它,只是日常使用方便而已。
足量(可别在后期加无数个拖把插线板)
配置高效率,物尽其用;
具体地说,就是合理的点位,可以避免被不偏不倚的大型家具所阻挡。
与大家分享一出因点位不合理而引起的悲剧:
安装时未事先与设计者沟通电视柜的高度,购买电视柜时也没有量高度,最后电视柜的台面正好卡在插座中间,不能上不下。这就是:

(标准的300mm,其实每个人都不同啊))
一些额外的提示:
1.如桌子、梳妆台等地方,桌子下面都应放置插座;
2.卫生间和厨房插座应注意防溅;
3.根据电器,事先估计好插座的数量,再增加一半或更多,以迎接那些能提高你生活质量的新事物;
4.装饰之前,自己在房间里多走走,多考虑。在规划中考虑日常的动线习惯,以及家具的尺寸。

对于弱电点位布置不太重要的,要考虑的就是不要重复布置。
例如,很多家庭都会使用 WiFi,其实对应的网络端口也可以相应减少,毕竟,多排一路弱电点要收费近200元。
#水路走向图
水路走向图是一个比较简单的图纸,我们看图的时候需要注意的是,水路的点是按照左右冷暖来布置的。(我想问一下,有多少家庭水路点位是反的?)
如有水管要经过客厅,就要结合吊顶图,看是否在吊顶内,不要暴露出来(装修图好似麻将,少一个都不能胡)

好了,这里就提一下,有些设计风格的水管不在吊顶里面,也很好看~

本图中,热水是虚线、冷水是实线
一般而言,在绘图时,冷热水会用实线和虚线来区分,当然,也会用图例来识别。当我们看图表的时候,发现有些地方看不懂,就瞅一瞅图例。
#地面铺贴图
若您已经看到这里,那小叶叶就可以负责任的告诉您,马上就会说完!!!
地上铺贴最主要的作用是可以结合预算清单核对工程量。透过图样,可以明确具体的铺设方式及材料,判断装修公司收费是否合理。

图中,卫生间和厨房均未标明如何铺贴。如卫生间铺砖,建议不要用800×800的大砖来铺贴。
因为...坡度不好做。
#立面图
这里只有一个图纸,没有配图。
立面图和平面图是互相结合的,比如说想要了解柜子的内部结构,就需要拿出立面图来看,这样立面图就会有很多~
(卧室的立面图,餐厅的立面图,卫生间的立面图,好多好多)
立面图与平面图都是相辅相成的关系。
所以,我们在很多设计细节上都需要平立面图结合来看,例如插座高度合理吗?吊灯的高度合适吗?等都需要平面图和立面图结合起来看,这样才知道具体位置。还有一份图纸没有立面图,是没有灵魂的,懂?
以上说的图纸都是要的,也可以再丰富一点,包括更多详细尺寸的图纸。
但,还有一种情况,一些图纸可能包含在其他图纸内,例如吊顶布置图就已经包括灯位尺寸图,平面布置图已经包括平面尺寸图。
不过,有些设计师还会提供具体节点图,非常全面的那种,要是遇到这么认真负责的设计师,一定要抓住她,不要让她跑了!
好了,关于主卫衣帽间的改造方法内容,家装先生的分享就先到此为止,要是对你有帮助的话,记得点赞+收藏+关注哦,家装先生也会持续更新这类装修知识。要是装修设计中遇见了哪些难题也可以call ,家装先生哦,我们会一直在线的。