35㎡装出两室一厅 全屋干净整洁无杂物 收纳设计100分!
悠然之家装饰
2021-03-29
今天,小编分享的案例是35㎡的复式房装修,收纳设计很巧妙,全屋空无一物,看起来超干净。
经典案例
面积:35㎡
层高:4.6m
户型:两室一厅
亮点:以简洁的设计手法贯穿全屋,减少造型和设计,效果清爽自然,满满的高级感。

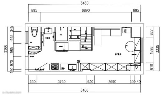
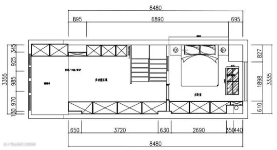
户型图

一字户型,总面积35㎡,层高4.6m,可发挥空间很大。利用挑高做隔层,实现动静分离效果。

一楼满足一日三餐、会客、撸猫、追剧等功能,同时还拥有大面积的收纳柜。

二楼布置卧室和多功能房,不受外界干扰,空间更加私密化。
玄关

玄关鞋柜斜切设计,避免空间拥挤。局部铺贴瓷砖,耐脏同时减少灰尘带入室内。排布有序的顶灯设计,补充空间照明。
厨房

入户即是厨房,一字形布局避免空间拥挤。橱柜和吊柜结合,墙面还安装五金挂件,厨房收纳绰绰有余。

橱柜和吊柜采用双色调,平添几分活泼,缓解层高带来的压抑感。
客餐厅

穿过玄关就到了客厅,大量白色搭配原木色,空间显得明亮又宽敞。

电视墙设计整面收纳柜,无把手设计简洁美观。开口部分是给三只喵星人准备的联排别墅和猫砂。

靠近窗户设计了一组展示柜,用来摆放书籍,便于平时坐在飘窗随手取阅。

与展示柜临近的是隐藏洗衣区,洗衣机和烘干机叠加摆放,最大化利用空间。左侧隔板设计收纳洗衣用品,保持空间整洁统一。

人造飘窗设计,下方都是收纳空间。搭配一套造型时尚的简易桌凳,这里既是餐桌,也可以充当办公区。
卫生间

卫生间三分离设计,既提高使用效率,也保证了空间的整洁。

半嵌入式洗手盆,利用镜柜和台盆柜保障日常收纳。
楼梯

楼梯设计效果很不错,玻璃增加空间通透感,延伸视觉效果。

隐藏灯带设计,赋予楼梯踏步韵律之美,兼顾照明同时还能起到划分空间、完成过渡的作用。
卧室

卧室采用简约风设计,由于层高关系,舍弃成品床铺,选择无脚落地床,避免压抑感。

床头靠背现场定制木饰面,隔板取代传统的床头柜,简单又兼顾实用性,日常清洁也容易。

卧室门和采光窗打开,让两侧空间形成采光互补,大面积的白色运用扩大视觉空间。
多功能房

多功能房定制地台和书桌,地台兼顾收纳功能。平时可以休闲娱乐、居家健身,简单又实用。

隐形折叠门设计很巧妙,家里来客人将折叠门展开,确保了空间的私密性。平时将折叠门隐藏在柜子里,不影响美观和通风。
结语
35㎡挤出两房一厅,更重要的是全屋宽敞,空无一物,毫无拥挤的感觉,这样的设计大大提高了居住的舒适感。