干货!这45条装修避坑指南,认真看完能帮你省十几万!
名匠装饰设计官方
2021-04-09
在这个温暖的春天里,装修旺季渐渐开始了,很多人都忙着这时候开始装修自己的新家,当然就避免不了经常踩一些被忽略的“坑”。
今天小匠就专门收集了众多装修过来人业主的经验,直接告诉你们40条装修避坑指南,就连小匠也受益匪浅,认真看完真能帮你省十几万!
- 内容导视
- 厨房装修避坑:14条
- 卫生间装修避坑:17条
- 卧室装修避坑:5条
- 客厅装修避坑:5条
- 玄关装修避坑:4条
一、厨房装修避坑
01、安装顺序:先要把烟机管道规划好,其次再装橱柜,然后装烟机,最后再装吊顶。
02、厨房的插座最好带开关,厨房使用小家电的频率高,所以带开关的插座能避免经常插插座、拔插座的麻烦。(带开关的插座真的方便)
03、在水电改造时,必须要将冰箱的电源单独布线,可以避免我们外出远行的时断水断电,而冰箱里食物就无法存储的困扰。

04、吊柜最好做到顶,造型美观且不会附着上油烟,否则长期下来,柜子顶部的顽固油烟、及落灰,打扫起来会非常闹心。
05、橱柜尽量做抽屉,大大小小的抽屉,不管是收纳锅碗瓢盆,还是各种油盐酱醋小调料,可比柜子、隔板好用。
06、将能隐藏放置的家电(比如烤箱、洗碗机等),就尽量隐藏收纳(或嵌入式),不要放到台面上。可以节省一大部分空间,也方便打理。

07、建议水槽做成台下盆,日后下厨清洁很方便,水渍之类的,一抹就进水槽。水槽最好选大单盆,洗大锅、小碗都方便。
除开以上,厨房一些尺寸一定要遵循,要符合人体工学,下厨才能减少劳累,具体如下:

08、备菜区等操作台面操作高度=下厨人的身高/2+50mm。(万能公式)
09、灶台台面操作高度=下厨人肘高-10~15cm(因为灶台上需要放锅具)。如果感觉麻烦,就:烹饪区高度等于操作台高度-10cm。

10、顶柜高度:高度在60-75cm。内部分区可以三分或两分,遵循下大上小的原则(越上面的分区空间越小)。
11 地柜高度:高度85-90cm,根据人身高来定,就是上面所讲的万能公式。内部分区,可以遵循下大上小的原则。
12 顶柜和地柜之间距离高度:60-70cm。能避免磕碰到脑袋、顶柜太高够不到等现象。

13、安装净水系统, 是有必要的,尤其是近几年,人们更加的关心环境安全问题。
14、安装洗碗机,因为没人喜欢洗碗。(这个东西只有用过的人才知道它的好)
二、卫生间装修避坑
01、卫生间防水做完后,一定要做24小时闭水实验,也叫蓄水试验。蓄水深度应不小于20mm,蓄水时间为24小时,水面无明显下降即为合格。
卫生间是最潮湿的空间,如果卫生间防水工程没有做好,日后入住对上下邻居都是隐患,返工就更麻烦了。必须要多花些时间、精力,在防水工程上。

△壁挂马桶上方的柜内放置湿区浴室提供热水的电热水器。
02、如果是做干湿分离的卫生间,建议将热水器安装在干区,确保万无一失。在改水电期间就要想好布局哦。
03、没有(无法)干湿分离的卫生间,更要安装在干区,长期保持着潮湿的情况,将(电、燃气)热水器放到卫生间,会有隐藏的危险。虽然如今的电热水器,很多都带有防电墙设计,但还是双重保险为好。

小匠建议使用燃气热水器,并且省电费,长期算下来,比电热水器性价比高。可以将燃气热水器安装在厨房,比较安全。不过高层或者是尚未通天然气的地方,最好还是选电热水器,更安全。

04、卫生间还要注意防滑问题。要选用带有凹凸质感的、带有花纹的瓷砖,能有效防滑。
05、在淋浴区的地面做回字型防滑拉槽,积水就会顺着回字拉槽流入地漏,排水的速度特别快,避免积水、也防止滑倒,也是一种主流形势。

06、卫生间的收纳空间,建议在硬装的时候搭建出来,比如在墙面上开辟几个壁龛、一个台面,方便储物,但要注意不是随便开辟,要注意尺寸大小,对齐,做到更美观、有整体性、且好整理和清洁。

07、卫生间贴瓷砖的话,最好做美缝。用填缝剂,在卫生间时间一长,瓷砖缝隙中都是灰尘污渍,十分难清洁掉。用美缝剂,相对美观整洁。
08、美缝也是一门技术活,最好不要自己动手,找专业的师傅,否则效果差很多,落得吃力不讨好。
09、至于美缝的颜色,黑色、白色最保险。白砖+黑色美缝,最佳搭配。

10、如果想要改变马桶位置,可以使用壁挂马桶,同时它体积相对较小、挂在墙壁上,没有马桶周围的卫生死角问题,打扫起来比较方便,壁挂马桶上方的台面还可以利用起来。

11、卫生间的龙头、花洒等五金配件,必须买质量好的。质量差的,容易残留水渍、不仅不环保安全,还不精致、也较难清洁。

12、可抽拉式龙头方便实用,台盆不容易沾上水迹、污渍,比较人性化例如洗头发方便等。

13、如果卫生间干湿分离不彻底,洗漱台的镜面选用智能浴室镜面,有显著防雾效果,自带灯带,还方便化妆。
另外讲一些细节:
14、一定要使用带有存水弯的下水管,下水管口要密封,能有效防异味防虫。
15、卫生间开关插座面板一定要选带防溅盖的。(用水较多厨房水池旁,阳台水池旁等同理),预防安全隐患。
16、在全屋普及智能电器时代下,马桶旁别忘了预留插座,智能马桶、马桶盖都是需要通电的(如果后期想拥有它们的话)。
17、防霉玻璃胶的优劣至关重要,劣质的防霉玻璃胶后期一定发霉发黑。
三、卧室装修避坑
01、床区安装壁灯,简洁美观,还省地儿,选用双控开关(或者智能开关),睡前不用下床关灯。相比较落地灯的装饰性更大,实用性并不是很足。
02、卧室的灯光不能太刺眼,暖色更容易促进睡眠,3000K-4000K即可。床头两侧的插座,最好选用带USB接口的,方便手机等电子设备充电,安装位置要高于床头柜。
03、选择错位的五孔插座,有效避免不能其插的状况,实用和美观相比小匠推荐实用。


04、最好背装空调,能够隐藏空调的管线和插座,相比空调管线外露,更美观;如果不能背装空调,空调的线越短越好看。空调位置要放对哦,对着脑袋吹也不好吧。

05、衣柜内侧安装灯带,更方便找衣服。通顶衣柜,收纳空间更大,且没有卫生死角。整体性更强,更美观,当然也更贵。
四、客厅装修避坑
01、客厅也是需要储物空间的,用做豪华电视背景墙的钱,来做实用的大收纳柜,更简约有美感,整个家都显得干净透亮不少。
02、想要做开放式收纳,一定要顾及到自家落灰的情况,否则“擦灰太累了!”

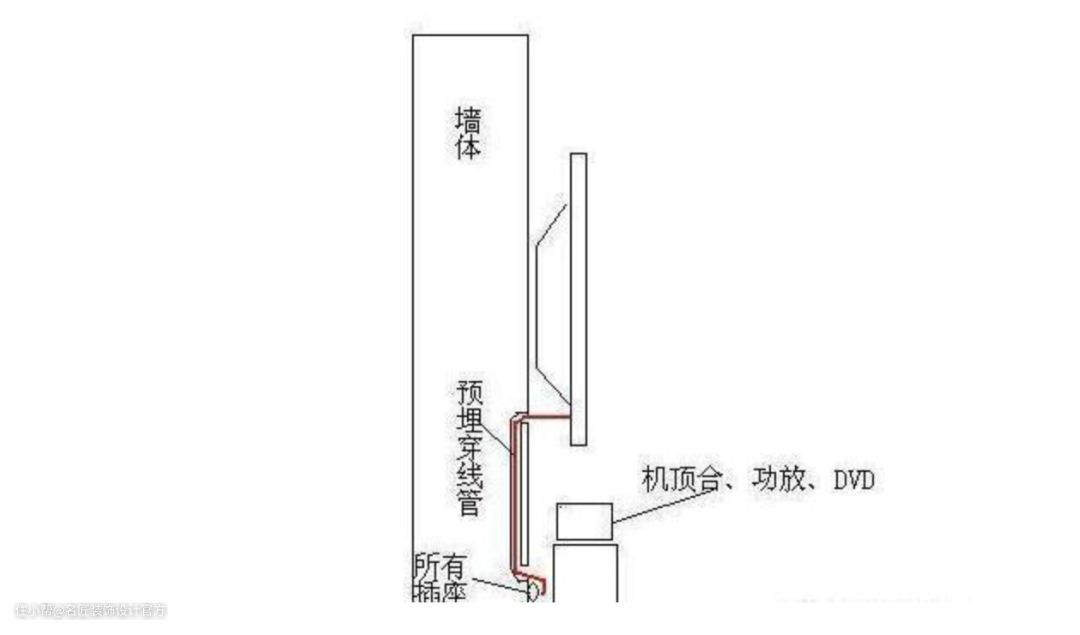
03、如果安装电视,建议隐藏电视线,十分简洁利落。年轻人选择无电视设计的话,可以选择投影仪替代,或是开放式客厅根据自己想法装饰也不错。

装修时在电视墙预埋一根50管,从底部电视柜位置通到上面挂电视位置;之后所有设备和电视的连接线,都可以从管里走。

04、装修好了,买家具、家电也是一项大事。尺寸必须合适,要确保空间放得下,不产生鸡肋空间、卫生死角等等。最好和设计师一起讨论选择,专业的事交给专业的人不会错。

在硬装改水电的时候,就要将大家具、家电确定好,避免位置、大小不得当。当然,家具、家电还关联着插座的数量与布局,有不少网友都吐槽自家插座数量不够,所以必须贴合自身生活习惯哦。
五、玄关装修避坑
01、玄关处最好设有插座,鞋柜下方的插座可给扫地机器人充电,鞋柜中间台面的插座,可给手机、小夜灯充电,根据自己的生活情况来定。
02、鞋柜下方预留放鞋子的空间,高度15cm左右,柜体定制这块师傅都懂的。
03、玄关作为家和外界的过渡区,设置高低台的下沉式玄关,能够大量减少室内灰尘,降低清洁打扫频率。

04、玄关处最好有个挂衣区,来放置“次净衣”,到了穿外套的季节,回到家衣服闲置沙发或者房间,收纳整理难,也不方便。
最后:房子是你自己的,一定要有所坚持,要有主见!
不是所有的户型都能做成小匠上面说的三分离卫生间、做成下沉式玄关,装修和生活一样,过程中会有很多遗憾,是正常的~
重要的是我们怎样一步步去变好~

往期精彩🔥
墙体拆改注意事项,“拆房”不是想拆就能拆的!
收楼须知 | 学会这16个点,不用验房师,自己也会验收新房!