小情侣的32㎡蜗居大改造!
有家装饰
2021-04-11
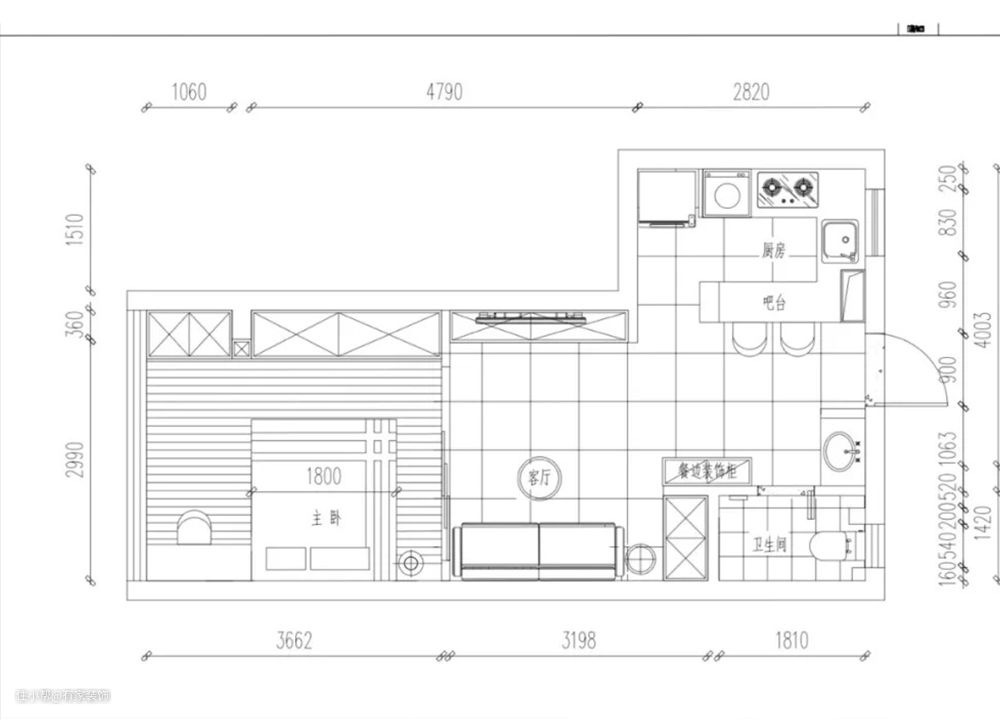
户型解析
设计师将原本暗门厅拆除,将自然光引入玄关及客厅区域,在玄关处于客厅交界处最大程度的保留了可活动区域。

玄关
改造前的玄关部门装修风格比较老,天花及实木门框都颇具年代感,狭窄阴暗的空间布置给人感觉较为压抑,而且受制于空间大小,生活中出现的过多杂物,也会给人一进门乱糟糟的感觉。

改造后玄关亮堂许多,一进门设计了一款可拼装收纳墙, 多孔收纳墙的设计,让圆头木棒能够随意移动,所以可以根据挂放物品的情况而灵活调整。
客厅
没有过多杂色添乱,风格也保持着清爽简约的样子,茶几下方也没有做镂空处理,而是加入了白色收纳盒,满足收纳需求,地面经过磨砂工艺处理,对光线的反射让砖面显得也非常有质感。

客厅与卧室之间拆除了原本的分隔板,用半透明玻璃滑门来替代,滑门推开以后自然光直接进入客厅,并可以通过无遮挡的过渡区,直接照进房间大门,整个屋子都不会存在昏暗的情况。
餐厅
除了沙发给人惊喜,客厅还可以加入白色可拆卸长桌,朋友聚会或是家人来访,这样的长桌非常有必要,且就连桌子也没有跳脱整体风格,也是保持着白色主色调。

厨房
进门右手边是开放式厨房区域,设计了一个大理石吧台,在分隔空间的同时,还能作为餐厅区使用,厨房空间及吧台区域柜体设计也很多,所以不用担心收纳问题。

卫生间
改造前的盥洗室在卫生间里,让原本拥挤的空间显得更加狭窄,所以设计师充分利用进门后的空间区域,将之分隔为玄关和盥洗台,互不影响,又完美利用起每一寸空间。

其他
玄关与客厅之间的过渡区,算得上整屋改造的一个小亮点,小空间里有一个小书桌的设计,偶尔可用作工作区域。
