爆改36㎡老破小!90年代老房整容式改造,阴暗破旧变轻奢豪宅
爱空间整装万平体验店
2021-04-17
这套房子是业主魏小姐的父母90年代购买的老式单元房,面积36㎡,闲置了几年,出租了几年,随着现代都市住房环境的日益革新,这套老房子的居住环境已显得落后破旧,难以满足现代人的生活需求。此次想要对房屋进行改装,自己和先生能住进来,有一个属于他们的小家。她希望设计师能帮她打造一个全新的生活环境,展现年轻人的时尚生活。
让我们先来看看这个老房子原始的模样~

房屋所在的楼体老旧,楼道非常狭窄,施工难度高。

原始设施大多数已损毁破败,90年代的装混结构老房子,原有的管道、墙体不能大改。

厨房很是拥挤,陈旧的设施、不合理的动线、斑驳的墙体、零碎杂乱的各类用品,特别不方便清洁,残留太多卫生死角,让做饭的心情也很糟糕。

改造前次卧的环境拥挤杂乱,略带阴暗,难免带给居住者沉重、压抑的心理感受。睡眠空间营造得也不是很舒适,一切都很将就、随意。

卫生间随意拼接的地砖十分难清洁,也不美观。这个狭窄的空间内,承载了上厕所、洗漱、洗澡的功能,清洁用品也堆放在此处,令脚“无安放”之地。
业主改造需求:
1、改善拥挤的空间现状,增加收纳,放大空间,保证功能区齐全,能有个大大的卧室。
2、小户型也不做简约风,就是要有格调。
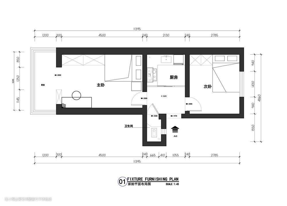
改造前户型图

设计师分析:
1、原始户型动线不合理,主要功能区域,如厨房、卫生间等空间难以满足物品收放功能,需要进行空间重组,做到功能区域划分更合理。
2、常住2人,一个卧室可以满足需求,将原本的次卧改装为厨房+餐厅+客厅,让小户型的功能区更加齐全。也满足现代年轻人快节奏的生活方式。
3、卫生间区域的面积有限,依托原始结构,将洗手台、浴室和厕区分隔开,干净卫生,更易打理,有效避免了原始户型中所有功能、物品都集中在卫生间的状况。
改造后居室效果图

经过设计师的逆天改造,这个36㎡的小屋呈现出了让人耳目一新的惊艳效果,黑白灰的色调展现新青年的都市时尚生活,暖黄的灯光营造温馨浪漫的居室氛围,洗手台以黑色+镜面营造大空间的既视感,轻奢又精致,太多的惊喜……
客厅

设计师用米色来让空间显亮,黑色+金色的储物柜调性十足,展现空间的质感,很有摩登范儿。

居住最重要的是采光,尤其是小户型。飘窗设计保证了采光,同时充分利用窗台空间,使之可以成为一方小榻,也可以作为沙发使用,实在妙极。

值得一提的是,沙发背景墙上的灯是经过精心量算定制的,为的就是在预算之内将最合适的单品以最佳的状态展现出来。这不仅仅是氛围灯,还装饰了单调的墙面,让人在方寸之间感受艺术带来的温度。
厨房

一体化的客厅厨房与餐厅散露出和谐的美感。轻盈小巧的茶几也可以当做餐桌使用,具备多功能。以灰色亮漆面橱柜来拉升设计感,加上无主射灯的光线折射,浪漫有格调的用餐氛围盈满整个空间。

厨房虽是开放式,但大可不必担心油烟的侵扰,内置的油烟过滤机实用且美观,配上白色的操作台,经典简约。
主卧

卧室在设计上选择了墨蓝色的床头软包和窗帘,第一眼就被吸引住了。米白+棕的床品和鱼骨拼木质地板散发着亲切的暖意,不张扬、不刻意,空间的色彩映衬出内心的平静。

床头背景以饰面板做简单的色彩对称装饰,在这样质朴的背景下,摆设珍爱的相框,实现品味家居之余,呈现家的温暖。黑色金属床头灯左右对称,成为空间画龙点睛的一笔,为理性质感添加感性色彩。

主卧的阳台打造成了屋主尽情享受惬意闲适生活的私人空间。慵懒的沙发给人以全身心放松的舒适体验。

不受固定边界局限的设定,可自由调度和变动,蕴含空间使用的乐趣玩味。

阳台的另一侧摆放的是女屋主魏小姐的梳妆台,简约的化妆桌与空间完美契合,金属边脚展露轻奢和精致,简约干练的空间柔和、沉稳、安静,总在不经意间触动人心。
洗手台

洗手台的设计很是惊艳,黑色地砖+镜面设计,让整个空间在灯光下熠熠生辉,一改往日的阴暗局促。精致的细节和充满艺术气息的陈设,营造出富有灵魂的空间境界。

大理石台面+白瓷碗状洗手盆素雅大气,让空气中流淌着洗练的情调和怡然的气息。
浴室
将生活形态和美学意识转化成一种无声却可感知享受的设计语言。

小户型里能有一个独立的浴室,该是多么让人欣慰的事情。
黑色、灰色不规则纹面的地砖拉宽了空间视觉感,让这隔出来的浴室空间丝毫不显得局促。
卫生间

马桶间也单独隔开,简直不要太方便!
在门把手上刻字大概很出人意料吧,个性十足,让这个小空间也略带玩味。
结语
比起用手法去营造形式美,用创意予以人温度和享受,往往更能诠释设计的本质。本案在装饰陈设上没有太多手笔,更加注重空间的使用功能,将更多的设计创意用在生活动线、居住感受营造上,从心灵深处给予居住者最贴心的的暖意,在这老破旧的36㎡房屋中创造了太多令人惊讶的奇迹,很美,很不平凡~
--爱空间全国有1000多位设计师,帮你全屋设计。如有需求,可联系设计顾问,1对1讲解量房设计,沟通定制方案,切实做到设计的真实效果及实用性完美结合。