We House300㎡上叠简欧风格
别墅家居设计
2021-04-18
业主需求:业主对生活质量要求偏高,要求设计师在保持整体美感的同时又将使用空间发挥到最大化



客厅:在简欧客厅里沙发等家具一般会选择布艺,线条简洁的欧式布艺沙发展现现代风格,高贵、典雅又不失浪漫气质,欧式沙发大多色彩典雅、线条简洁,适用于展现现代风格的居室。采用框架加甸子的结构,铁艺的框架和布艺完美的结合起来,呈现出一些特别的设计感觉,看起来就很舒适。

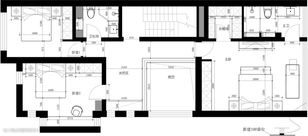
卧室:起居室则在客厅那种明亮的欧式风格的基础上,进行了色彩过渡,让人感觉非常安静沉稳;卧室简约的墙面贴以素雅的壁纸,加上丝质艺术窗帘,明亮的空间,卧室变得充满阳光、安静、舒适,可以让人有很好的休息、睡眠。


