132㎡工业风Loft,玻璃材质、大中岛、独立衣帽间...打
孝感百安居装饰
2021-04-19
这套132㎡的Loft公寓位于台北,屋主一个人住,同时也需要经常在家办公,如何兼顾开放格局和个人隐私的双重需求是这次设计的重点。
设计师充分利用采光优势,以不同玻璃材质代替传统墙面分隔,营造丰富的视觉和光影效果,进一步梳理工作与生活并存的复合式关系。

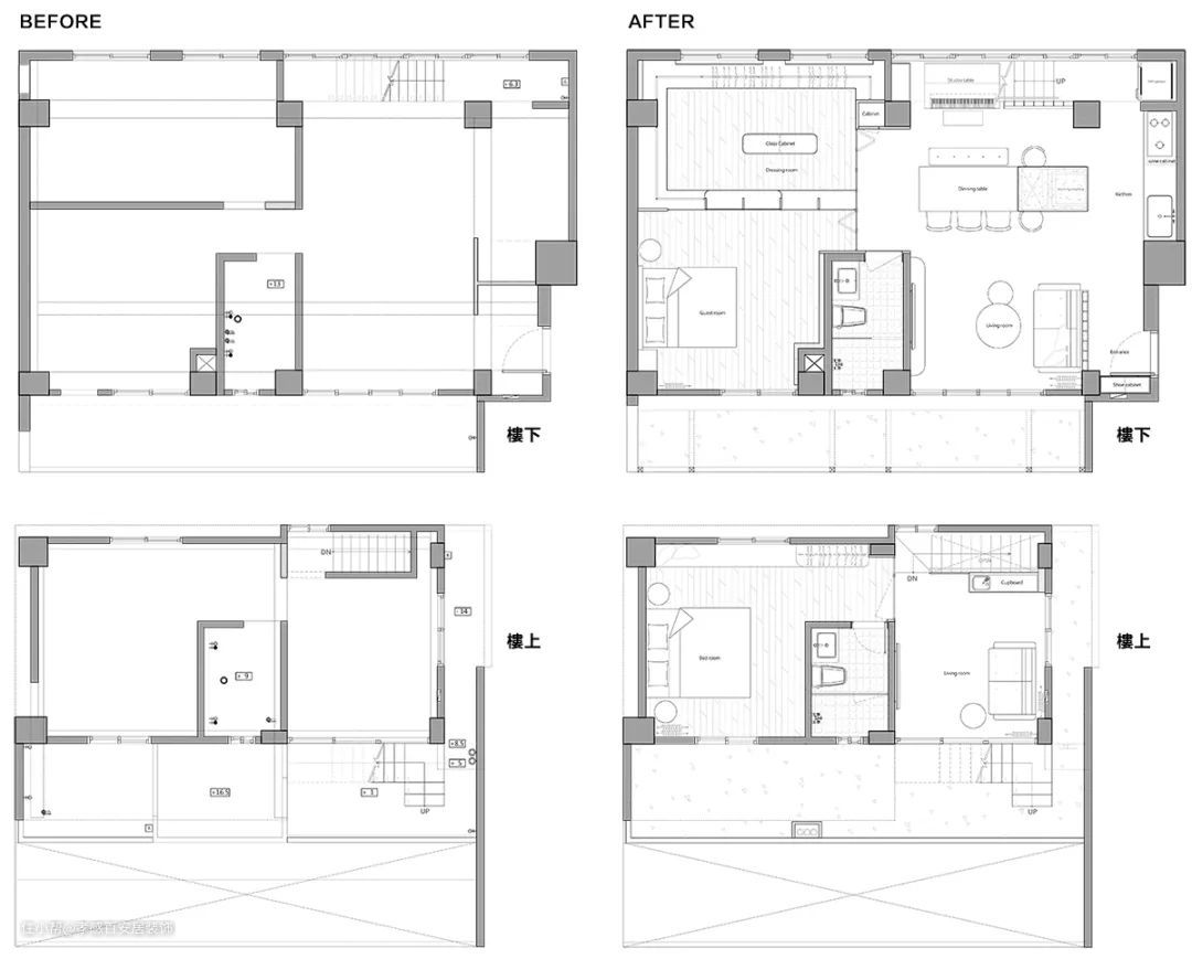
▲ 原始结构图 & 平面布局图
屋主需求:
1、由于是在家工作者,时常有工作伙伴来访;
2、喜欢下厨,希望有宽裕的烹调空间;
3、室内需规划摆放洗衣机位置;
4、对衣服收纳需求大。

开门直对客厅,为了保证隐私同时不影响采光,玄关用水泥圆孔砖+圆形玻璃砖砌筑一道隔断,透而不穿,还可以摆放小公仔打造入门端景。

再往里走是开放式客餐厨,衣帽间隔墙、楼梯隔屏均选用玻璃材质呼应,让空间轴线轻盈叠合。


▲ 从圆孔砖看向客厅

当双眼对上一方圆孔,虚实之间是光影的把戏,从而模糊内外边界,玄关隔屏转往客厅领域,成了一面造型沙发背景墙。

▲ 洗烘一体机嵌入岛台
为了平衡工作和居住,让渡一部分客厅空间给到餐厅,满足屋主接待工作伙伴、商谈等需求。

墨灰色厨房拉深了空间纵轴,中岛和餐桌结合,开辟宽敞的烹饪空间。

中岛台面下嵌入洗烘机,将家政流程一并收整。

▲ 中岛和衣帽间在同一轴线,动线流畅

大尺度岛台衔接木质长桌,留空的位置可收纳吧台椅,集烹饪、聚餐、工作接待等多功能于一体。
绝佳采光+玻璃材质反射,凸显明亮空间感,灯具同样延续玻璃与不锈钢等反光元素,强化白天既有透光效果,也和粗矿工业风的格调呼应。

浓淡灰色系沉稳低调,大面自然光进一步深化明暗对比张力,丰富空间层次感。局部以木纹鲜明的木料、玫瑰金配件及暖黄光点缀,中和低饱和度的生硬。

利用楼梯下方畸零空间布置工作区,龙骨梯设计弱化压迫感,工作累了抬头即可看到窗外风景,更有助于放松身心、寻找创作灵感。

利用结构凹陷增加开放层架,收纳书籍、摆件等,俐落线条呼应一旁的龙骨梯设计。

为了留出宽敞的餐厅动线,将衣帽间往内推,用方格玻璃+铁件折叠门分隔,缩减开门半径不压缩空间深度,开合自由。

温润木色系营造居家氛围,并针对屋主既有的衣物进行细分收纳规划。

分出L型吊架、层架和饰品展示柜,圆角收边设计,柔和免磕碰。

▲ 衣帽间,兼顾通透和隐私感

淋浴区选用水磨石纹理砖,玫瑰金花洒和水龙头为粗犷斑驳的黑灰基调增加精致细节,台盆边缘同样选择圆弧造型,优雅实用。

楼梯和厨房相连,局部抬高地面放缓坡度,避免撞头,通透的龙骨梯设计不影响光线穿梭,弱化梯下压迫感。

▲ 玻璃砖+承重柱,分隔公私领域

拾级而上,深邃慵懒氛围随之蔓延,灰棕色超耐磨木地板带来舒适脚感,特别定制不规则沙发,展现随性自在的沉思场景。

楼梯扶手旁设计水吧台,搭配小冰箱与可直饮的净水设备,妥善安排二层的生活需求,不用下楼也能好好享受一日休憩时光。

主卧墙面以灰泥覆盖,营造隐密而安定的氛围。

设计师巧妙利用220公分的低层高,为屋主打造“穴居”般的幽静体验,四周的梁柱增强安全感,契合他注重个人隐私的生活习惯。

开放挂杆收纳次净衣,窗边卧榻增加储物空间,也能作为一处不被人打扰的阅读角。

• ✦ •
- 设计师采访 -
Q
这套房子的设计重点是?
A
本案是一间融合工作室性质的住宅,屋主对于开放格局和个人隐私的双重需求,是设计的重点,我们藉由玻璃与金属建材折射与反射特性,回应不同性质与机能空间,因为光的变化升华实际分区感受,空间轮廓也因着轻盈编排,定调可以随心转换工作与生活间弹性。
Q
翻新过程中有遇到哪些难题,如何化解?
A
初始屋况因为严重漏水导致屋内湿气重,内壁严重发霉,于是从基础防水开始做起,通过长时间观察抓漏并阻隔水源,于屋顶加强防水层,由此落实防水工程,同时也开启封闭格局让采光交流,进而化解室内湿气问题。
一组对比图

▲ 工作区

▲ 衣帽间