一进门就是长过道,还能设计玄关?她家布局真巧妙,自己家也要做
拾色设计
2021-04-23
进门就是长过道,在当下算是比较常见的户型了。虽说长过道的存在,为入户提供了极强的视野延伸性,但如何将其改造利用上,相信很多朋友都会感到很头疼。毕竟过道作为家里的主要动线通道,在改造上所受到的限制也是比较多的。
不过本期带来的这套案例,不仅巧妙地解决了这个问题,还让入户自然形成了一块玄关区,从而让空间区域划分更加合理舒适。同时,过道的使用面积也很好地利用了起来。因此,若有朋友家的户型与其类似,完全可以来借鉴参考,真的太巧妙了。
原始结构图

新房建筑面积106㎡,两室一厅的格局,屋主是一对年轻的小夫妻,还有一只小柯基。原户型结构非常不理想,不仅进门就是一个长过道,缺少基本的空间分区;储物空间的位置也明显不足。因此,如何将这个长过道给利用起来,也是作为本案最大的设计重点来考虑的。
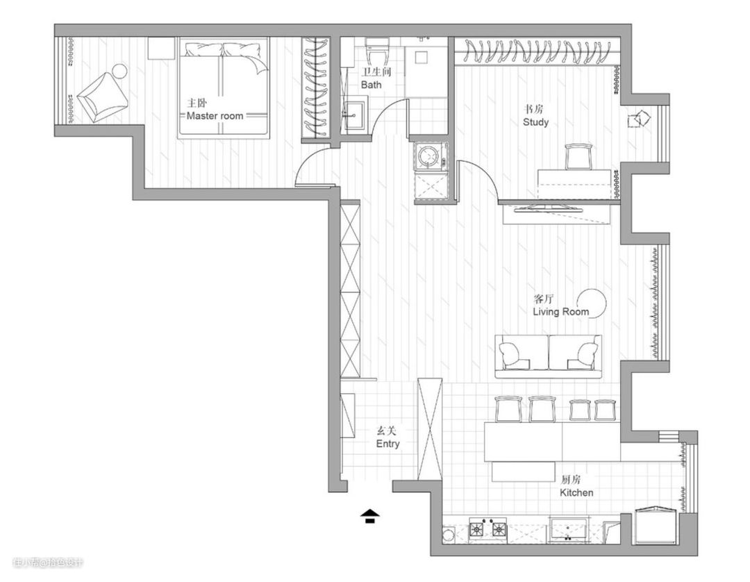
平面户型图

结合原户型缺陷,以及屋主要多储物的需求,空间布局改造如下。
1、结合客厅拥有大横厅结构优势,将厨房墙体拆掉,采用一体化来设计,可以进一步加深空间的通透性,并让空间拥有了社交属性,方便生活交流。
2、进门长过道一分为二,分别规划出玄关区,以及储物区,从而让空间动线更加合理,并弥补收纳空间不足的问题。
3、次卧以多功能房间来定位,融合休闲、衣帽间、书房等功能,以满足多种生活需求。
玄关

相较于传统的入户全身镜设计,这里直接配置了一面直径1.5米的超大圆形镜,以实现无死角的照镜需求。同时,给镜子加装感应灯光,不仅实现了开门即亮的功能,还让整个玄关区充满了炫酷,从而让入户更具仪式感。而给入户门安装上毛毡,则避开了原猪血色大门的突兀性,并提高了质感。

当厨房墙体拆掉之后,利用一组储物柜来充当隔断,既解决了基本的入户收纳需求,也让原本的长过道,自然规划出了一块留尘区,从而避免灰尘带入室内,保证了空间的整洁度。当然,在柜体内部结构设计上,也兼具了不同的收纳区功能,比如消毒区、挂衣区等等。

入户第一视角,刻意降低玄关区的地面高度,不仅仅是为了加深空间区域,更是为了提高空间的层次,从而打破长过道所带来的尴尬。而给垭口安装上长虹玻璃移门,则是为了避免狗狗乱闯搞破坏。
客厅

客厅部分的过道区,设计了一组整面墙的储物柜,以弥补家里储物空间不足的问题。而在柜体结构设计上,为了保证了空间的整洁与干净,虽说放弃了开放式隔层设计,但中间的灰色玻璃门配置,却也打破了一体柜的单调。

结合大横厅空间优势,将厨房完全打开,采用一体化来设计,直接让空间感翻了一倍。拆除原有的飘窗台,直接以落地窗结构来呈现,再一次加深了空间的通透性,并最大限度地引入了采光。

电视墙采用原木与艺术漆两种材质来设计,在延续简约基调的情况下,又丰富了空间层次。同时,还让次卧门实现了隐形,使空间看起来更加工整利落。

大横厅空间不一定要配置大体量家具,选择小体量的家具,更能凸显出空间的轻盈与灵动。况且,家里只有两口人居住,一组双人沙发也完全能满足日常使用需求了。
餐厨区

原厨房空间非常局促,当完全打开之后,不仅释放出了一块用餐区,空间感也没有受到影响。同时,像这种一体化设计,也提高了空间的社交属性,方便屋主夫妇平时交流互动。

一字型的橱柜配置,看似不太够用,但也让洗切煮做到了合理化,并且旁边的餐桌以及延伸到阳台的中岛台配置,也能提供大量的操作及收纳功能。而冰箱则放在了外面的阳台上,既方便了生活使用,也没有一点突兀。

卫生间

卫生间不一定非要将台盆独立出来,采用一体化布局,也能实现干湿分离的结构,从而保证空间的整洁。而卫生间外面原本的台盆柜,则是作为洗衣收纳区来使用的。
当然,这样设计还有一个原因,就是主卧门洞正好对着洗衣区,所以若设计成台盆区的话,视觉上难免会有一些尴尬。

主卧室

主卧最大的亮点,就是床头墙面乳胶漆的分色设计了,既起到了活跃空间气氛的作用,又不失腔调与个性。而大面积的白色调设计,也营造出了轻松、舒适、干净的空间感,从而让屋主夫妇在休息时更有安全感。

次卧室

次卧由于目前用不上,以功能间来定位,可以最大化提高空间使用率。比如衣柜及书桌配置,就融合了衣帽间与办公功能。同时,灵动的家具配置,也不会影响后期的二次改造。

纵观整个案例,最巧妙的布局还是在客厅这里,不仅让入户实现了玄关区,还让空间感有了质的提升,真的是既实用又巧妙。不知道你们家的长过道,都是怎样布局设计的呢?