【绿城新兴玉园】181m²户型深度解析
西安东易日盛总部
2021-04-24

《户型研究》栏目继续更新!今天要研究的,是绿城新兴玉园181m²户型。
这是绿城新兴玉园的第一期【户型研究】报告,将持续解读各个户型哦~一起看下去吧!
话不多说,我们直接进入今天的正题~

户型定义:入门级豪宅

从面积意义上,我们把绿地新兴玉园181㎡划分到“入门豪宅”这一档,虽说这个面积数刚刚过线,但是从面积以及四房两厅双卫的功能配置上,还是特别值得一提的。

- 绿城新兴玉园181㎡ -
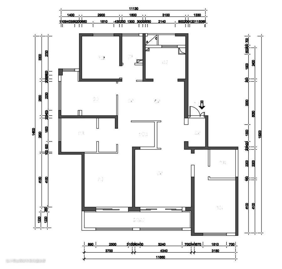
原始户型图
DYRS

原始户型分析:
①进门处门厅过于狭隘.
②餐厅与客厅的区分十分的生硬,让两个区域之间没有存在联系感.
③主卧内的区域过于分散,让使用功能不清晰.
④客厅处次卧内的卫生间区域将次卧空间划分的过于分散,并且空间没有得到充分的利用。
平面方案图
DYRS

户型优化方案:
①门厅处墙体向里移动,让门厅处的空间更加宽敞并且设置餐桌让客餐厅的联系更加紧密;
②主卫墙体拆除,增加储物功能,同时节省空间的浪费让主卫内的功能更加齐全;
③次卫拆除部分墙体,采用斜切的方式让次卫里面的使用方式更加丰富,并且让客卫的空间进行丰富;
④保留次卫原有干湿分离形式;
⑤厨房门洞向外括,增加酒柜、餐边柜的摆放形式。
因为,改善型住宅的要义就在于改善居住体验,尤其是户主的居住体验,从而给户主以足够的关照。
因此客厅在保留原有格局的基础上,进行适当的增加以获得更加出彩的效果。在次卧门口处以隐形门来展现,既融入进整体的效果也让设计风格更加出彩。整个空间内以不同材质形成黑白灰三者关系,烘托出设计风格的亮点。


△ 客厅设计类比图

△ 就掌灯实景案例

△ 餐厅设计类比图

△ 卧室设计类比图

△ 主卫设计类比图

△ 就掌灯实景案例
充分的户型研究,使得我们有信心将多年的高端楼盘服务经验与更多的业主需求实现更好的连接。
想了解你家装修需要花费多少吗?联系我可获取装修报价!