如何装修一个不用返工的实用卫浴空间?
名豪装饰连锁品牌
2021-05-19
一、如何设定卫浴位置?
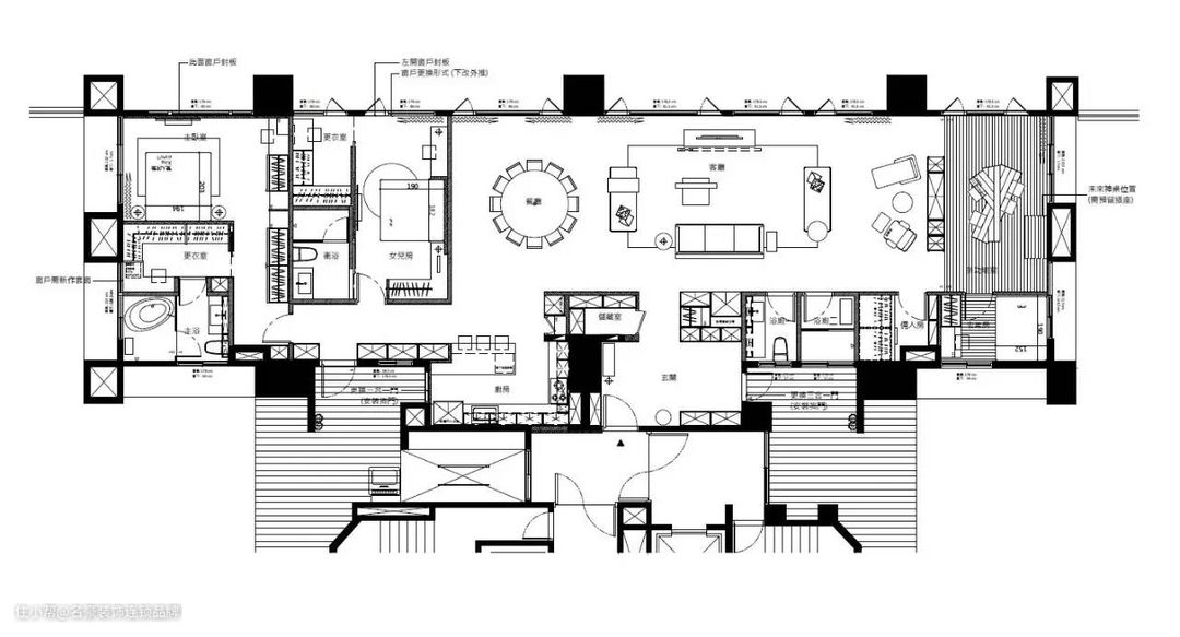
1. 以一张平面图做说明,卫浴空间应安排在整体空间中的什么位置?

客浴应该要摆在公共空间,但靠近房间的位置,方便有人来访的时候使用,家中其他房间的成员使用时也不会距离太远。
主卧室卫浴一般就在主卧室中,如果没有包含更衣室的,建议规划在入口处,避开浴室门对床头。若有更衣室,就在紧邻更衣室的位置 ,最好是走出浴室就是更衣室。
2. 如果想在家中增加一间浴室,要有什么样的条件才可行?

一般来说,家里的厕所增建的范围以1间为原则,例如:家中原有厕所为2间,可以增加1间成为3间,增建位置需紧邻管道间,也就是原有厕所的位置,同样必须将厕所地板架高15公分以上,而拉长的管线也只能在5公尺以内,保留泄水坡度10度以上,才能确保不会有堵塞的问题。但需注意管线行经路线是否有其他设计上的阻碍。
要增加多处使用时或不让架高问题或区域问题控制住时,可以使用壁挂马桶,例如:商业空间、 SPA空间或百货公司 ,都是使用壁挂马桶来解决这个问题。当然,要增加多间的话,还要考虑到其他施工问题,避免增加楼地板的载重。
3. 浴室的开门位置与方式怎么样会比较好?
侧开门:最常见的开门方式,但需要比较大的空间开阖,是卫浴空间常见的开门方式之一。
横拉门:往左或往右的方向平移,与墙面齐平,可以达到节省空间的目的,是卫浴空间常见的开门方式之一。也是无障碍空间的首选使用。

暗门(隐藏门):一般人不喜欢在空间中看到卫浴门扇,或者是对立面设计的考虑,不希望因为太多门扇的存在而造成视觉凌乱,因此会运用修饰的手法,让门扇与墙面设计合而为一,看不出其存在,是卫浴空间常见的开门方式之一。
拉折门:居家空间如有弹性空间时,多用折门做弹性区隔,例如:和室、半开方式书房等,拉折门收纳便利、也省空间,较少运用于卫浴空间。
二、浴室的材质
1. 适合用在浴室的大理石材有哪些?
除了花岗岩类不受限颜色外,一般大理石浅色白色的较不建议使用在浴室,会有因为毛细孔吸附水气而变色的情形。而花纹乱些或是深色底的,则可使用,即使变色较不易看出。

瓷砖
马赛克、防滑砖、抛光石英砖、复古砖、釉彩砖、仿木纹砖、进口砖等等。

1. 要如何运用于浴室空间?
看空间大小及所要营造的氛围去做选择。现在常用木纹砖及大块的壁砖,增加暖度及大器感。特色空间中也可用马赛克及复古砖去做出变化。

2. 使用瓷砖在浴室的优缺点?
好保养、易清洁、不会有受潮问题,防滑砖有止滑的作用。
人造石
人造石的成份是压克力、树脂等混合石粉制成。人造台面有防污、环保、美观等基本性能,适合做为厨房或卫浴的台面使用。根据国内、韩国、欧美厂商的不同,质量上会有些许不一样与名称不同的差异。

1. 如何与其他材质混搭?多用于何处?
人造石多用做为台面材使用,可以和面盆及浴柜结合做为梳妆专用的台面。
可做为门坎阻挡流水外泄。

2. 使用人造石在浴室的优缺点?
当橱柜的台面较长需要拼接,可以做到无缝拼接,人造石表面没有孔隙,油污、水渍不易渗入其中,抗污力强,容易清洁。具有多种花色系列,多种颜色、木纹及花色可选择。
人造石台面硬度较低,容易被刮伤,会影响到台面的美观,但可经简单打磨后即可变新。在清洗人造石面台的时候,不可以温差太大,如刚用冷水清理了一遍,然后马上用开水在淋一次,容易迸裂。
玻璃
多用于:淋浴拉门、区隔独立式淋浴间,浴室的镜子、镜柜有时候也会贴在墙上 ,放大空间

1. 如何与其他材质混搭?
玻璃在卫浴空间扮演的角色以淋浴拉门、区隔独立式淋浴间为主,与瓷砖或大理石等材质结合,但因其具有穿透特性,和所以材质都很好搭配。

2. 使用玻璃在浴室的优缺点?
容易凝结水垢,需要经常清理保持整洁。
最好在玻璃的后方加做一块木板在贴上镜子€€可避免水银产生变化 ,或有黑斑的状况。
四、用设计为浴室加分
1. 方便长辈使用的无障碍浴室设备及材质选用?
外开式门片、横拉门较安全。如遇长辈在淋浴处发生意外,若开门方式是向内者,门片极有可能被受困者卡住,因此外开和横拉门可以解决这个问题。
马桶和浴缸周遭加装合适的扶手来协助长辈行动。
务必干湿分离,并在干湿分区的分界做出截水沟,让水流不致大量流出,导致湿滑。
防滑磁砖已是卫浴设备不可或缺的一环,近期有厂商利用深凹凸、深刻模花效果,增加磁砖表面摩擦系数,搭配特殊釉药使用,让磁砖的抓地力更为显著。
2. 兼具梳妆台功能的双用台

站立化妆者可使用,可使用镜柜及浴柜(抽屉柜型式)。
坐着化妆者,可以降低盥洗台面兼化妆台的高度,加上椅子让人能舒服坐着化妆。
3. 更衣室与浴室的格局要如何规划?

通常都是由更衣室走入浴室,方便洗完澡后可以直接选择服装。
浴室内一定要做到干湿分离,将马桶、脸盆、淋浴和浴缸分开,防止湿气外流,对衣物包款会有损伤。