新中产家居新主张(01)| 新中产的理想厨房如何设计?
品深设计
2021-05-18
进入互联网时代,人们的生活理念也在不断推进着。出于对更美好生活方式的追求,也海外生活方式潜移默化的影响,和老一代中产相比,阅历开阔了的80、90新中产对家的功能也产生了新的需求。

36氪研究院联合天猫、大众点评发布的《美好生活绿皮书》显示,中产人群认为理想的居家生活应该具有充足的储物空间、智能的电器设备、合理的区域规划。
在实现客厅、厨房、卧室、卫生间、阳台基础功能的同时,如何进一步提升各个空间的使用效率,合理划分区域成为新中产人群在追求理想居家生活的新需求。

接下来几期小鲁班就和大家一起直击新中产居家生活痛点,聊聊如何将其一一突破,用设计实现新中产的理想居家生活。
本期我们先从当前新中产居家所面临的主要问题——厨房聊起。

新中产厨房居住痛点
近年随着经济的发展和科技进步,人们的物质生活愈加丰富。新中产们在享受丰富物质带来的便利性的同时,也逐渐暴露出了因家中存储空间缺乏而影响美好生活体验等问题。
36氪发布的调研报告显示,当前新中产家中都面临着厨房面积小、储物空间不足以及空间规划不合理导致物品取放困难等困扰。由于中国传统烹饪多采用煎、炒等形式,因而而产生的油烟油渍等清洁难题亦常令他们感到抓狂。

来源:36氪
因而,有足够的储物空间和合理的收纳规划,能够保持清洁和干爽成为了新中产们打造理想厨房的重要条件。


新中产理想厨房设计
01
三角原理规划厨房动线
厨房动线规划不合理,做饭就会手忙脚乱、磕磕碰碰。好的厨房设计除了明亮通透之外,也应该考虑到人们是如何使用厨房空间的,让空间去适应人的需求。
也就是说,厨房空间布局要考虑每个人是如何使用空间的,一定要按照烹饪时的移动规律进行设计。

一般而言,人们做菜的顺序大多按照“取—洗—切—炒”进行,对应的厨房设备便是冰箱—水槽—加工台—灶台。为保证烹饪过程的流畅性,厨房设备则应按照这个移动规律进行设计。
如打乱这个流线设置功能,则必然存在往复运动,给实际使用带来不便。且如果这一过程台面不连贯,操作过程不连续,便容易在使用中遗撒物品弄脏厨房。

那不同类型厨房,又如何排布规划这些设备呢?
传统厨房造型有一字型、二字型、L型、U形等,而今流行于新中产家庭中的还有西方家庭常见的岛台式厨房。

如果是一字型厨,将设备按操作流程一字排开安装即可,其余类型厨房,则可以将冰箱、水槽、加工台以及灶台呈三角形排布。
不管是二字型、L型、U形还是岛台式,只要烹饪顺序处理位置形成黄金三角区,就能提高厨房使用效率。




02
3个步骤完美规划收纳
step1:确定橱柜选择
要解决38.8%新中产面临的存储空间不足等收纳问题,首要考虑的便是如何让空间利用最大化。

如果厨房形状受限较小,那么橱柜能做二字形就不做一字型,能做L型就不做二字型,能做U字型就不做L型,总的来说就是U型>L型>二型>一型。


若受限只能做一字型,那么橱柜便顶天立地设计,让上部空间利用最大化。

step2:明确储存需求
确定好橱柜造型,下一步就需要明确,当前新中产的厨房有哪些物品需要“收起来”。

一般而言,大多新中产家庭除了常见的锅碗瓢盆、刀叉杯筷等餐、炊具以及冰箱、消毒柜、微波炉烤箱等家电之外,随着新中产生活品质进一步提升以及对环保健康问题的进一步重视,近年咖啡机、洗碗机、垃圾处理器、蒸箱、直饮水系统等也开始在新中产家庭中普及。


step3:分区存储
对需要收纳的物品进行梳理之后,还需对物品的使用频率进行分析,分区储存,提高物品拿取便利性。

分区方式可按就近原则及轻重原则进行。
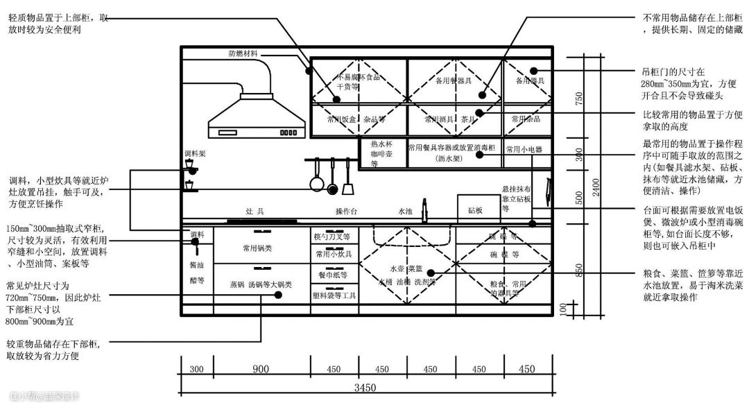
就近原则即常用物品储存区置于操作程序中可随手去放的范围之内(如餐具滤水架、砧板、抹布就近水槽,调料以及碗碟就近灶台,方便清洁操作),不常用物品储藏区可规划在上部吊柜。

轻重原则即质量轻的物品存储与上部吊柜,质量重的物品储藏与下部柜,让物品拿取更轻松更安全。

刀叉碗勺等小物件,亦须有专属存储空间,分类存储,厨房才能保持井然有序。

为保证厨房视觉上的清爽整洁,建议微波炉、烤箱、洗碗机等家电嵌入收纳,将它们“隐藏”以减低厨房台面凌乱感。同时要注意给家电预留好足够的插头开关。

03
2种方案解决油烟困扰
随着新中产生活方式的改变,厨房早已从饱腹之地慢慢转变为他们的社交场合,拥有了更多的可能。高级美观且具有社交性的开放型厨房也因而越来越受新中产家庭欢迎。

他们在享受于开放性厨房带来的愉悦之余,也备受着油烟问题的困扰。如何改善此现状,满足新中产对美好生活的向往成为了设计师的一个思考命题。

tips1:玻璃折叠门阻隔油烟
要既能满足油烟阻隔,又能保证空间的通透性,保持厨房的开放性,在厨房与餐厅/客厅之间装上细框玻璃折叠门或者移门便是一个不错的折中选择。
准备材料时,厨房开放,家人朋友可以参与其中;中餐爆炒时,将玻璃门闭合即可阻隔油烟,防止油烟乱串造成室内留下难以清理的黑色污垢。

tips2:集成灶告别烟熏火燎
相对于传统吸油烟机而言,集成灶视觉上更为美观,占用空间小且油烟吸附力度也更强,对于厨房空间有限且、受困于油烟与存储问题的新中产而言无疑是一个最佳选择。


今天关于新中产理想厨房设计的内容就分享到这儿,下周我们继续分享下一话题——新中产理想卧室设计。
分享出于行业分享交流目的,如有侵权,请联系告知删除。