深圳装修:400㎡下叠别墅设计,抹上了莫兰迪色
深圳东易日盛南山店
2021-05-23
面积:400
楼盘:万科红郡
户型:叠墅(下叠)
风格:莫兰迪(现代)
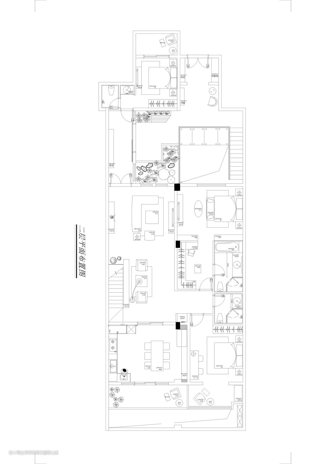
平面图

户型优势:
1.户型方正,东西朝向,动静分区明确。
2.客厅靠近二楼入户花园,空间延伸性强,视野开阔。
3.室内净空高4.1米,顶面处理空间充裕。
4.框架结构,利于空间二次布局。
户型劣势:
1.卫生间均为暗卫,采光通风很差。
2.二楼其中一个次卧较小,且不具备拓展空间,储藏空间不够。
3.生活阳台与餐厅厨房动线稍有交叉。
4.整体采光和通风不佳。

本案为万科叠墅下叠单位,环境优美宜居。业主夫妇为高知人士,注重空间的文化属性,常住人口为4口。以简约现代的设计风格为主调,全面考虑,在总体布局方面,尽量满足4口之家生活上的需求。主要表装材料为墙布、乳胶漆、石材、地板、布艺等。
玄关

原餐厅设置书吧,以通透书架替代栏杆,一物多用,安全、实用与装饰兼顾。
客厅/书吧


厨房与餐厅调整到一个空间,传统中式烹饪和食物的气味不会窜至其他空间。
厨餐厅

主卧与主卫间设置玻璃隔墙,为主卫带来自然采光的同时,也增强了主卧的通透性;主卧加设衣帽间,增强储物功能。
主卧

次卧

一楼设置亲子大书房,增加了大人和小朋友的亲情互动空间
书房

卫生间
