从毛坯开始,挑空客厅+超强收纳,158㎡装完半包21万!
飞墨设计师李工
2021-05-25
买下一套房子,就是要想尽办法将它装好,尽可能要全家都满意。下面这是是唐宁府一位业主买下的158㎡毛坯房,现浇挑空客厅+超多收纳空间,全屋8大设计亮点,虽然家具还未进场,但光看硬装效果父母亲戚都在夸!

这套房子是一套跃层,全屋半包花了21万,空间分布方面,主要将一楼作为公共区域,有两间独立的儿童房,而二楼则是业主夫妻俩的卧室套房,这样私密性好,而且平时也不会有人打扰,喜欢这种布局的可以参考一下!
一楼户型图:

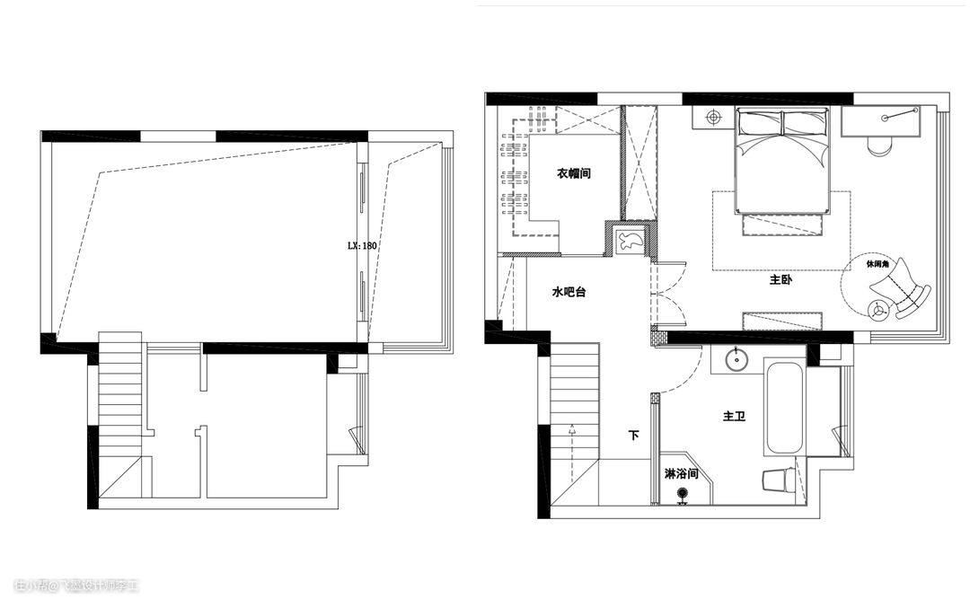
二楼户型图:

小区环境:


装修前的样子:
1.玄关三段式柜体
一推开门就能见到个嵌入式玄关柜,高2.6m,宽0.8m,上面储存换季的鞋子,常穿的鞋子放下面,拿取方便,中间空出40cm高的台面,装上插座平时还能充充电。

柜子底部悬空20cm,换下来的拖鞋直接摆在这儿,不用老是开柜子,平时扫地拖地也很方便,有需要的还可以装上灯带。

2.扩大厨房
原本的厨房空间小,还是个暗厨,设计师将阳台打通,改造后的厨房9.5㎡,打个超长橱柜越用越顺手,不管是收纳还是台面空间都能满足一家人的需求,最关键是暗厨变明厨。



3.“二八收纳”的餐边柜
餐厅跟厨房中间只隔个过道的距离,端菜比较方便。墙边打个长2.96m的餐边柜,高度2.59m。中间预留1.26m的长度做台面,中间加块隔板一分为二,上面高30cm,下面高50cm,可以根据物品的高度来进行摆放。

效果图:

餐边柜整体右侧是封闭式柜子,左侧则选择了玻璃柜门,既能作为展示又不用担心落灰,如果家里有收藏需求可以借鉴一下,显得比较高档。

4.现浇客厅
他家客厅一共43㎡,空间特别敞亮,4.15m长的电视背景墙选择天然大理石材质,花纹好看又有档次,壁挂电视内嵌其中,一点也不占地。


沙发背景墙则是大理石、木板和墙咔拼接式设计,简约又大气,见过的人都夸这样的背景墙有品位。另外自从阳台打通后,两面都是落地窗,光线更好,作为休闲区刚好合适。



阳台对面墙壁打个到顶的柜子,两边封闭式,中间是开放式储物格,能解决一部分客厅的收纳,也能放些收藏品或者书籍,打造成个休闲阅读角就是个不错的想法。

5.楼梯下的储物间
通往二楼的楼梯下面空间不能浪费,沿着楼梯打个长1.9m,高1.75m的柜子,能存放不少物品,对面还有多功能空间,设计师特地选择了玻璃推拉门,保证楼梯间的采光。


6.飘窗嵌入抽屉
碰到飘窗不一定全部都要砸,学学他家嵌入个抽屉用来做书桌也很不错,先安装抽屉,然后四周用石材进行封边就可以了,照样很实用。

7.多功能儿童房
儿童房1面积一共9㎡,进门对面就是个大衣柜,长1.95m,高2.5m,小孩子的衣服可以直接挂里面,能省去很多麻烦。

侧边设计个一体式书桌+书架,书桌长1.1m,宽55cm,而墙上的开放式书架高60cm,摆上书籍好看又方便拿取。

另一边还有个小飘窗,铺上垫子就能改成休闲区,临窗而坐,视野很不错,右侧打个柜子,两边都能进行收纳,靠床的开放式储物格可以代替床头柜使用。



儿童房2

8.主卧套房设计
主卧效果图和硬装图对比:

还有个超大的衣帽间,U型布局将空间利用最大化。


8.5㎡的超大主卫,浴缸和淋浴房分开设计,使用方便,减少打扫卫生的麻烦,浴缸旁边还有大窗户和飘窗,光线好,视野好,只要做好隐私保护,泡个舒服的澡简直太爽了!


最后再带你们看看认真施工的师傅:


期待已久的硬装部分终于完工了,打扫干净真的是太好看的,空间布局和利用都很合理,业主需要的超大储物空间也能满足,也不用因为有两个孩子而头疼东西塞不下了,硬装图和效果图1:1还原,太期待后期入住了!
