同小区不同户型,国贸天成4个案例:从现代到轻奢,生活游刃有余
李秀玲设计师
2021-05-30
居者与生活的差异化,致使家有千百种姿态和模样,即使是同一个小区,哪怕是同一种户型,也有不同的家居体验!
自【国贸天成】这个小区交房以来,飞墨陆续接到诸多业主的装修服务需求,今天,就带大家看看已经上线的案例,一起来!
1
130㎡ 现代台式风
- 项目户型:130㎡跃层住宅

本案的居者是刚刚迎来二宝并与老人同住的六口之家,在业主的规划里,这套房子将会作为主要居所直至两个孩子初中毕业。
- 设计方案与解析
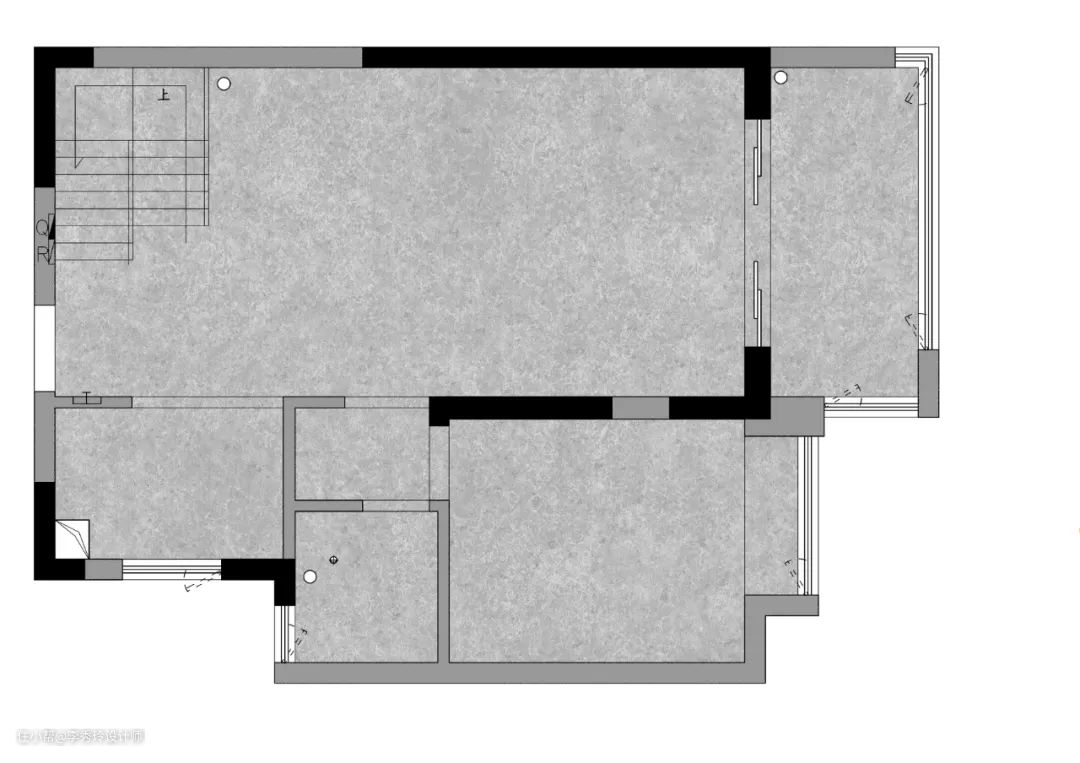
#一层


△原始户型VS设计方案
一层作为家庭主要活动空间规划了客餐厨卫与老人房:
设计细节
▼
◆ 独立柜体划分玄关,并用旋转楼梯释放空间。
◆ 客厅扩入阳台,增加活动空间。
◆ 圆形餐桌满足六口之家使用,并设计餐边柜解决收纳需求。

◆ 一层卧室作为老人房避免老人上下楼梯的不便,也将二层空间释放,给业主四口之家留出足够的私密空间。
(上下滑动可查看更多)


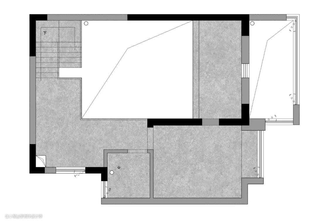
#二层


△原始户型VS设计方案
二层作为业主与两个孩子的休息空间,规划了主卧和大女儿的卧室,以及后期将作为小女儿房使用的多功能书房。
设计细节
▼
◆ 缩小楼梯空间,将北次卧扩大,利用榻榻米打造成多功能空间。
◆ 主卧扩进阳台,改造成休闲区与梳妆区,扩大主卧使用空间。

◆ 卫生间洗手台外移,双台盆设计解决多人同时洗漱需求。
(上下滑动可查看更多)

2
140㎡ 轻奢风
- 项目户型:140㎡跃层住宅
本案是一个四口之家与老人同住的房子,男业主在香港工作,希望能够通过我们的巧思来将户型优化,并进一步提高家居的舒适度。
- 设计方案与解析
#一层
△原始户型VS设计方案
一层规划了客餐厨卫,以及便于老人生活的卧室。
设计细节

▼
① 玄关柜以封闭与开放组合布局完善日常收纳与展示需求;玻璃旋转楼梯释放空间,并增加镜子利用折射功能视觉扩大空间。
② 客厅电视背景柜转角弧形处理,提高居住安全感。
③ 冰箱外移并嵌入餐边柜隐藏,让空间整体性更强。
(上下滑动可查看更多)


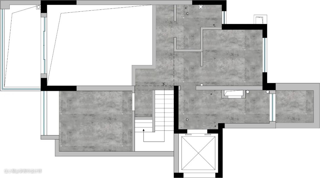
#二层
△原始户型VS设计方案
二层缩小楼梯与走道空间,规划了一家四口居住的三个卧室和公卫。
设计细节
▼
◆ 二层楼梯背后的墙面弧形设计,楼梯尽头增加端景,让空间更丰富、立体。
◆ 主卧扩进阳台,增加卡座与书桌改造成休闲区与男主人的办公区。墙面选用饰面板与石材碰撞出高级放松之感。
(上下滑动可查看更多)

户型或有相似,居者结构也可能相同,但习惯、喜好的不同,注定让家呈现不同的姿态。
下面继续~~~
3
150㎡ 侘寂风
- 项目户型:150㎡平层住宅
本案的居住者是三口之家,宝宝还小,父母偶尔会来小住;业主希望在有限的空间内获得尽可能多的储物,对于房子可接受的改造程度很大,希望以美观为主。
- 设计方案与解析


△原始户型VS设计方案
设计细节
▼
◆ 玄关两侧贴墙打造收纳柜,解决入户收纳需求。
◆ 阳台一分为二,一部分扩入客厅,一部分做书房使用。

◆ 将北阳台纳入餐厅,并设计水吧台与钢琴区,餐厨之间斜面设计,让厨房空间更充分。
◆ 南次卧与走道双面柜设计,增加收纳。
(上下滑动可查看更多)



4
144㎡ 法式轻奢风
- 项目户型:144㎡叠墅住宅
一家四口人居住,对于家,业主的要求比较精细,并且非常注重整体落地与品控,于是便找到了飞墨,希望所见即所得,让家达到最完美的效果。
- 设计方案与解析
#一层


△原始户型VS设计方案
一层作为家庭公区规划了客餐厨卫及可供全家人使用的多功能书房。
设计细节
▼
◆ 入户区利用两面墙的柜体解决出入户收纳需求,并增加洗手台便于清洗;
◆ 打通客厅与阳台,取消生活阳台功能做休闲区使用;

◆ 厨房借用过卫生间部分空间嵌入冰箱,L型橱柜实现流畅的下厨动线;
◆ 在餐厅通过内嵌式储物柜与岛台的增设,提高了生活的舒适度与储物的便捷性;

◆ 卧室空间改造成多功能书房,并增加墨菲床的设计便于客人留宿。
(上下滑动可查看更多)

#二层


△原始户型VS设计方案
二层作为全家人的休息空间,设计了主卧套房及两个次卧,客卫的洗手台外移,以双台盆的形式缓解高峰期的使用压力。


十余年蜕变路,飞墨一直致力于安徽省内的定制化家居服务,不管是合肥市内的【铂悦庐州府】、【绿城玫瑰园】、【华润凯旋门】、【万科森林公园】、【栢悦公馆】等,还是六安、宣城、池州、淮南……等地市的项目,飞墨都尽全力让居者的家理想化呈现。让每一个家都是量身定制,让每一个家在生活中面前都游刃有余,漫漫未来路,飞墨会一直秉持初心,砥砺前行。