她把32㎡的老屋,改成「复古洋房+大庭院」,一家三口住很幸福
甜茶的极简生活
2021-05-30
导语:这是一套位于上海老房子,准确地说它还算不上是“一套房子”。因为,房子在改造前,其实是某个老式别墅的一楼客厅加附赠的院子。屋主为了孩子上学,便买下了“这一部分”,装修好后完美逆袭「复古洋房+大庭院」,一起来看看吧!
本期案例,实用面积约32㎡,层高约3.3米,房子的整体装修风格为简约复古风,非常契合上海老城区的气质。再加上一个约20㎡的院子,着实让我们被惊艳到了,给人一种岁月静好的感觉!

“装修不仅是体力活,更是技术活。”本期案例就很好地诠释了这句话。因为这个户型算不上真正意义上的房子,改造前室内部分只是一个客厅,设计师需要重新规划功能和格局。尤其像厨房和卫生间,管道都需要重新铺设,比较麻烦。

//装修亮点//
为了将最大化空间利用率,设计师对整个房间进行了前期勘查,发现地下有一个将近60cm的通风架空层。如果将这一部分高度利用上,层高就能达到3.9m,同时可以做复式结构。
一楼:①客厅挑高设计,大气通透;
②客厅内做整面书柜墙,颜值高又实用;
③抬高门厅地面,合理划分屋内、屋外空间;
④U型厨房设计,动线合理流畅。

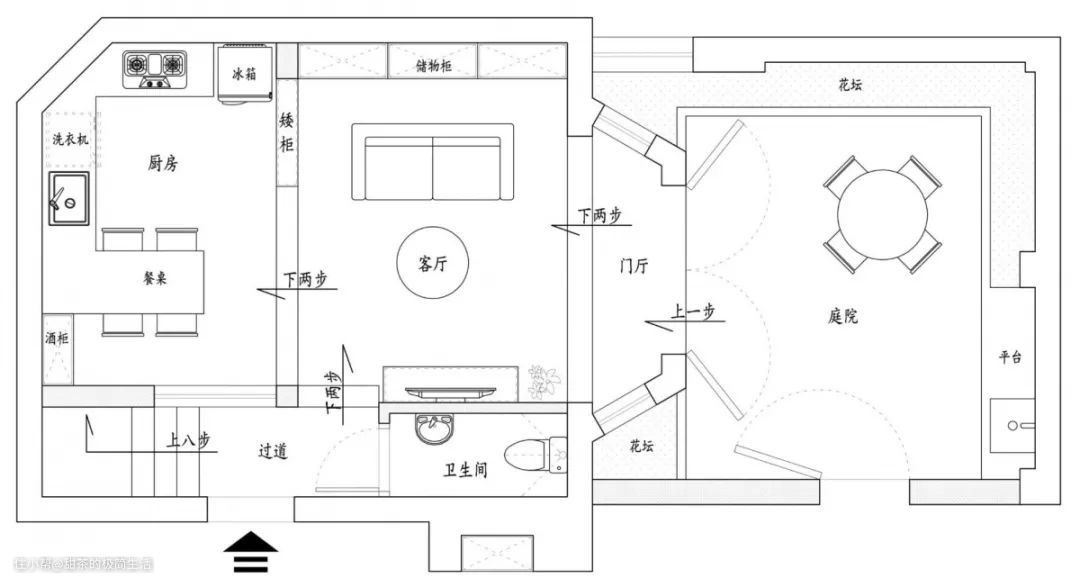
▲一楼装修平面图
二楼:①从厨房2.1m处做夹层,隔出卧室空间;
②卧室内做衣柜、矮柜,提升收纳能力。

▲二楼装修平面图
想要优雅的生活,就需要适当地做减法。屋主一家人其实对装修风格没有特定的要求,只希望改造后的房子能契合老城区的氛围,简单温馨就很好。所以,设计师在装修上,遵循了「减法原则」,最终营造出自然不造作的整体形象。

▲客厅实拍图
客厅做了挑高的设计,给人一种通透大气的感觉。沙发后的书柜墙是整屋的一大亮点,高度达到了3.6m,散发着不凡的复古气息。

▲客厅实拍图
为了让书柜的层次看起来更加丰富,设计师做了三种不同的展现方式:①下方做了白色柜门,以收纳功能为主;②中间做开放式设计,用来摆放书籍;③上方做了透明玻璃门,可以放一些手办收藏,又能防止落灰。

▲客厅实拍图
设计师在书柜的玻璃柜门下,做了一排黑色的滑轨,用来稳固梯子。这样屋主在使用梯子时,会更加安全。

▲客厅实拍图
在客厅与厨房的交界处,我们可以看到四格矮柜,既能收纳一些孩子的玩具,又能合理划分开两个不同的空间。

▲客厅实拍图
客厅旁边的入户门厅,更像是一个小型阳台。设计师抬高门厅地面,并在上面铺设地板,屋主一家人可以直接坐在上面,享受居家的惬意时光。

▲客厅实拍图
厨房和餐厅在同一个空间里,选择了半开放式设计,通透性更强。厨房的格局为U型结构,并在中间增加了洗衣区,日常使用会更加方便。

▲餐厨实拍图
厨房的装修风格还挺有意思的,设计师在复古的基础上,加上了一些童趣的元素。圆点水磨石地砖,搭配彩色花砖,让厨房空间变得更加温馨,而且孩子也非常喜欢这样的风格,很好地增加了一家人的生活互动性。

▲餐厨实拍图
在厨房的一角,可以看到一张实木餐桌,搭配长凳使用的话,可容纳最多6人一起用餐。即使家里来客人,也不用担心坐不下。

▲餐厨实拍图
厨房内的橱柜和家电的颜色,都是清一色的白色,给人一种简单清爽的感觉,日常打理也更加方便。嵌入式的家电设计,不仅节省空间,而且视觉感会更加整洁。

▲餐厨实拍图
为了不破坏整体的协调感,设计师在做L型的纯白色吊柜时,采用了无拉手设计,轻轻按压柜门,就能直接打开,方便日常使用。

▲餐厨实拍图
从厨房旁边的木质楼梯上去,就能到达二楼的卧室空间。楼梯的设计非常贴心,非常平稳,即使日常孩子从这里上楼,也不用担心会摔跤。

▲楼梯实拍图
卫生间的位置,在客厅的后方角落,面积很小,所以就没有做干湿分区了,但是该有的功能还是非常齐全的。

▲卫生间实拍图
屋外的庭院,做了白色腻子和防腐木的设计,中间还搭了葡萄架和秋千。即使在闹市中生活,也能让孩子拥有一个幸福快乐的童年。

▲庭院实拍图
【本期总结】
复式楼、大庭院、葡萄架和院子里的秋千,这些一直都是人们最向往的生活,而本期屋主将全部变为了现实。如果你也喜欢本期案例,欢迎点赞收藏!