深圳装修:174㎡红树湾壹号新中式风,风格独特的客餐厅背景墙
深圳东易日盛南山店
2021-06-04
楼盘:红树湾壹号B栋一单元10B
面积:174m²
户型:两房一厅一厨两卫
风格:新中式
好多红树湾壹号的业主来找咱们,接下来给你们看看这套新中式风设计。
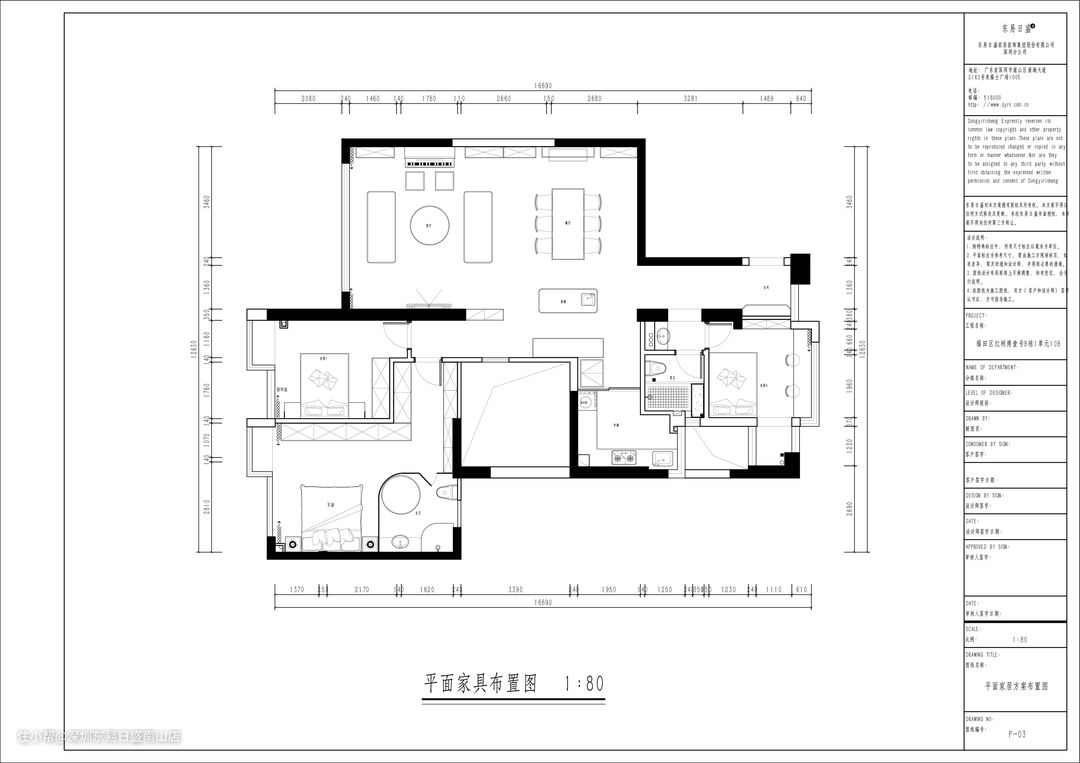
从原始户型图看,卧室布局很不通透,客卫面积小,卧室面积很小,且布局不合理。
原始户型图

设计师和业主沟通中,了解到客户需要三房,且想要中西厨,主卧面积要大,需要大量储物空间,同时希望有两个卫生间。
改造平面图

新中式风设计,不同于传统的设计,客餐厅的背景墙以一幅书法字墙纸做背景,一幅山水画,渐变甲骨文为点缀,仅用文字与画,便将整个空间质感升级。搭配现代质感的家具设计,新中式风请参考~
一整面餐边柜做两边做书柜,中间做隐藏式收纳。别致的吊顶是亮点,水晶木饰灯。
客餐厅全景

客餐厅全景

客餐厅全景

同样以山水画做背景墙,浅色调为主。
主卧

主卫

次卧采用黑白灰色调,现代高级感,搭配胡桃木色书桌。
次卧
