21万装出超高颜值108㎡,卫生间秒杀五星级酒店!
住范儿
2021-06-08
花20万装一个100平的房子,你觉得贵吗?
和住范儿一起成长的你一定知道,这个价钱这个平米真心不贵,但!划重点!今天的设计师案例,它做到了!
21万装了108平的房子,还巨好看!
不论从整体风格、空间布局还是动线设计上都很有亮点,克制、自然而有序,是这个空间给我的第一感觉。
屋主是一对年轻的小夫妻,没事喜欢喝喝茶晒晒阳光,几年后计划再生个娃,可尴尬的是,这房子的采光通风都阻挡了他们的幻想。
于是这就成了本次改造的重点,打通南北空间,增加采光,三室变两室,显大、收纳和颜值一个都没落下。
具体怎么做的?往下看
项目信息:
户型:三室一厅一厨一卫
使用面积:108㎡
装修花费:21w(不含电器)
房屋所在地:浙江杭州
设计师:无正设计
原始结构户型图

改造后平面布置图

改造重点:
蓝色为采光路线 图:住范儿自制
● 打掉了原始结构中主卫延申出来的“L”型墙(与客厅接壤、过道),变成木栅格隔断的卫生间干区。
● 打掉了次卧的内部墙体,改成半矮墙可做电视背景墙,也可作为榻榻米与客厅的隔断
● 增加隔断,将阳台一分为二,三分之一给卫生间,三分之二融入客厅。
● 将客卧卫生间改成了衣帽收纳间,功能发生了根本性改变。
● 原有的双层窗户变成了功能性的写字台和收纳空间,小空间大利用。
有了以上的这些操作,采光和通风就会变得顺畅,也就解决了屋主担心的问题。
目前看来,这确实是一通大胆的操作,不过鱼与熊掌不可兼得,好的设计就在于懂得取舍。
不过有一说一,这个案例还是实现了实用与美观的统一~
- 玄关+餐厅
本次设计师案例的真实还原度非常高,基本实现了效果图的百分百呈现。
下图为进门后左手边的餐厅和玄关处,非常便利的实现了收纳、就餐、洗手等多功能层面在小空间的应用。
原木色的桌子搭配黑白色墙面,墙上挂着“房屋设计图案”遮挡丑丑的电表箱,满满的回家仪式感。

用定制的餐桌放置玄关处,与对门的厨房相呼应,行动起来也很方便。

餐厅的上方安装了两个白色吊灯,白天的时候,与整个空间融在一起不会突兀,晚上打开灯的时候,光晕染满整个餐桌,不仅让食物更美味,还能成为整个空间的氛围提升器。


收纳柜内置洞洞板是这个空间的宝藏设计,内嵌在墙面,随手调节组合板面的高低位置,好用还方便,是小户型、工作间里常见的设计。

因为洞洞板是木制面,内嵌和安装都特别做了防水漆面、防水封边,清洁起来不会有死角。
地面用了通铺的灰色系水泥瓷砖,典型的工业风元素,耐脏易打理。
- 厨房

进门的右手边,就是厨房。
厨房与餐厅间用长虹玻璃推拉门隔开,可以有效的阻绝油烟乱飘。
玻璃推拉门目前是常用的隔断材料,常见的推拉门有三开的、两开式的,可安装吊轨和地轨。
吊轨地面不留缝,更好打理,但造价和安装费用较高;这个屋主家用的地轨,相对来说省钱不少,只是地面缝隙就要勤收拾了。

厨房内部的整体风格,看起来更加统一,白色为主,花色大理石墙砖增加细节为辅,再用通铺的水泥地砖与餐厅保持统一 。
大量的使用地柜和吊柜,将油烟管道等都藏在柜体内;能藏得都藏,能上墙的都上墙,收纳与颜值并存。
考虑到厨房是清洁重灾区,厨房的整体台面和墙面,都使用了磨砂的不锈钢材质,易清洁。

为了节省空间,西门子冰箱、方太的蒸烤箱都做了嵌入式的处理。
这一步尺寸测量、空间预留的工作在设计规划之初就得考虑到,细节问题和设计师保持沟通。

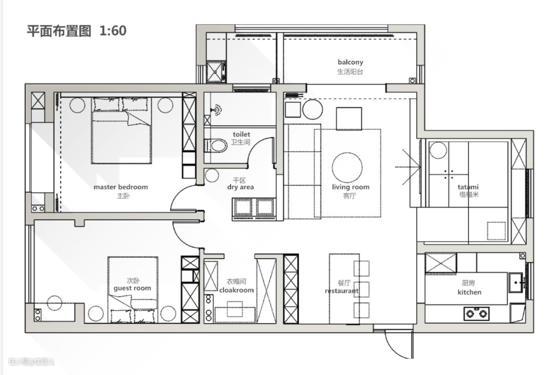
- 客厅+阳台+榻榻米

从玄关往前直走就是客厅。


视觉效果图:从玄关望向客厅方向
这是改造完的客厅,以黑白+水泥灰配色为主,简约大气。
原有的阳台被分割后,三分之二被纳入客厅空间,三分之一被用作洗衣房,功能更细分,动线也更明晰。
为了采光,阳台采用了大面积的落地窗,当阳光过于强烈时,百褶帘、阳台与客厅间的静音轨道白纱帘,都可以起到柔化作用,整个空间也会看起来更温柔。
想要采光又面临强光照射的朋友们可以试试这样的方法。

从玄关望向客厅
白色沙发、玻璃茶几和地毯搭配,柔和温暖。

视觉效果图:从榻榻米望向玄关和客厅方向
夏天来了,坐在沙发上,吃着水果吹着空调看着电视,就问你爽不爽?爽!
你会发现,这个电视背景墙好像不同以往,它是一个半矮的墙面,墙体外沿做了约20cm的台面,可放置一些常用物品。

视觉效果图:从沙发望向榻榻米多功能房
没错,这就是牺牲了小次卧打掉了全封闭墙改造后的模样,墙面的背后是榻榻米的茶室,可以作为多功能空间,兼具收纳、接待客人和临时工作间的功能。

前面,就是你在客厅躺赢的夏天咯。

从走廊望向榻榻米的场景
- 走廊

走廊是整个房屋里各个空间的链接处,可以直接通向客餐厅、卫生间、主次卧、衣帽间。
为了区分空间,地面专门用复古的小花砖设计.
与木地板铺设的次卧、客餐厅的水泥灰砖链接处都嵌入了金属收边条,易打理,也是一种地面瓷砖保护。

下面是从走廊望向榻榻米房间。

- 主卧+阅读区



从门口望向阅读区和床
主卧空间的设计延续了工业风,白+灰的主色调搭配原木色的床头柜,简约而不失暖意,功能上也很实用。
为了保持视觉统一,定制收纳柜的柜面也采用了灰色的墙面装饰,左边放衣物,右边格子间放一些随手的小物品或者折叠的衣服。

水泥漆墙面也因其简约而个性的手法被更广泛的应用在家居设计中,耐脏易打理。
床头柜是宜家的老款长凳,大小尺寸放在这里刚好合适,原木色和绿植、藤编的收纳盒让这个小角落更自然。
床头灯小巧随意,也可做氛围灯,来自于宜家,插头、控制面板在床头伸手可够。


主卧有个绝佳的位置,就是靠窗边被改造后的阅读工作区,征得物业许可后,将原有的窗户向外扩宽,与墙体间隔的20cm制成收纳区,再将桌面抬高配原木板就完成了设计。

主卧的储物、采光面积也大大增加。

设计师说这里费了很多心思,因为预算有限,最大化增加卧室的收纳面积,原有墙体与窗户外沿的中间特制了凹槽,可放置屋主的书籍和办公用品。

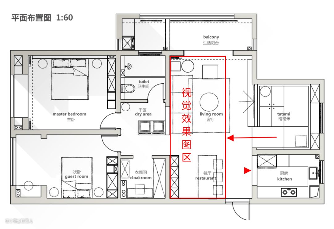
- 次卧

次卧就在走廊的尽头,延续了主卧的风格,并没有做过多的设计,目前主要是供双方父母偶尔来时居住。


落地窗让阳光充分进入,次卧门一开,与榻榻米房间形成对流,通风也更好。


次卧的床头柜,是宜家的双层收纳柜。
- 衣帽收纳间

衣帽收纳间是原来的客卫改变而来,为了节省预算,摒弃传统的定制柜,采用艾格特的衣物收纳板代替,可随时调节、增减组件,利用性高也很便利,同时弥补玄关收纳不足的问题。

全屋一共两面,左侧三层隔板、可伸缩晾衣杆、两层拉篮,上面挂长一点的大衣,下面放配饰和行李箱,右侧用网状搁架收纳鞋子和包包,一共才花了3500。


这几年,这样的可调节收纳衣帽板也有很多人推荐,这是从日式收纳中引来的,这样的收纳板有面板的、网格铝制的。
这次我在逛设计上海展时,就碰到一个纯日本品牌Sawacompang,他们有一款就是栎木的,天然的防蚊虫,但价格相对贵2000/米,可以使用15年。
真喜欢可以看预算,屋主这个在某宝上买的也不赖,直接搜索"艾格特"就出来了。
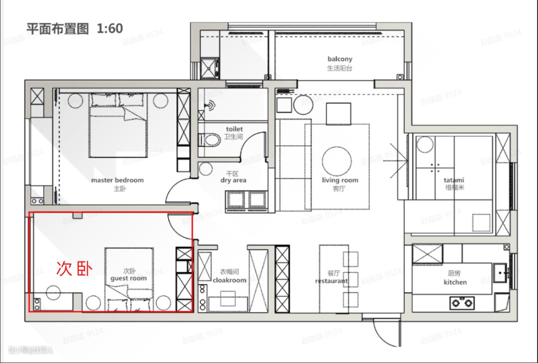
- 卫生间

卫生间做了四分离,依次为双台盆面的干区、马桶间、淋浴房、洗衣房。
洗衣房前面我们已经说过了,不赘述。
双台盆面的干区是整个空间施工最大的区域,这里打掉了原来的墙体“边角”,变成了木栅格的半开放洗手台,台面朝着走廊,通过双吊镜与走廊隔开,相对私密,也增加了通风采光。

从走廊望向卫生间
双台盆的好处就是可同时满足两人使用,节省时间。
这里,设计师使用的是方格台上盆,台盆底下,做了悬空式的吊柜,既能满足日常的收纳,也方便扫地面清洁,不会留下卫生死角。

很多人会觉得台上盆不好用,一洗手水就洒出来,但架不住它的高颜值啊,屋主就是看上了这一点。
悬空式的吊镜也是一个大胆的决策,和某些酒店式公寓的设计相像,吊镜被嵌入在铝合金的框架里,在吊顶上打孔固定,很稳固。
具体操作时,木工师傅需要在房顶加两层木工板,再钉上膨胀螺丝,就解决了吊镜的承重问题。

干区的地面也用了小花砖,与走廊保持一致,柜镜子的墙上又使用了洞洞板,放置手栏和化妆包等物品,作为补充收纳和悬挂区。
马桶间和淋浴房通过一个外开的玻璃门隔开,记住,是外开玻璃门。
马桶间整体用清水泥布纹砖做背景墙,很透气;使用的是壁挂式马桶,不占地易清洁还美观。



淋浴房的墙面则使用了通体的大理石瓷砖,易清洁;地面的流水沿凹槽走四周下水,不会浸泡,也防滑,更安全。

- 费用清单

真正的好设计,不是一个人的事,是所有参与人的事。
想看更多真实案例以及设计,记得关注【住范儿】哦~