装修别再被忽悠,轻松教你如何看懂图纸!
装修小助手
2021-06-08
在装修中,设计图纸是施工的基础,如果图纸不完善或者不明晰,无法正常按图施工延误工程进度或是施工完成效果与图纸不符,都会对装修结果造成巨大的影响。

虽然图纸上上面密密麻麻的数字和符号确实让人头痛,但能看懂图纸就相当于半个设计师。后期装修,我们可以依照图纸,提出自己的建议,而不是一味被牵着走。
首先,我们要知道,装修哪些有基本的图纸。
原始建筑测量图、墙体改建图、平面装饰平面图、天花吊顶布置图、地面材质图、配电系统图、开关布置图。
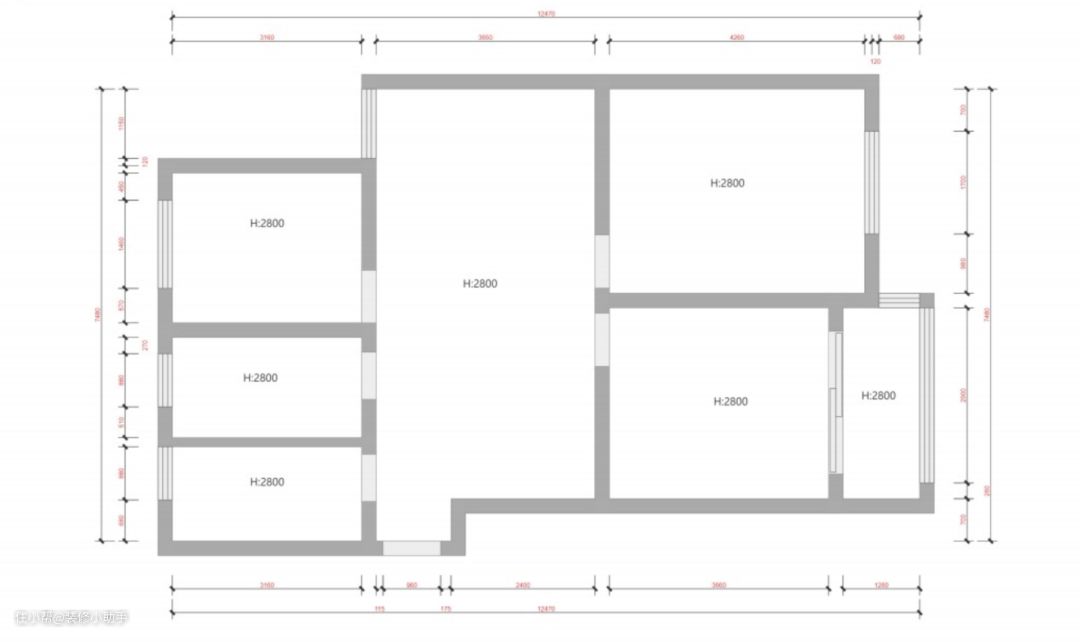
1、原始建筑测量图

设计师量房之后,最先出的就是这张图纸,后期所有设计都以此图为基础,这包括:
①房间的具体尺寸、墙体厚度、层高;
②房间梁柱位置尺寸、门窗洞口的尺寸位置;
③各项管井(上下水、煤气管道、空调暖管、进户电源)的位置、功能、尺寸等项目。
2、墙体改建图
主要表现需要拆除或新筑的墙体,识别承重墙的位置以及其它属性的墙体,并判断房屋结构性质。


比较常见的表示方法是在图纸上可以用虚线表示需要拆除的墙体,深色表示改建的墙体。
另外,承重墙是不能随意改动的。现在很多新房都是全框架结构,内墙的拆除还是比较安全的。
3、平面装饰布置图

平面布置图中包含的内容较多,要求标明:
①墙体定位尺寸,有结构柱、门窗处应注明宽度尺寸;
②各区域名称要注全,如客厅、餐厅、休闲区等,房间名称要注全,如主卧、次卧、书房等;
③室内、外地面标高、墙体厚度应注明;
④如有楼梯,标明平面位置的安排、上下方向示意及梯级计算;
⑤门的开启方向;活动家具布置以及装饰品等配置。
4、天花吊顶布置图

天花吊顶布置图涉及到水电改造项目,这张图能看出天花吊顶的走向和顶部灯具的位置,要求标明:
①天花造型的尺寸定位、灯具位置及详图索引。
②标注天花底面相对于本层地面建筑面层的高度,
5、地面材质图

地面材质图,是关于地面材质的所有内容。
好的设计师绘制的地面材质图一般都能数出所用地砖、地板的数量,方便控制预算。当然这些都是预估,实际的用量还需把损耗考虑进去。要求注明:
①需要铺设的地面材料种类;
②地面拼花、材料尺寸及不同材料分界线。
6、配电系统图

配电图也是设计图纸中十分重要的一部分,各种电源插座的位置都需要妥善安排。
在查看配点图时需要注意的是,插座的位置、数量以及考虑门窗、家具的安排,要根据家中电器的数量和种类以及自己的生活习惯安排,适当地留出空余量来。
7、开关布置图

开关布置图要注明房间离所有开关的位置及每个开关锁控制的电器、灯源等,同时要注明开关的种类,避免安装时混淆。
8、附加图纸:效果图
在设计师做出的方案得到业主认同后,就需要开始制作效果图了,更便于屋主预先看到自己未来家的样子。
从设计角度来看,3D效果图能更直观地表现出设计师的设计理念,让屋主更加清晰明了。
屋主除了要看图纸中的风格、色调以外,还要关注设计是不是符合人体工程学。适不适合生活中的使用、操作。


①看吊顶距离地面的高度,不能过低。
②看电视机、挂饰画、窗帘等设计的高度。
③看定制的榻榻米、床、沙发、桌椅的配套高度。
④一定要注意厨房的操作台,不能过低,也不能太高,否则主人炒菜会很累;另外就是厨房的油烟机位置要适合。
以上,你记住了吗?