15 x 25m苏式建筑园林设计,窗明几净,静谧祥和,具有家的烟火气息
江苏玛利雅建筑设计
2021-06-12
业主非常喜欢苏式合院,这套吸收了传统中式建筑的神韵,设计师加以巧妙改进,符合当下农村建房的要求。只有充分考虑这些因素的基础上,才能打造好业主心中满意的豪宅!
【设计单位】:苏州岚林阁设计
【项 目 地】:山西
【楼 层】:3层
【建筑风格】:苏式建筑
【建筑占地】:15m x 25m
【结构形式】:框架结构
【设 计 师】:张工、陶工、章工、李工
1.提前两周预约岚林阁设计师

现场照片
2.踏勘风水宝地

业主老房子照片
3.现场勘查 航拍 测量 规划布局

业主老房子大门照片
4.外观三维方案

入户门厅草图
玄关和连廊结合在一起,入院后,映入眼帘的就是小桥流水,亭台楼阁,用格栅隔断来弱化层次感,若隐若现,增强了整体建筑的立体感。

鸟瞰角度草图
三层设置了主人套房,有单独的卫生间,有很大的衣帽间,此外还有独立的书房,再有就是很满足的阳台和超大的露台。早晨可以站在露台看看日出,下午美美的在露台休闲喝喝茶,听着鸟叫的声音,空气里时不时的散发出院落的各种花香。

鸟瞰角度草图
漫步于走廊中,左手边是庭院景观,坐在庭院休闲椅上,闻着草木气息,品着香茗,微风拂面,使人心情愉悦,体现了人与自然的和谐统一。

背面鸟瞰方案

西北角度方案

西南大门围墙方案
大门设计为传统的中式样式,具有强烈的庄重之感,室内功能齐全,营造了安静的居住氛围,室外绿植鲜花,连廊亭台水榭,打造完美的园林山水,给老人小孩提供充足的娱乐活动空间。

东南围墙大门方案
落得几处雅致小庭,筑得一方苏派合院,春来冬去,淡然生活。黛色斜瓦古朴稳重,素洁白墙静谧淡雅;坐在窗前抬眼便能享受小院的蓬勃绿意,理想的生活便是如此吧。

水榭草图

入户玄关连廊草图

正房门头草图
苏式合院的一层大量采用的落地窗,室内空间也多处开门互通,采光和隔音效果非常好,客厅喝茶,能通过落地门一眼看穿庭院的美景,参观室外的硬化平台和石桥花园。

正房门厅
卧室位于西面,带卫生间,方便主人生活,会客厅和中堂相连,大气中正。整体设计布局合理,中式的精髓在于庭院及景观规划,落落大方,舒适怡人丰富了会客空间,让宾客享受到家的温暖。软隔设计,很好地遮蔽了视线,朦胧美的意境就是这么淡然自然。
5.建筑、结构、水电施工图

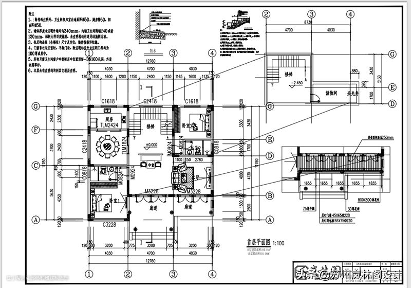
一层平面布局方案图

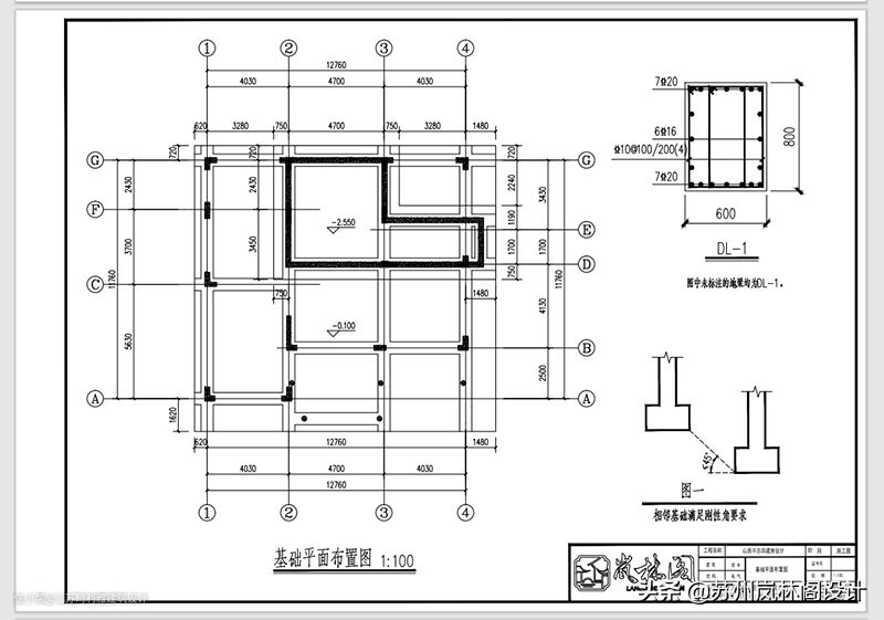
一层地基尺寸图

正房立面尺寸图
一套完整的施工图纸,客户和施工队拿到手即可开工啦, 让我们期待不久的作品完美落地吧。
6.古建师傅上门指导


苏州古建师傅远赴施工现场指导坡屋面 ,飞檐翘角等苏式建筑工艺!
7.施工现场花絮



施工过程中,有不清楚的工艺,我们都有施工指导员上门为您现场指导。
8.实景完成半成品效果

让每个方案作品,在全国各地能够完美落地,是客户的意愿,也是设计师的梦想!感谢业主选择苏州岚林阁。
(期待呈现,预计2021年12月份前完成)